DC/2026/00411
Sefton Council
Status
Registered
House extension
Received
Not recorded
New homes
0
Full proposal
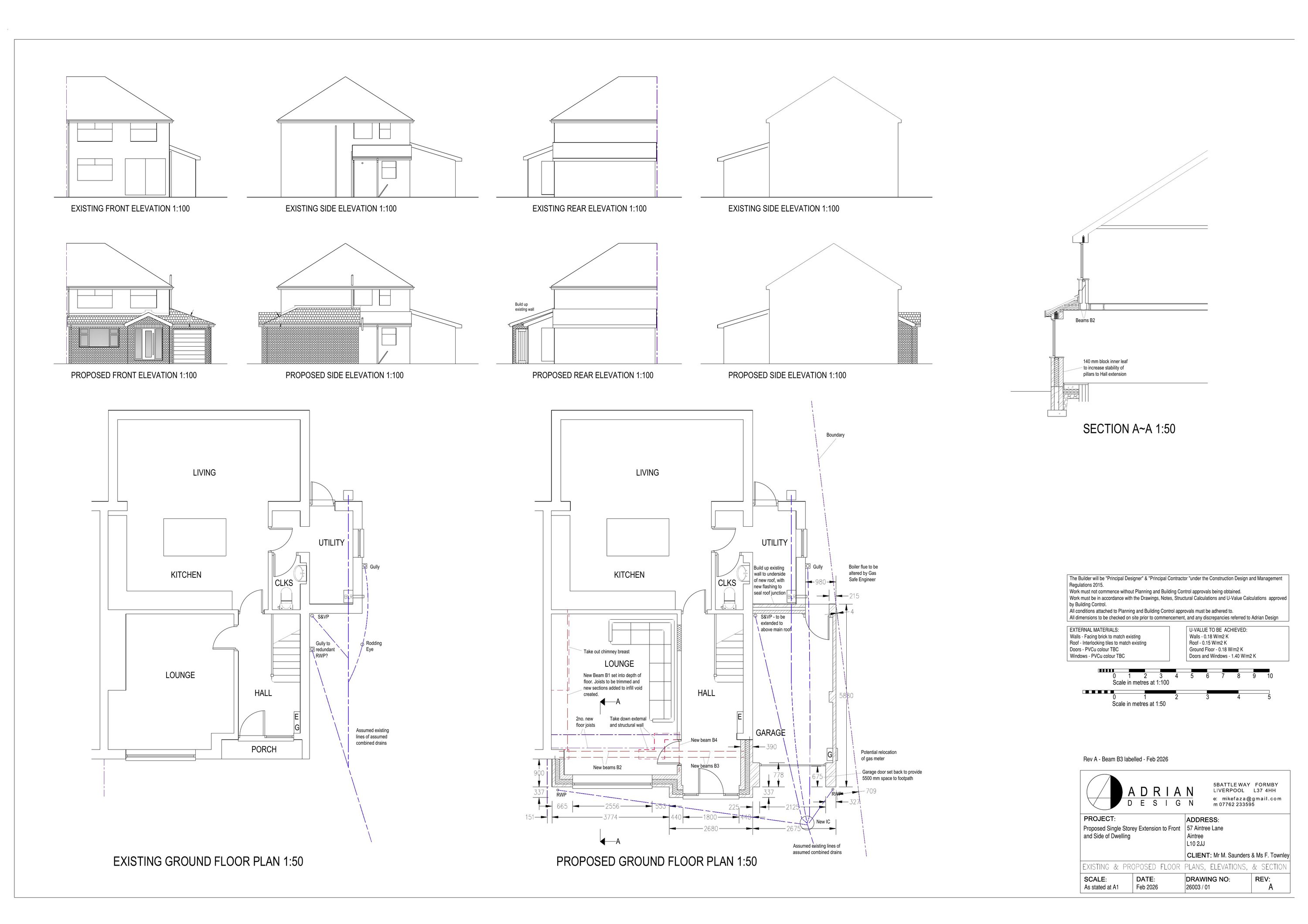
Proposed Single Storey Extension to Front and Side of Dwelling.
Documents
Have your say
Your comment matters. Councils must consider every representation that raises material planning considerations.