← North Yorkshire Council (Selby)

Status

Awaiting decision Demolition
Received
28 Jul 2025
New homes
0

Full proposal

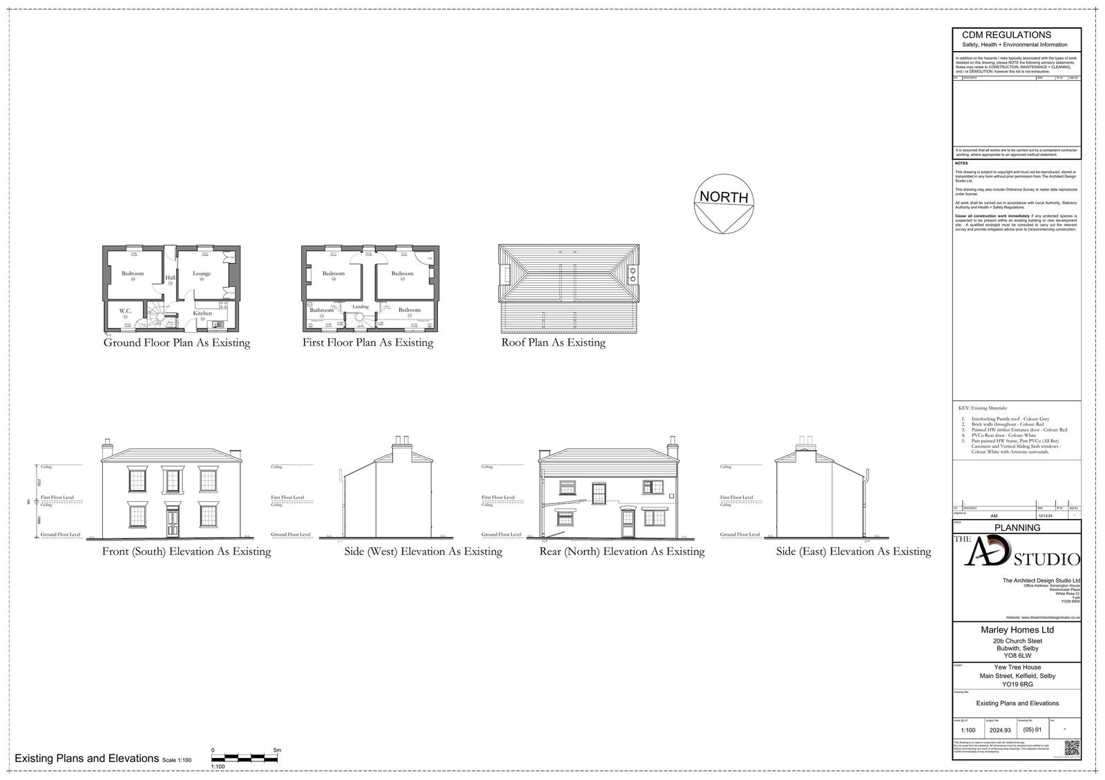
Outline application for demolition of existing dwelling and erection of a replacement detached dwelling with continued use of access to Plot 1

Documents

plans received with application
Archived · Original link
plans received with application
Archived · Original link
plans received with application
Archived · Original link
plans received with application
Archived · Original link
plans received with application
Archived · Original link
Acknowledgement Letter
Archived · Original link
Planning Application Form
Archived · Original link
plans received with application
Archived · Original link
All other reports eg ecology
Archived · Original link
All other reports eg ecology
Archived · Original link
All other reports eg ecology
Archived · Original link
All other reports eg ecology
Archived · Original link
All other reports eg ecology
Archived · Original link
All other reports eg ecology
Archived · Original link

Have your say

Your comment matters. Councils must consider every representation that raises material planning considerations.

Write a comment