← Back to North Yorkshire Council (Selby)
Application
ZG2026/0039/HEN
North Yorkshire Council (Selby) · IDOX
Status
Awaiting decision
Received
21 days ago
New dwellings
n/a
What you can do
Take Action
Make your voice heard. Authorities need to hear from people who support new homes.
Full Proposal
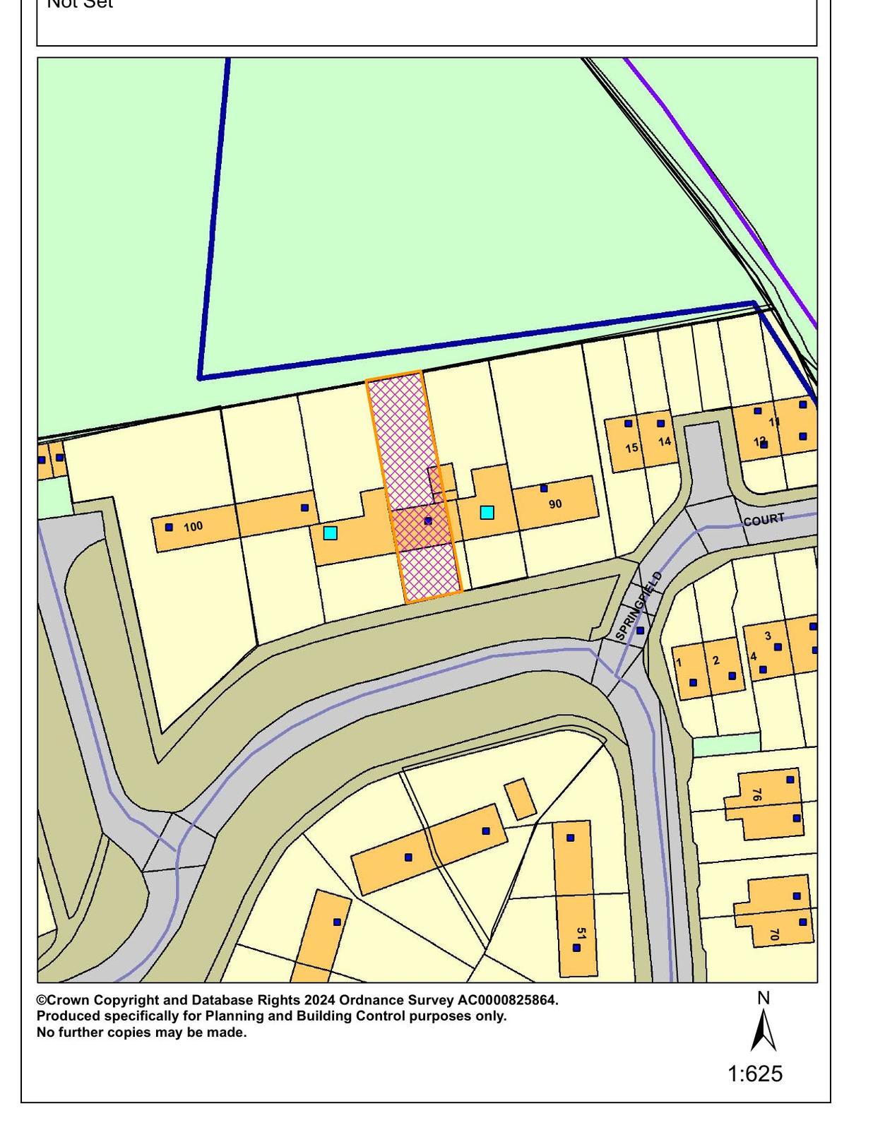
House extension notification for a single storey side/rear extension extending 5.00 metres to rear, 3.90 metres to ridge and 2.40
Detail pages
- View live detail on council site
- No archived detail page available.
Documents
Acknowledgement Letter
Acknowledgement Letter
Not downloaded
· Council link
Application Form
Planning Application Form
Not downloaded
· Council link
Copy of neighbour consultation
Copy of neighbour consultation
Not downloaded
· Council link
List of neighbours consulted
List of neighbours consulted
Not downloaded
· Council link
LOC01
plans received with application
Not downloaded
· Council link
Neighbour Consultation plan
Neighbour Consultation plan
Not downloaded
· Council link