← North Yorkshire Council (Selby)

Status

Awaiting decision House extension
Received
03 Feb 2026
New homes
0

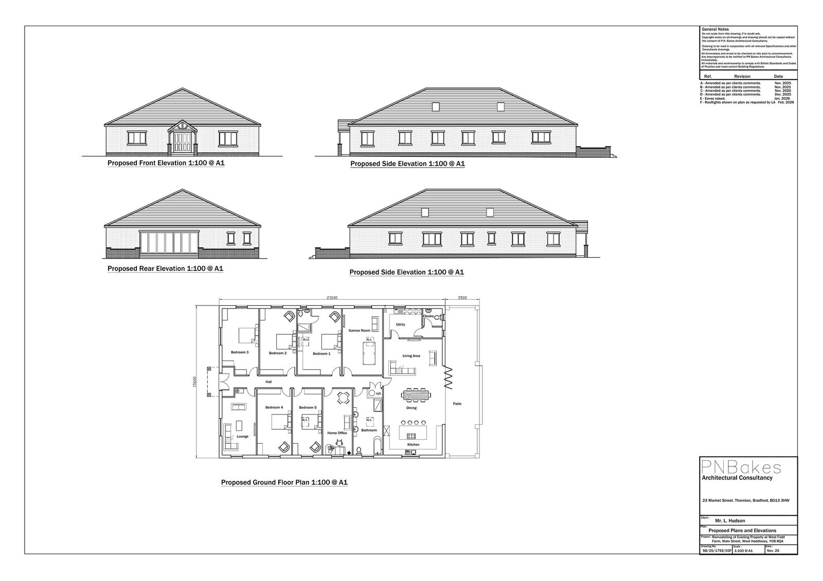
Full proposal

Extension and remodelling of existing dwelling

Documents

Acknowledgement Letter
Archived · Original link
Planning Application Form
Archived · Original link
All other reports eg ecology
Archived · Original link
All other reports eg ecology
Archived · Original link
Electronic agency/bodies consultation response
Archived · Original link
plans received with application
Archived · Original link
plans received with application
Archived · Original link
plans received with application
Archived · Original link
plans received with application
Archived · Original link

Have your say

Your comment matters. Councils must consider every representation that raises material planning considerations.

Write a comment