← North Yorkshire Council (Selby)

Status

Awaiting decision House extension
Received
04 Feb 2026
New homes
0

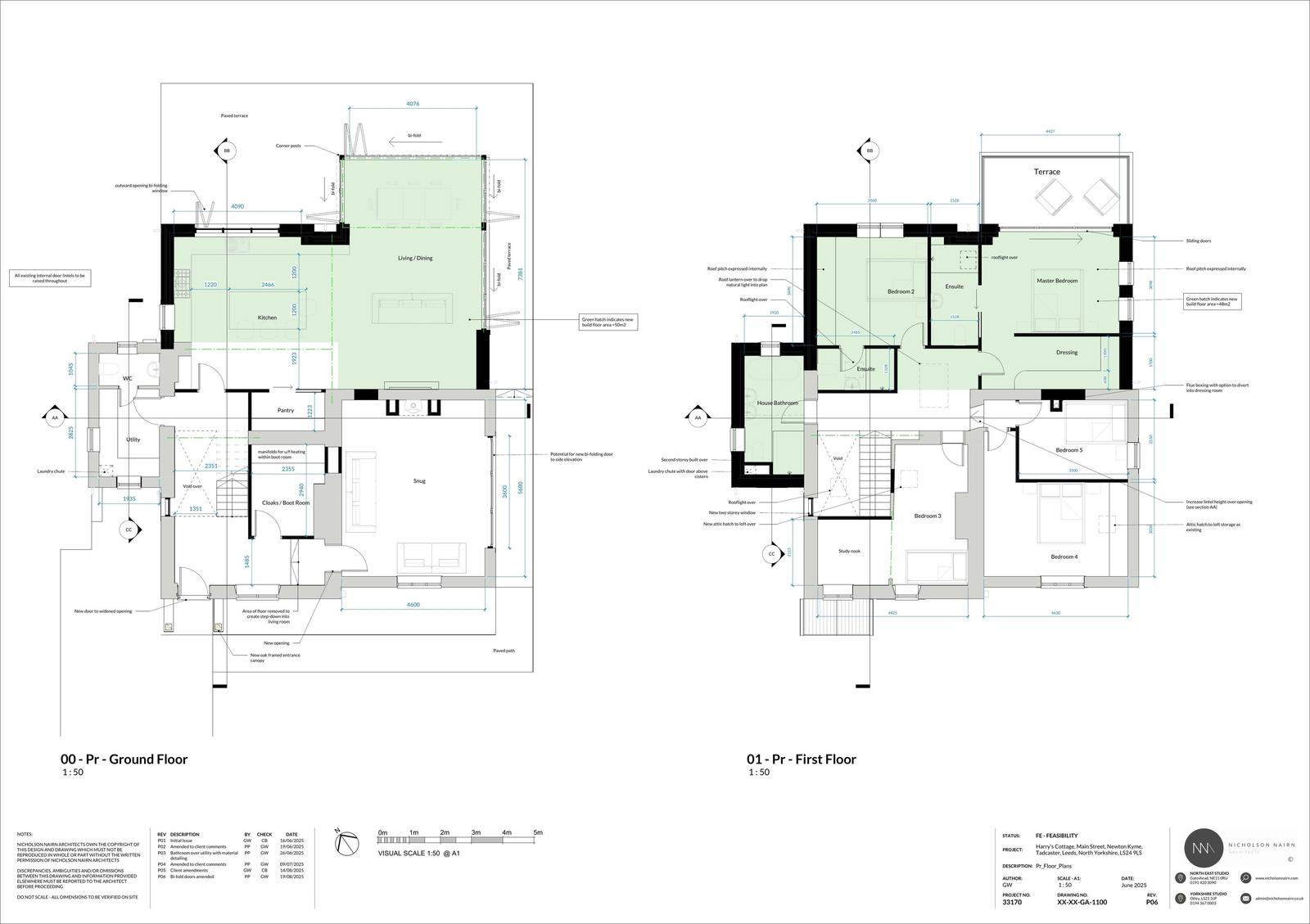
Full proposal

Erection of 2 storey rear extension and change of use from agricultural land to residential curtilage

Documents

plans received with application
Archived · Original link
plans received with application
Archived · Original link
plans received with application
Archived · Original link
plans received with application
Archived · Original link
plans received with application
Archived · Original link
plans received with application
Archived · Original link
plans received with application
Archived · Original link
Acknowledgement Letter
Archived · Original link
Electronic agency/bodies consultation response
Archived · Original link
Planning Application Form
Archived · Original link

Have your say

Your comment matters. Councils must consider every representation that raises material planning considerations.

Write a comment