← North Yorkshire Council (Selby)

Status

Awaiting decision House extension
Received
Last month
New homes
0

Full proposal

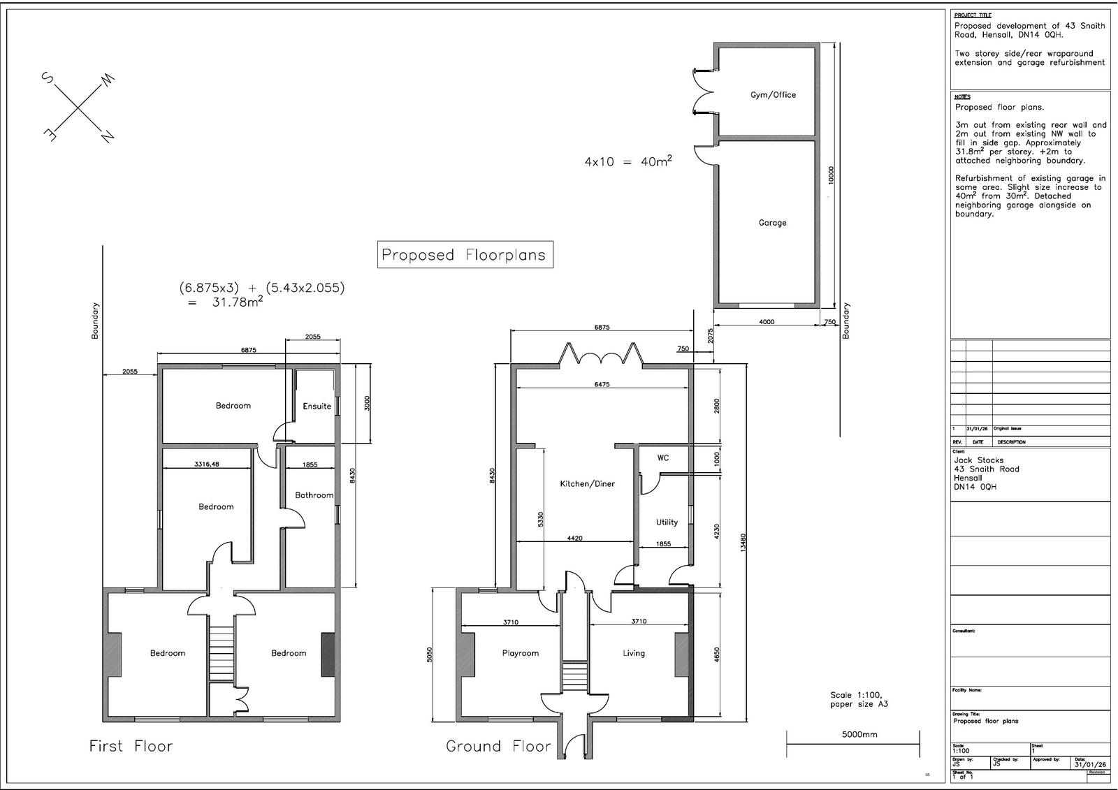
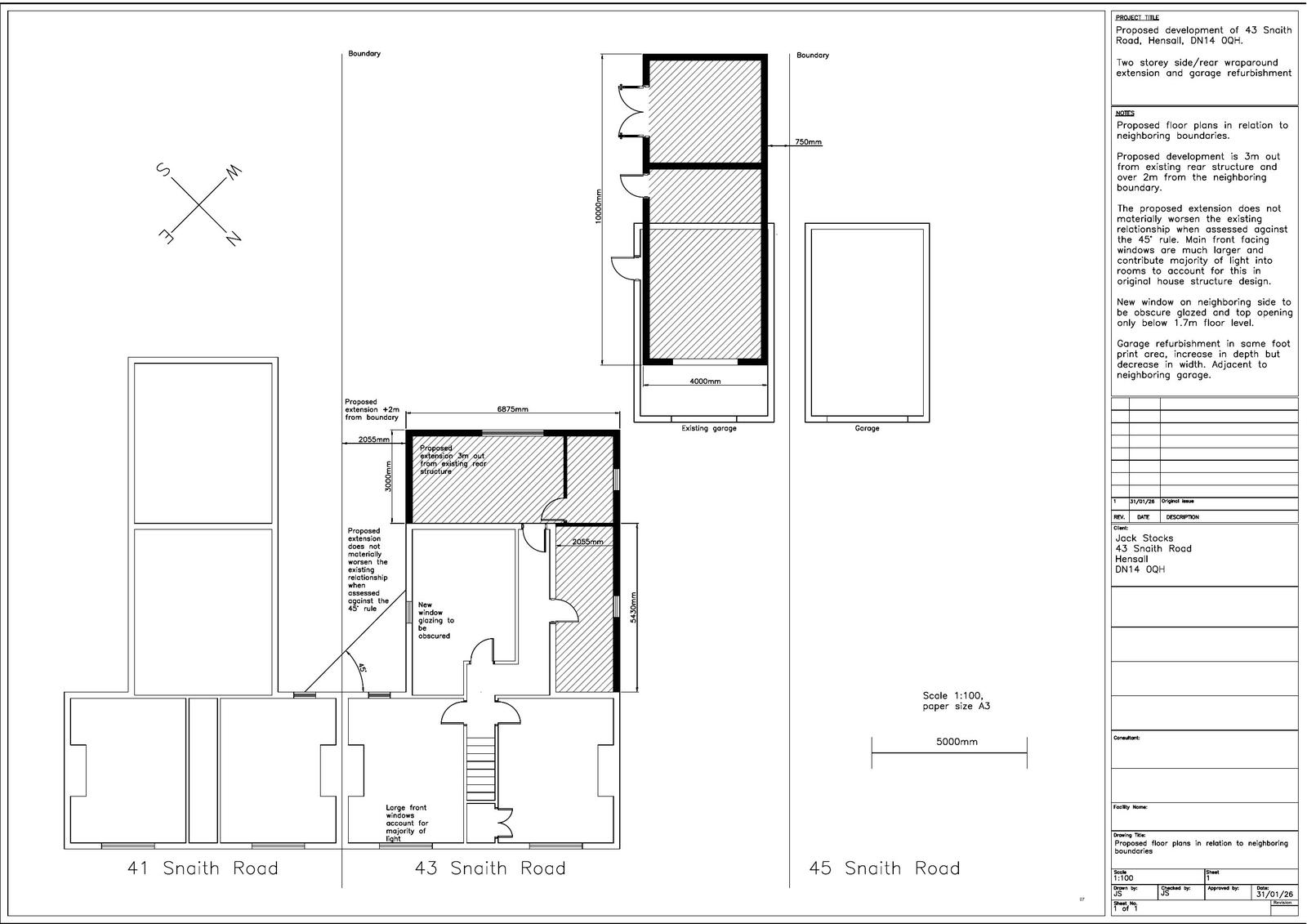
Double storey side/rear wrap around house extension and new external garage in place of existing external garage

Documents

01
plans received with application
Archived · Original link
02
plans received with application
Archived · Original link
03
plans received with application
Archived · Original link
04
plans received with application
Archived · Original link
05
plans received with application
Archived · Original link
06
plans received with application
Archived · Original link
07
plans received with application
Archived · Original link
Acknowledgement Letter
Archived · Original link
Planning Application Form
Archived · Original link
All other reports eg ecology
Archived · Original link
All other reports eg ecology
Archived · Original link
plans received with application
Archived · Original link
plans received with application
Archived · Original link
All other reports eg ecology
Archived · Original link
All other reports eg ecology
Archived · Original link
Electronic neighbour consultation response
Archived · Original link

Have your say

Your comment matters. Councils must consider every representation that raises material planning considerations.

Write a comment