← Sevenoaks District Council

Status

Awaiting decision Change of use
Received
24 Dec 2025
New homes
0

Full proposal

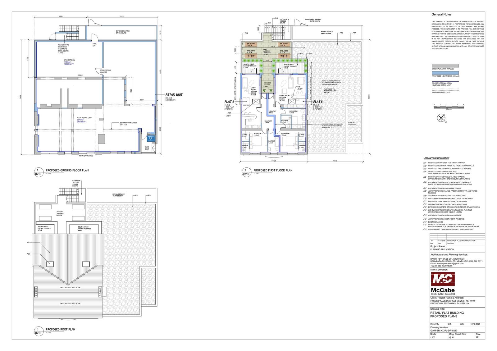
Change of use from former Public House to Retail Use Class E. Part demolition of single-storey side and rear additions and replacement with extensions at ground and first floor. Conversion of first floor flat to create additional residential flat and erection of three two-storey detached houses to the south. Associated car parking, landscaping and highways works to A20

Documents

APPLICATION - CONSULTEES STATUS
Consultations - Request
Not yet archived · Original link
APPLICATION FORM - WITHOUT PERSONAL DATA
Application Form
Not yet archived · Original link
ARCHAEOLOGICAL ASSESSMENT
Application Details
Not yet archived · Original link
AREA SCHEDULE
Application Details
Not yet archived · Original link
BASELINE HABITAT PLAN
Drawing
Not yet archived · Original link
BIODIVERSITY SURVEY AND REPORT
Application Details
Not yet archived · Original link
CONTIGUOUS ELEVATIONS - SHEET 1
Drawing
Not yet archived · Original link
CONTIGUOUS ELEVATIONS - SHEET 2
Drawing
Not yet archived · Original link
CONTIGUOUS ELEVATIONS - SHEET 3
Drawing
Not yet archived · Original link
CONTIGUOUS ELEVATIONS - SHEET 4
Drawing
Not yet archived · Original link
COVER LETTER
Application Details
Not yet archived · Original link
COVERING LETTER
Application Details
Not yet archived · Original link
DESIGN AND ACCESS/PLANNING STATEMENT
Design And Access Statement
Not yet archived · Original link
DRAINAGE STRATEGY & FLOOD RISK REPORT
Application Details
Not yet archived · Original link
DRAINAGE STRATEGY & FLOOD RISK REPORT
Application Details
Not yet archived · Original link
DWELLING 1-3 WASTE & CYCLE STORAGE DETAILS
Drawing
Not yet archived · Original link
ENVIRONMENTAL HEALTH
Consultations - Response
Not yet archived · Original link
EXA IBFRASTRUCTURE 1 OF 2
Consultations - Response
Not yet archived · Original link
EXA IBFRASTRUCTURE 2 OF 2
Consultations - Response
Not yet archived · Original link
EXISTING SITE BLOCK PLAN
Drawing
Not yet archived · Original link
KCC ARCHAEOLOGY
Consultations - Response
Not yet archived · Original link
KCC HIGHWAYS AND TRANSPORTATION
Consultations - Response
Not yet archived · Original link
LAND CONTAMINATION - MAPPING ASSESSMENT
Application Details
Not yet archived · Original link
LAND CONTAMINATION ASSESSMENT - MAPPING 2
Application Details
Not yet archived · Original link
LAND CONTAMINATION ASSESSMENT 2
Application Details
Not yet archived · Original link
LANDSCAPE DETAILS - SHEET 1
Drawing
Not yet archived · Original link
LANDSCAPE DETAILS - SHEET 2
Drawing
Not yet archived · Original link
LEAD LOCAL FLOOD AUTHORITY
Consultations - Response
Not yet archived · Original link
LOCATION PLAN
Drawing
Not yet archived · Original link
LSBUD
Consultations - Response
Not yet archived · Original link
NATIONAL HIGHWAYS
Consultations - Response
Not yet archived · Original link
NOCTURNAL EMERGENCE BAT SURVEY
Application Details
Not yet archived · Original link
NOISE IMPACT ASSESSMENT
Application Details
Not yet archived · Original link
PARISH COUNCIL CONSULTATION LETTER
Consultations - Request
Not yet archived · Original link
PHASE 1 DESK TOP STUDY
Application Details
Not yet archived · Original link
PLANNING STATEMENT & SEQUENTIAL ASSESSMENT
Application Details
Not yet archived · Original link
PRELIMINARY ECOLOGICAL APPRAISAL REPORT
Application Details
Not yet archived · Original link
PUBLIC COMMENT
Public Consultation - Response
Not yet archived · Original link
PUBLIC COMMENT
Public Consultation - Response
Not yet archived · Original link
PUBLIC COMMENT
Public Consultation - Response
Not yet archived · Original link
PUBLIC COMMENT
Public Consultation - Response
Not yet archived · Original link
PUBLIC COMMENT
Public Consultation - Response
Not yet archived · Original link
PUBLIC COMMENT
Public Consultation - Response
Not yet archived · Original link
PUBLIC COMMENT
Public Consultation - Response
Not yet archived · Original link
PUBLIC COMMENT
Public Consultation - Response
Not yet archived · Original link
PUBLIC COMMENT
Public Consultation - Response
Not yet archived · Original link
PUBLIC COMMENT
Public Consultation - Response
Not yet archived · Original link
RETAIL/FLAT BUILDING - EXISTING PLANS
Drawing
Not yet archived · Original link
RETAIL/FLAT BUILDING - PROPOSED ELEVATIONS & SECTION
Drawing
Not yet archived · Original link
SDC PLANNING POLICY
Consultations - Response
Not yet archived · Original link
SGN GAS AND PIPELINE 1 OF 6
Consultations - Response
Not yet archived · Original link
SGN GAS AND PIPELINE 2 OF 6
Consultations - Response
Not yet archived · Original link
SGN GAS AND PIPELINE 3 OF 6
Consultations - Response
Not yet archived · Original link
SGN GAS AND PIPELINE 4 OF 6
Consultations - Response
Not yet archived · Original link
SGN GAS AND PIPELINE 5 OF 6
Consultations - Response
Not yet archived · Original link
SGN GAS AND PIPELINE 6 OF 6
Consultations - Response
Not yet archived · Original link
SOUTHERN WATER
Consultations - Response
Not yet archived · Original link
STATUTORY BIODIVERSITY NET GAIN METRIC
BNG
Not yet archived · Original link
TRANSPORT STATEMENT
Application Details
Not yet archived · Original link
TREE OFFICER
Consultations - Response
Not yet archived · Original link
TREE SURVEY
Application Details
Not yet archived · Original link
UK POWER - 1 OF 4
Consultations - Response
Not yet archived · Original link
UK POWER - 2 OF 4
Consultations - Response
Not yet archived · Original link
UK POWER - 3 OF 4
Consultations - Response
Not yet archived · Original link
UK POWER - 4 OF 4
Consultations - Response
Not yet archived · Original link
WEST KINGSDOWN PARISH COUNCIL
Consultations - Response
Not yet archived · Original link

Have your say

Your comment matters. Councils must consider every representation that raises material planning considerations.

Write a comment