← Sevenoaks District Council

Status

Awaiting decision New housing
Received
26 Jan 2026
New homes
3

Full proposal

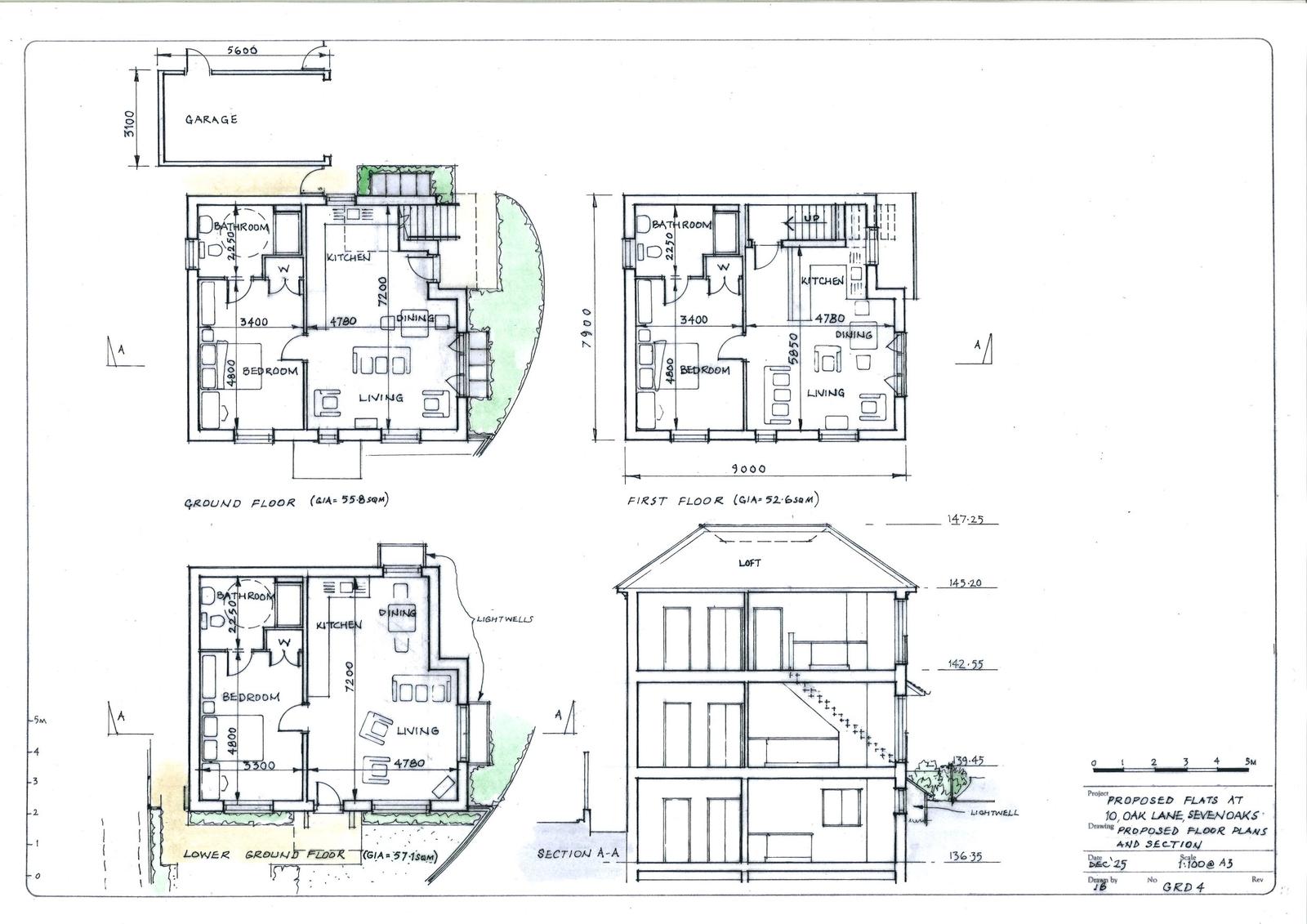
Outline application for demolition of a double garage and erection of three self build one bedroom flats with solar panels, together with a new single garage with associated drive, turning space and parking in the grounds of 10 Oak Lane, Sevenoaks with some matters reserved except for access, appearance, layout and scale.

Documents

APPLICATION - CONSULTEES STATUS
Consultations - Request
Not yet archived · Original link
APPLICATION FORM - WITHOUT PERSONAL DATA
Application Form
Not yet archived · Original link
ARTICLE 13 NOTICE
Application Details
Not yet archived · Original link
CERTIFICATE B
Application Details
Not yet archived · Original link
HIGHWAY DETAILS
Drawing
Not yet archived · Original link
N/A - PLANNING STATEMENT
Application Details
Not yet archived · Original link
PARISH COUNCIL CONSULTATION LETTER
Consultations - Request
Not yet archived · Original link
PLANNING, DESIGN & ACCESS STATEMENT
Design And Access Statement
Not yet archived · Original link
PROPOSED ELEVATIONS
Drawing
Not yet archived · Original link
SDC - ENVIRONMENTAL PROTECTION
Consultations - Response
Not yet archived · Original link
STREET ELEVATIONS
Drawing
Not yet archived · Original link

Have your say

Your comment matters. Councils must consider every representation that raises material planning considerations.

Write a comment