← Sevenoaks District Council

Status

Awaiting decision House extension
Received
Last month
New homes
0

Full proposal

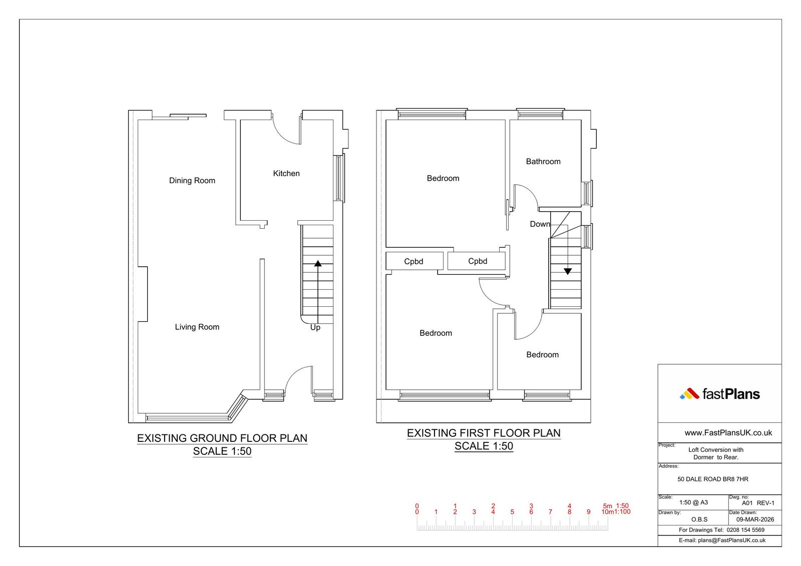
Rear dormer by way of hip to gable conversion with rooflights on front slope. Skylight.

Documents

Drawing
Archived · Original link
Drawing
Archived · Original link
Drawing
Archived · Original link
Application Details
Archived · Original link

Have your say

Your comment matters. Councils must consider every representation that raises material planning considerations.

Write a comment