← Sevenoaks District Council

Status

Awaiting decision New housing
Received
Last month
New homes
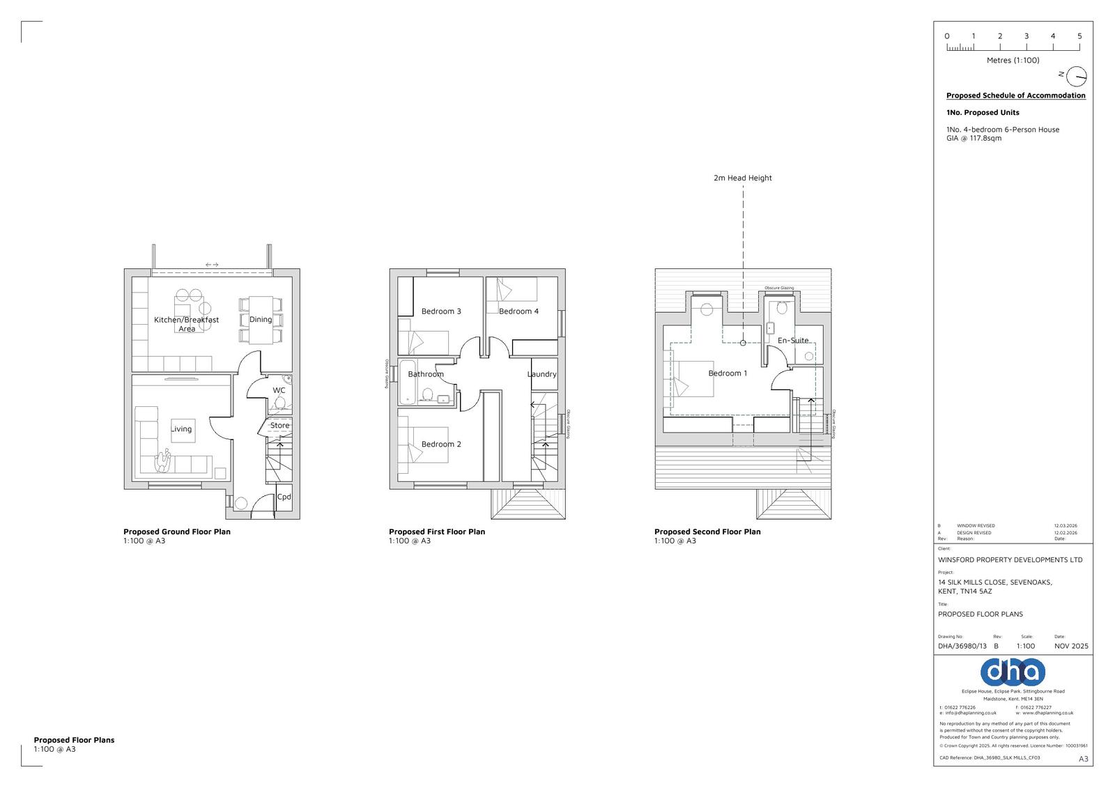
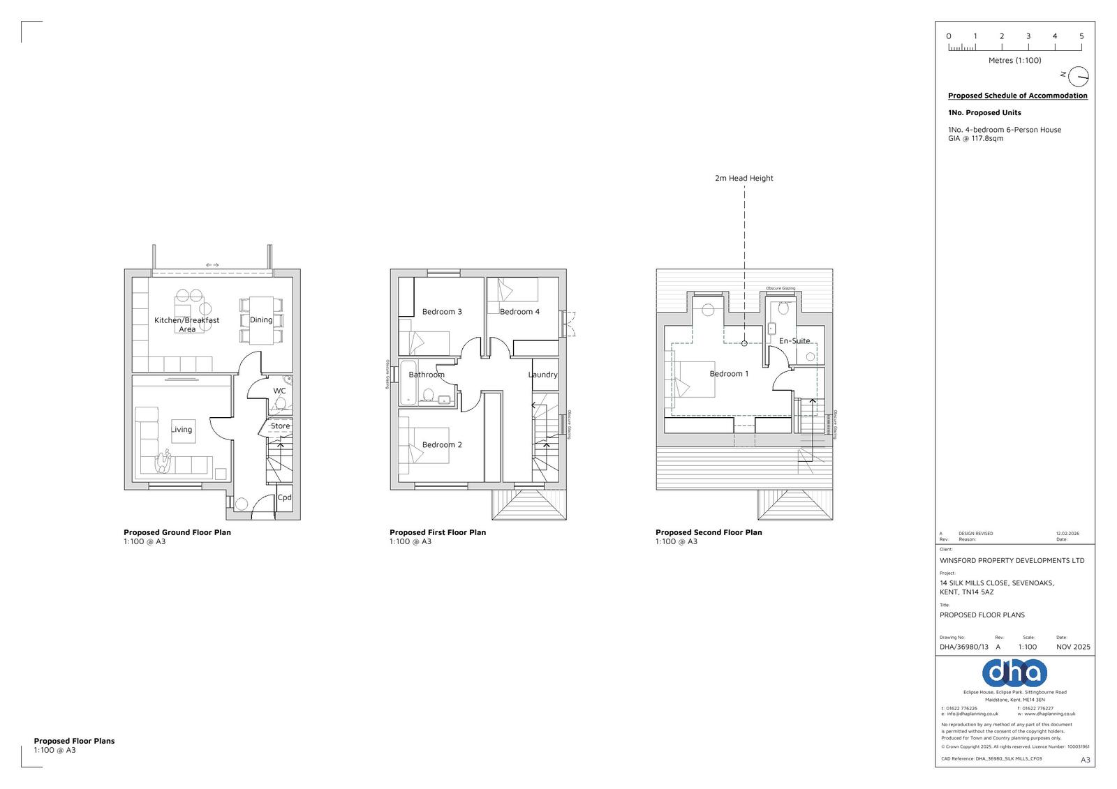
1

Full proposal

Erection of a detached dwelling and creation of associated parking and landscaping.

Have your say

Your comment matters. Councils must consider every representation that raises material planning considerations.

Write a comment