25/03738/CHU
Sheffield City Council
Status
Awaiting decision
Change of use
Received
22 Dec 2025
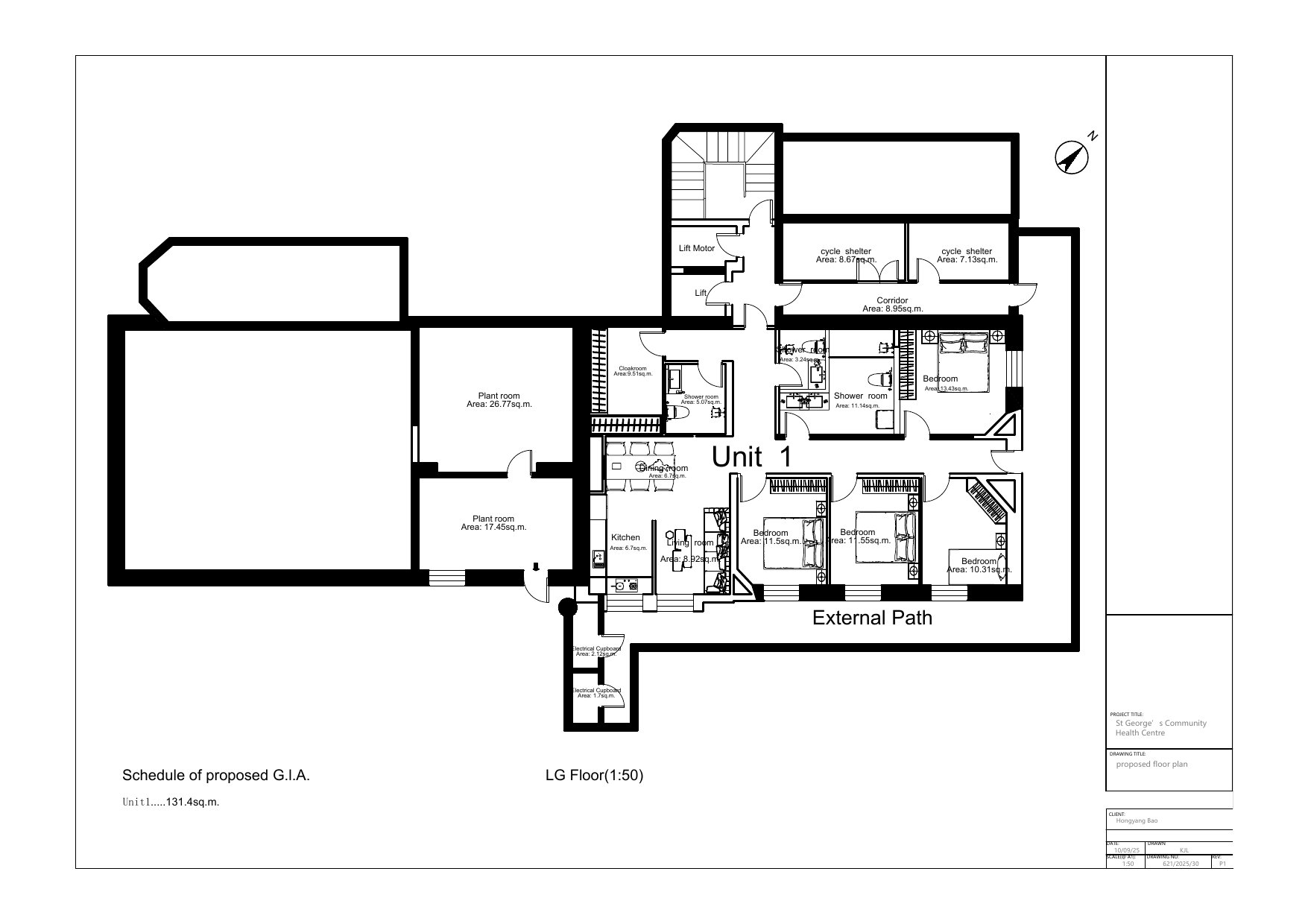
New homes
7
Full proposal
Use of former health centre (Use Class E) as 7 apartments (Use Class C3)
Documents
Appendix 1 - external and internal photographs of application site as existing
Photographs
Not yet archived
· Original link
Appendix 2 - weston park description
Application (Supporting Submis
Not yet archived
· Original link
Heritage, design and access statement
Application (Supporting Submis
Not yet archived
· Original link
Have your say
Your comment matters. Councils must consider every representation that raises material planning considerations.