← Sheffield City Council

Status

Awaiting decision House extension
Received
06 Jan 2026
New homes
0

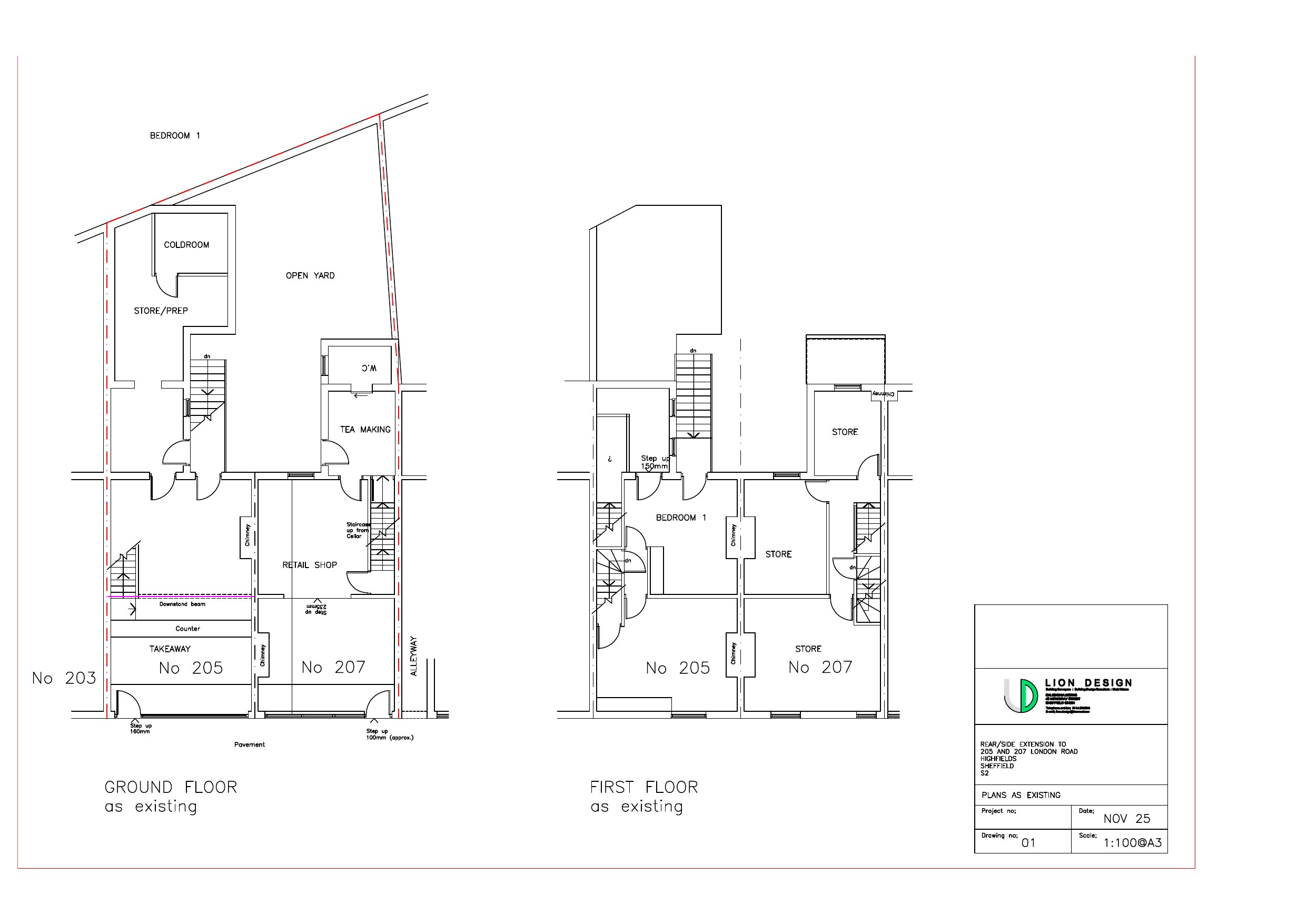
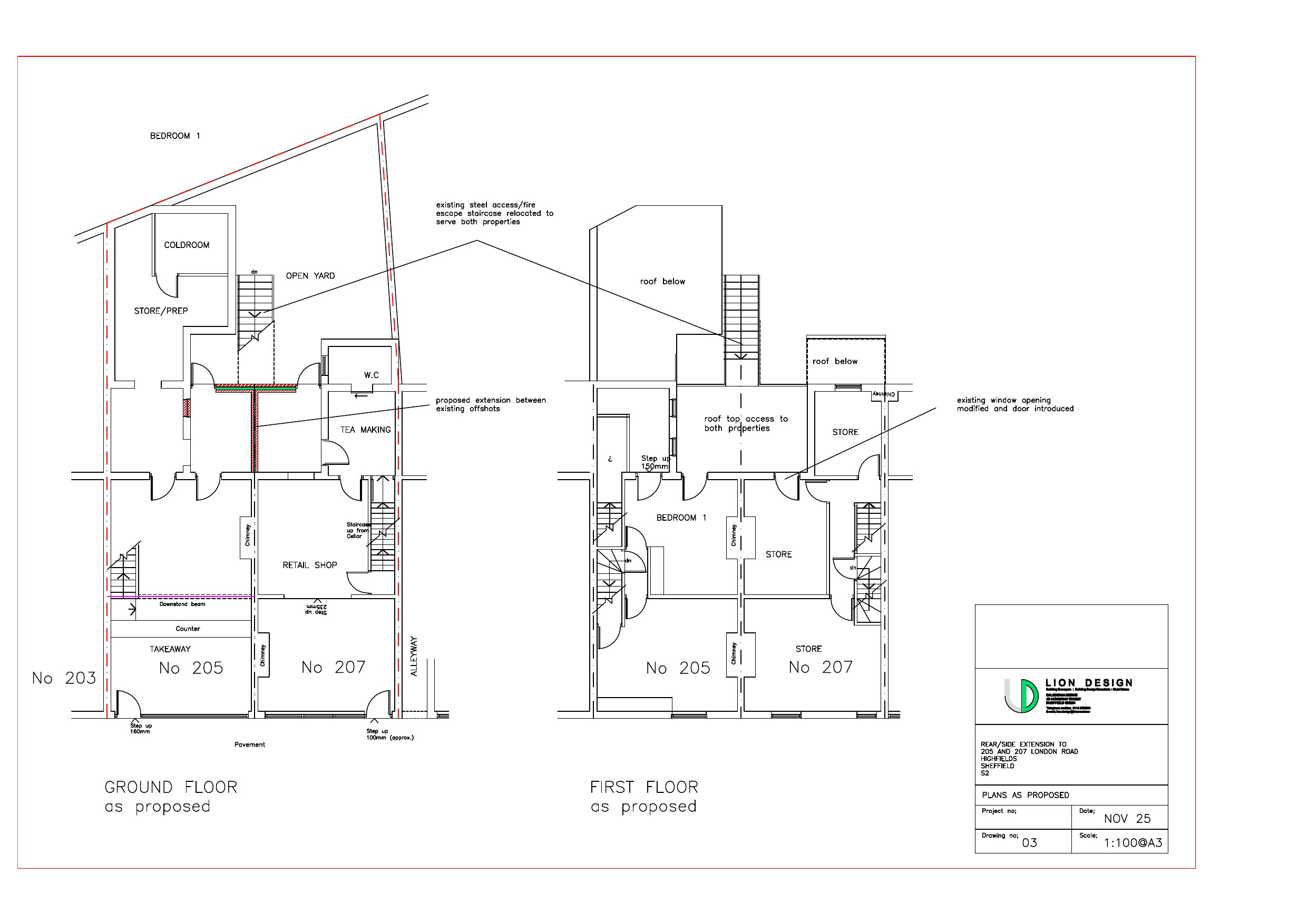
Full proposal

Erection of single-storey extension to rear of properties, provision of external rear staircase to first-floor and alteration to first-floor rear fenestration of 207 London Road

Documents

Application (Drawings)
Archived · Original link
Application (Drawings)
Archived · Original link
Application (Drawings)
Archived · Original link
Application (Drawings)
Archived · Original link

Have your say

Your comment matters. Councils must consider every representation that raises material planning considerations.

Write a comment