← Sheffield City Council

Status

Awaiting decision House extension
Received
07 Jan 2026
New homes
0

Full proposal

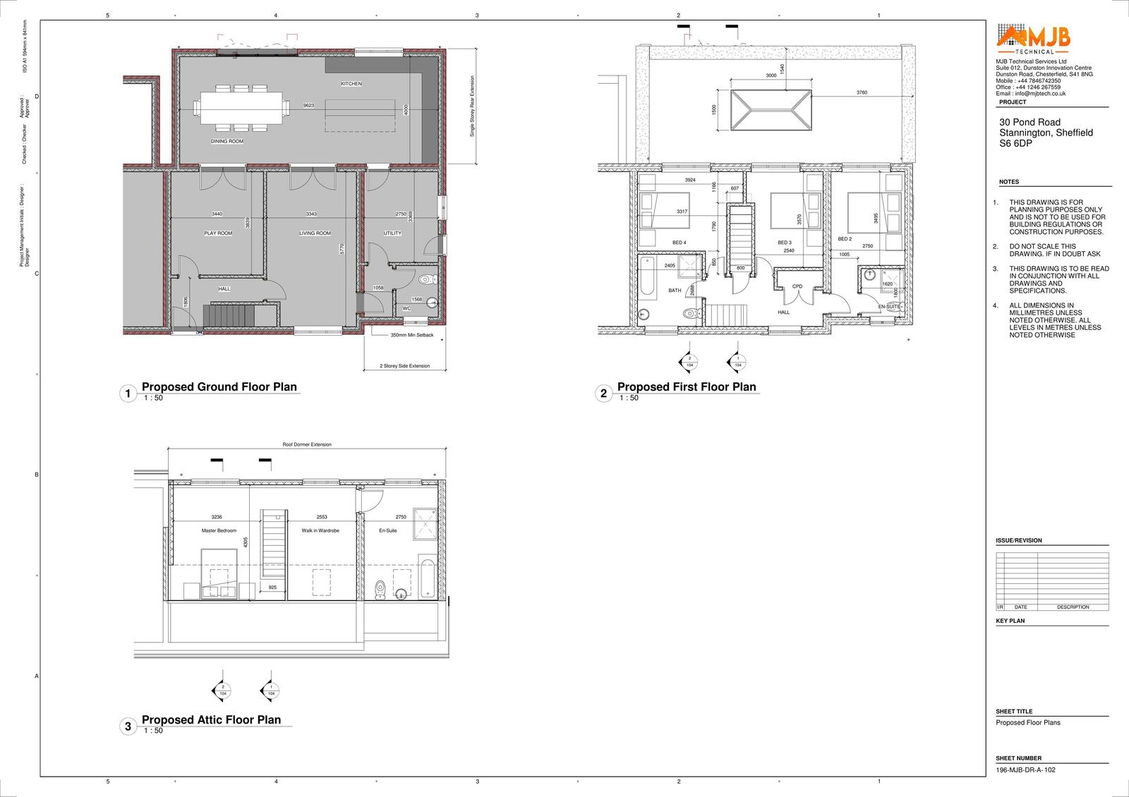
Erection of two-storey side and single-storey rear extension and alterations to roof to form additional living accommodation including erection of rear dormer extension

Documents

Block plan
Archived · Original link
Application (Drawings)
Archived · Original link
Application (Drawings)
Archived · Original link
Section Proposed
Archived · Original link

Have your say

Your comment matters. Councils must consider every representation that raises material planning considerations.

Write a comment