← Sheffield City Council

Status

Awaiting decision New housing
Received
Last month
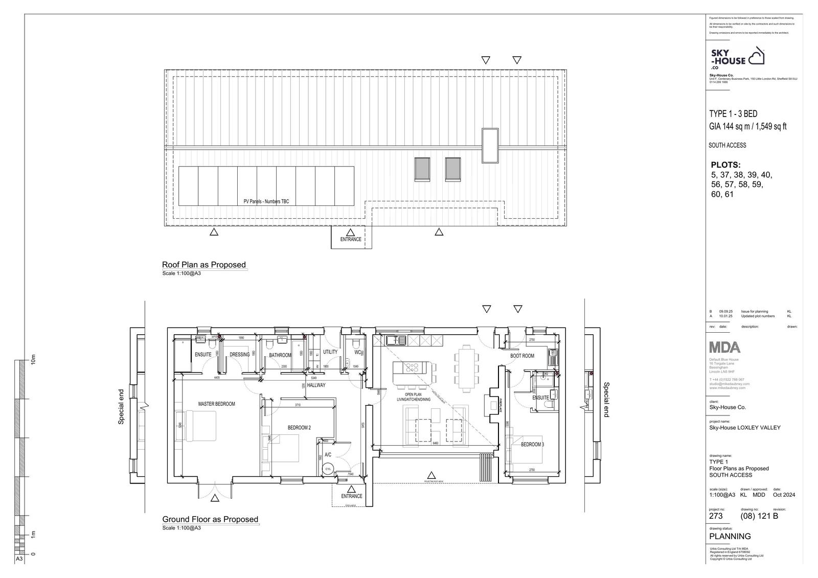
New homes
73

Full proposal

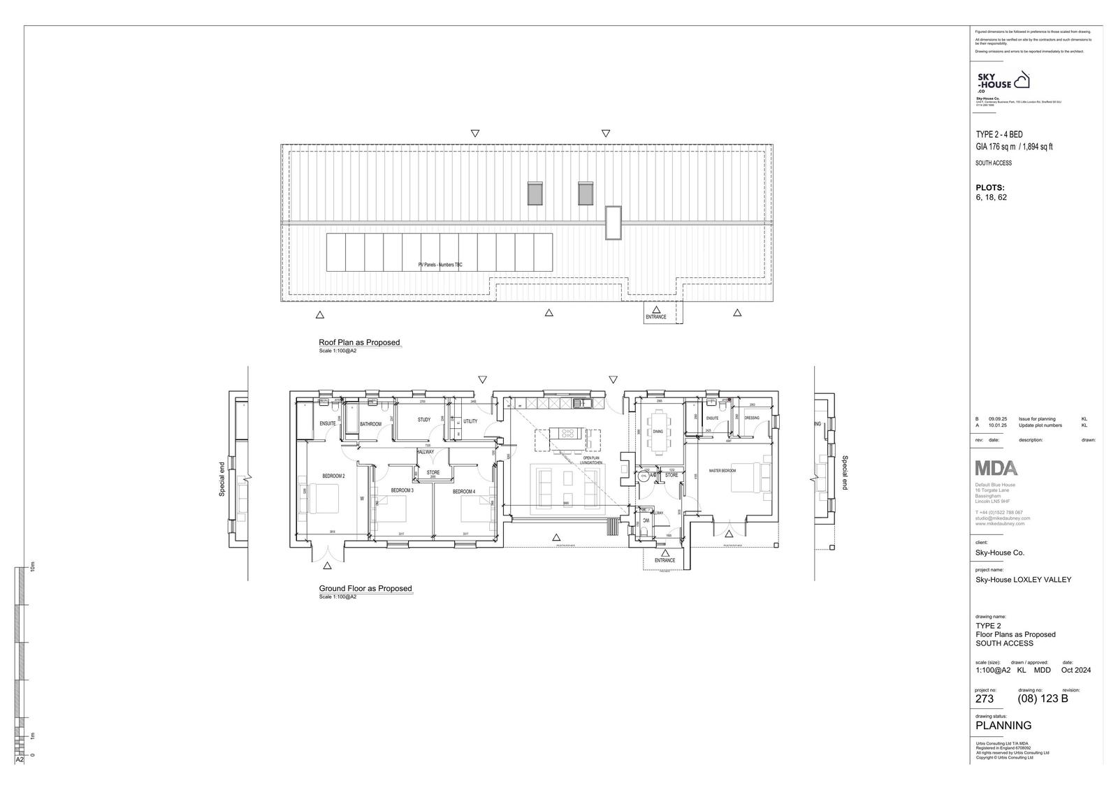
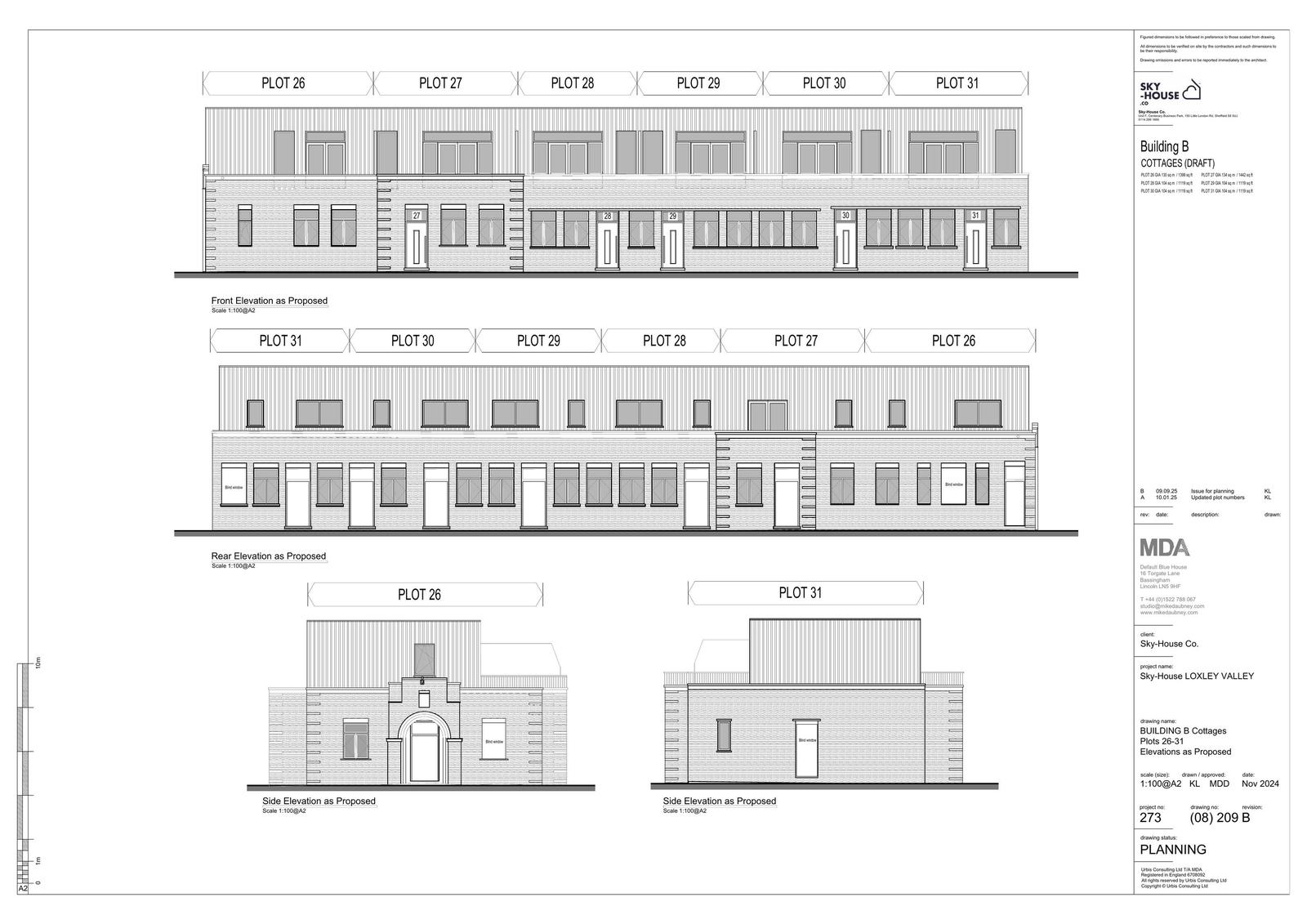
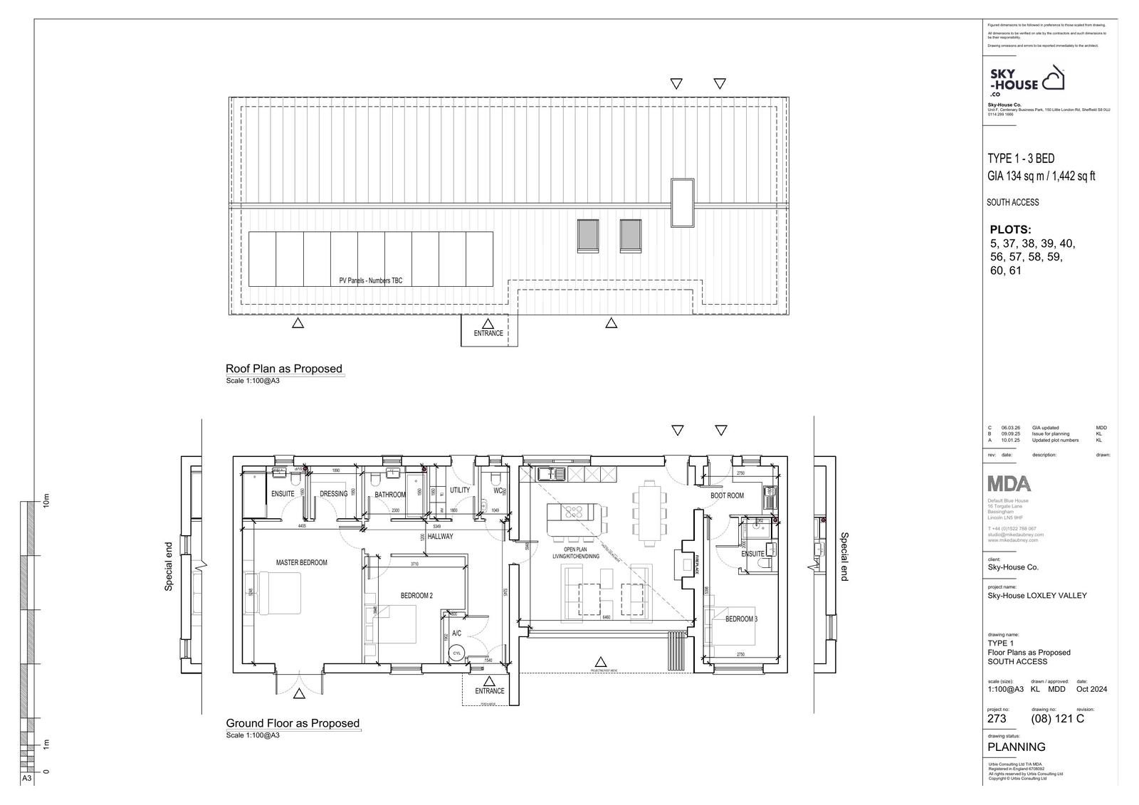
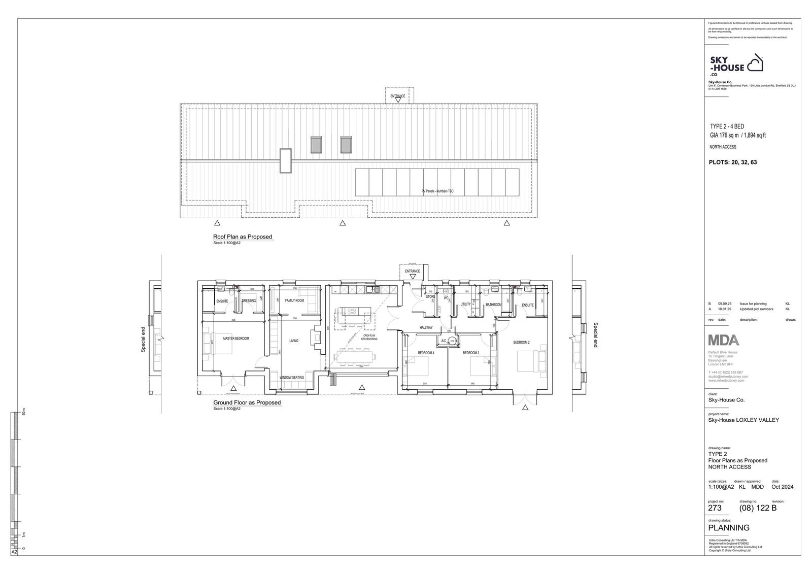
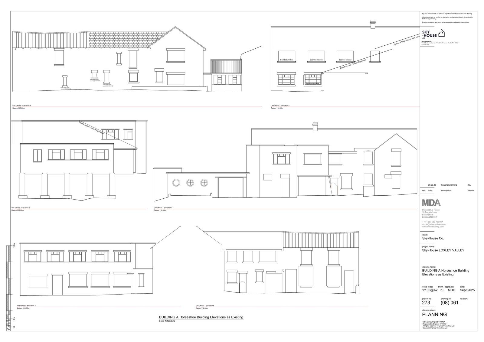
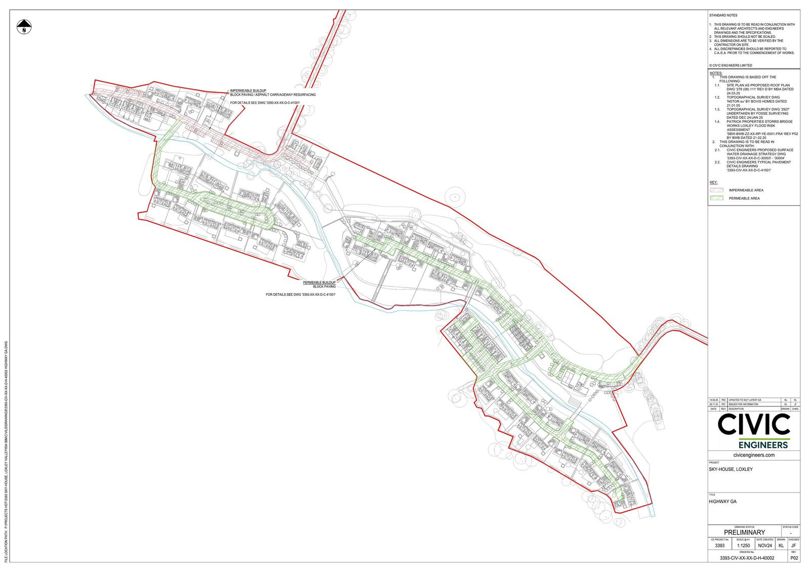
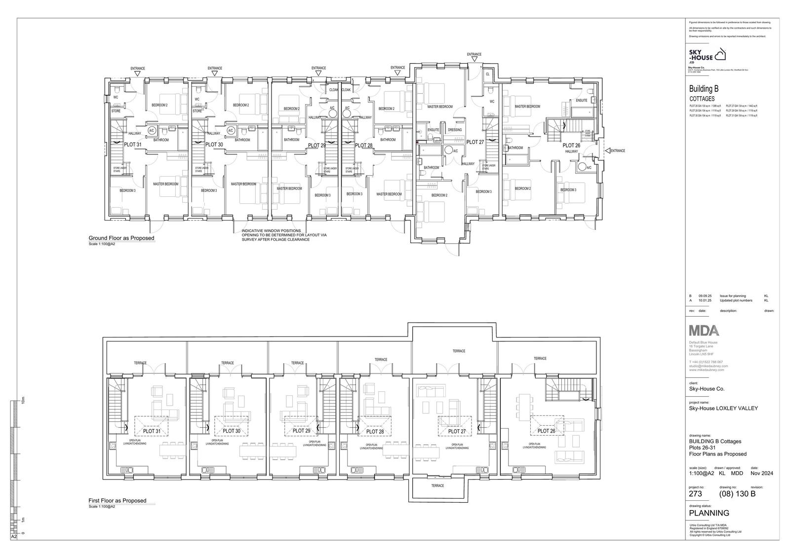
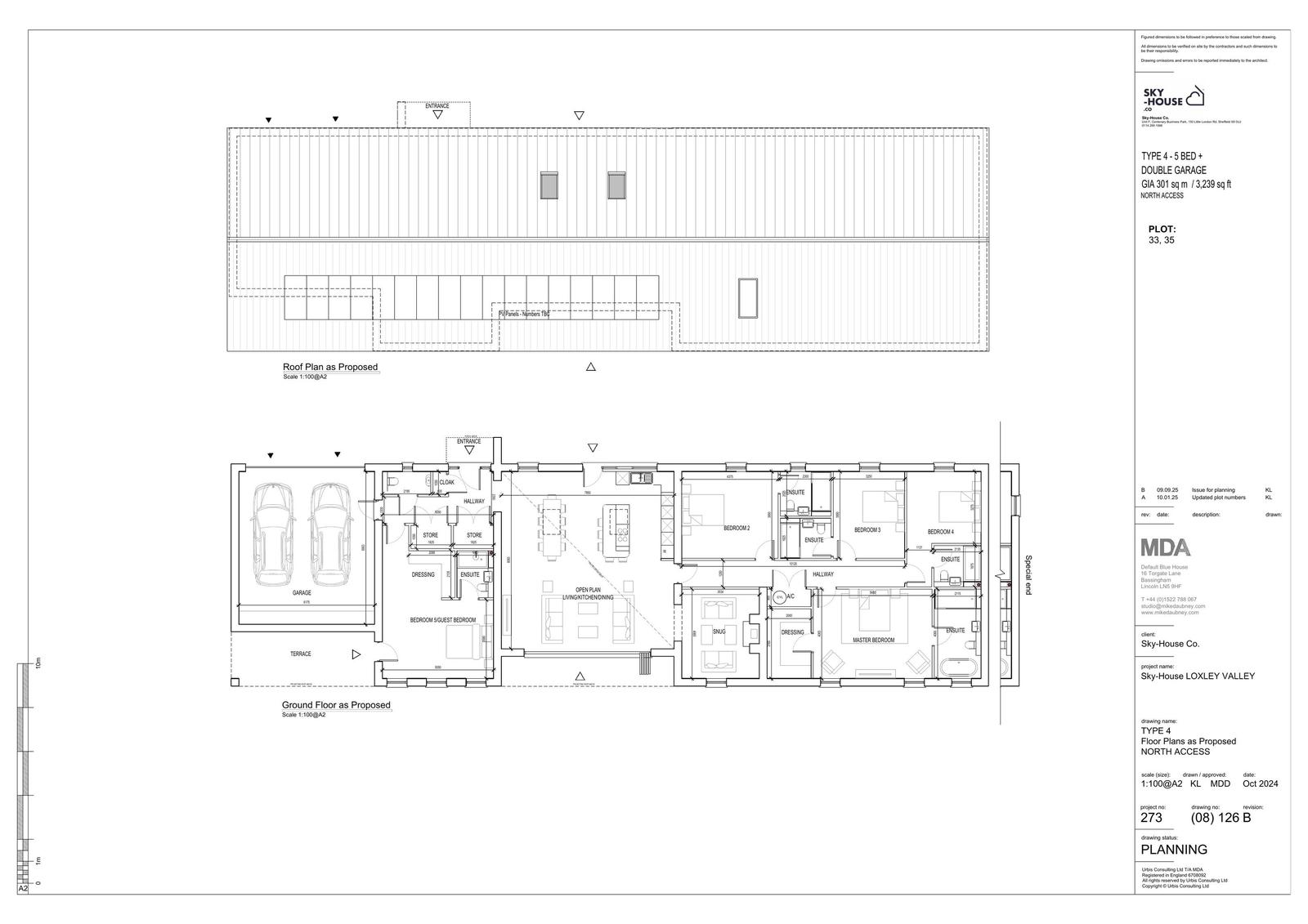
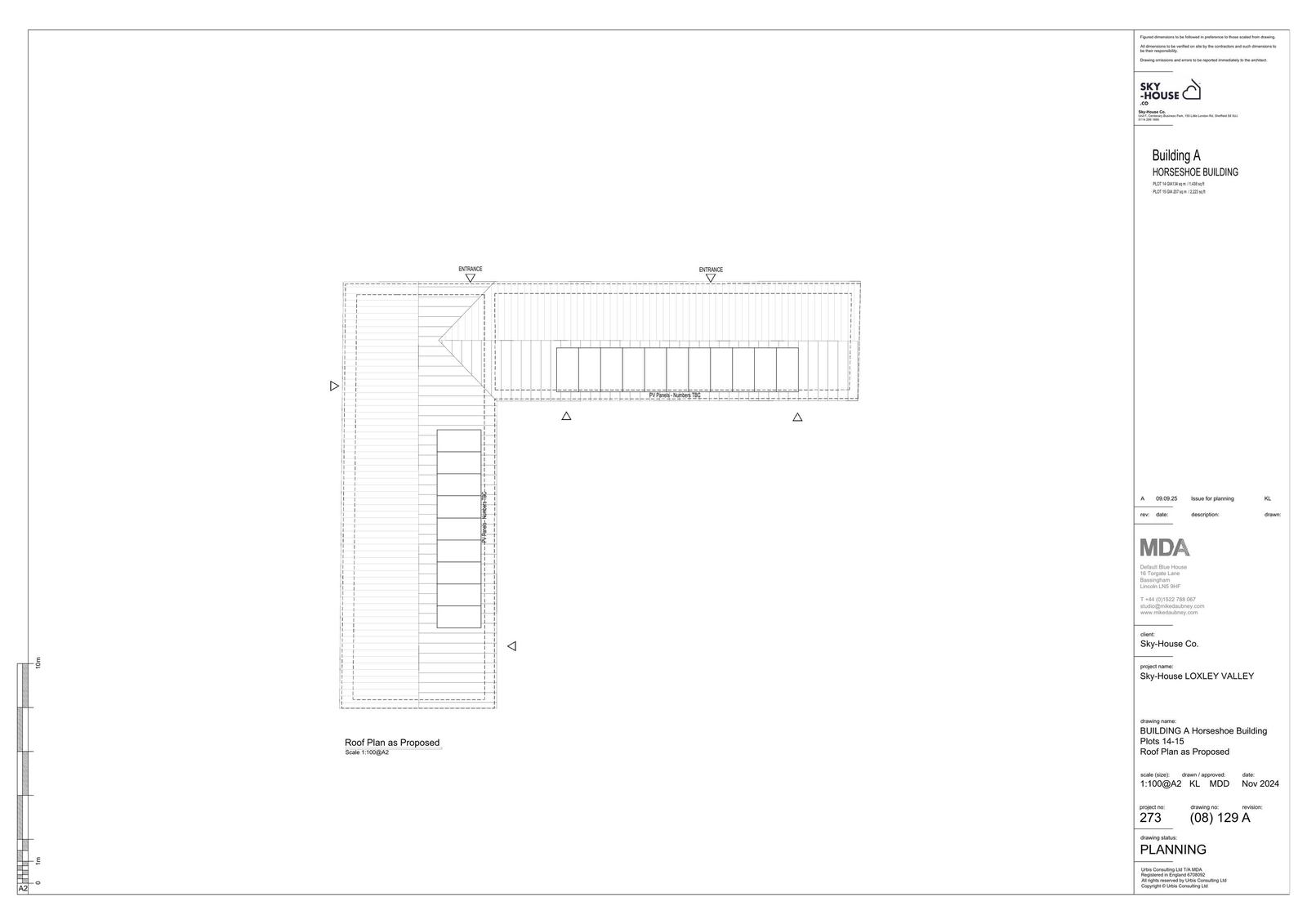
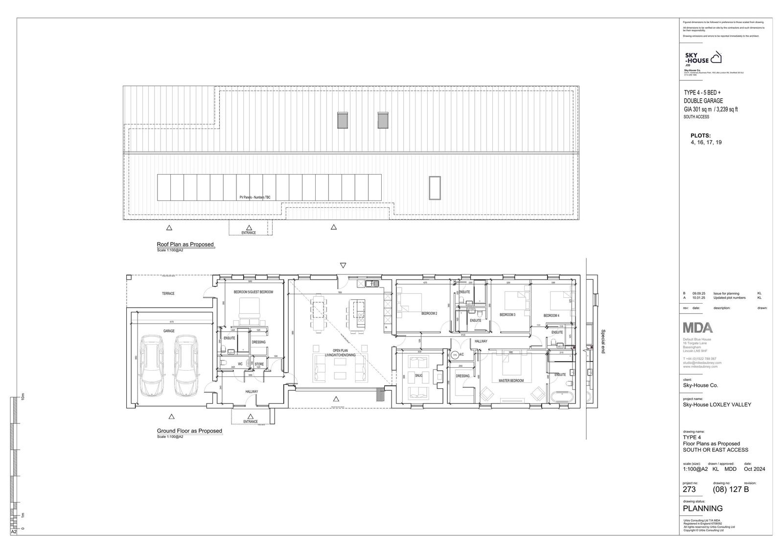
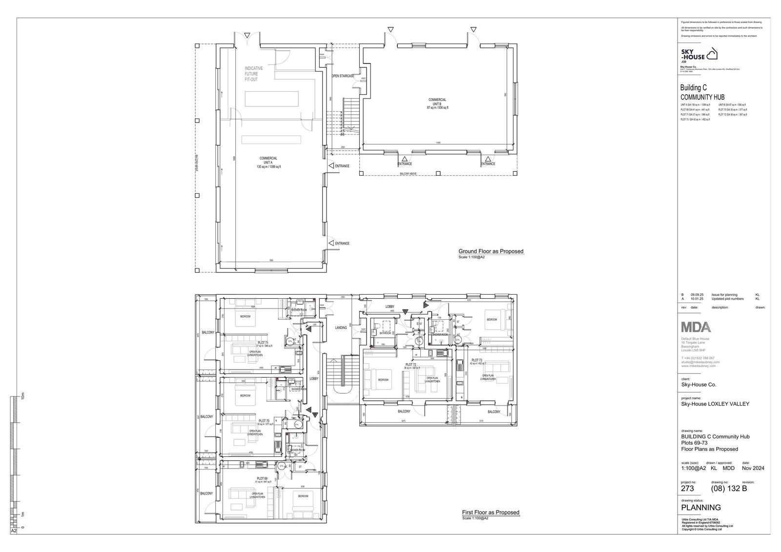
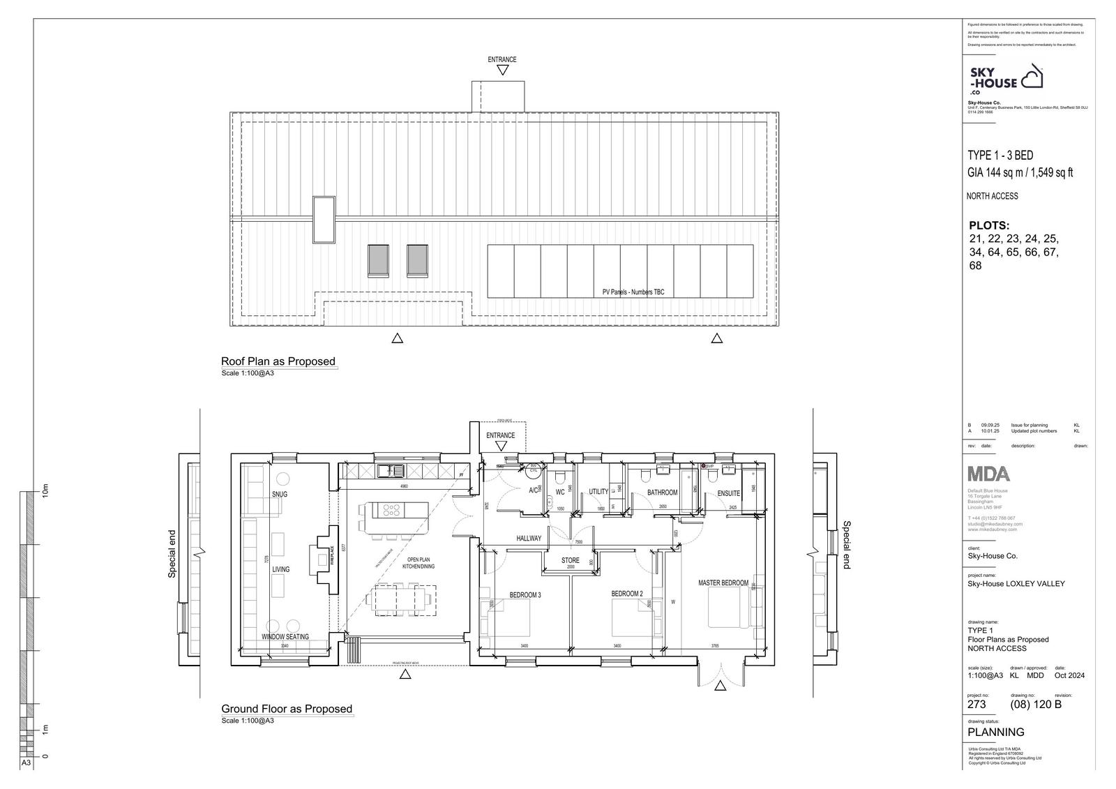
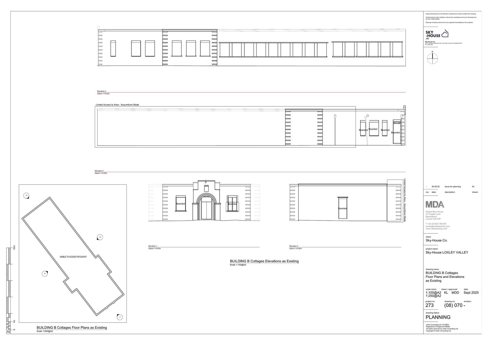
Phased redevelopment of Former Loxley Works to include demolition and clearance of existing buildings, the removal of hard surfaced areas, site remediation, the erection of new buildings and the change of use of existing buildings to be retained to deliver 73 dwellings and ancillary accommodation, a community hub - comprising a shop selling essential goods (Use Class F2) and a cafe/bar, padel court, construction of roads, bridges, improvement of existing accesses from Loxley Road and Rowell Lane, the installation of package treatment plants, substations, infrastructure, landscaping and associated works

Documents

Application (Supporting Submis
Archived · Original link
Consultee Comment
Archived · Original link
Application (Amended Drawings)
Archived · Original link
Application Form
Archived · Original link
Ecology documentation
Archived · Original link
Application (Supporting Submis
Archived · Original link
Ecology documentation
Archived · Original link
Ecology documentation
Archived · Original link
Ecology documentation
Archived · Original link
Bng metric
Ecology documentation
Not yet archived · Original link
Consultee Comment
Archived · Original link
Application (Drawings)
Archived · Original link
Design & access statement
Archived · Original link
Application (Drawings)
Archived · Original link
Application (Drawings)
Archived · Original link
Application Other
Archived · Original link
Land contamination assessment
Archived · Original link
Land contamination assessment
Archived · Original link
Application (Drawings)
Archived · Original link
Application (Drawings)
Archived · Original link
Application (Drawings)
Archived · Original link
Application (Drawings)
Archived · Original link
Application (Drawings)
Archived · Original link
Application (Drawings)
Archived · Original link
Application (Supporting Submis
Archived · Original link
Application (Supporting Submis
Archived · Original link
Application (Supporting Submis
Archived · Original link
Application (Drawings)
Archived · Original link
Application (Drawings)
Archived · Original link
Application (Drawings)
Archived · Original link
Application (Drawings)
Archived · Original link
Application (Drawings)
Archived · Original link
Application (Drawings)
Archived · Original link
Application (Drawings)
Archived · Original link
Application (Drawings)
Archived · Original link
Application (Drawings)
Archived · Original link
Application (Drawings)
Archived · Original link
Application (Drawings)
Archived · Original link
Application (Drawings)
Archived · Original link
Application (Drawings)
Archived · Original link
Application (Drawings)
Archived · Original link
Application (Drawings)
Archived · Original link
Application (Drawings)
Archived · Original link
Application (Drawings)
Archived · Original link
Application (Supporting Submis
Archived · Original link
Application (Supporting Submis
Archived · Original link
Application (Supporting Submis
Archived · Original link
Application (Supporting Submis
Archived · Original link
Application Other
Archived · Original link
Location plan
Archived · Original link
Application (Drawings)
Archived · Original link
Neighbour Notification Details
Archived · Original link
Noise impact assessment
Archived · Original link
Application (Drawings)
Archived · Original link
Application (Drawings)
Archived · Original link
Application (Drawings)
Archived · Original link
Application (Drawings)
Archived · Original link
Application (Drawings)
Archived · Original link
Application (Supporting Submis
Archived · Original link
Ecology documentation
Archived · Original link
Application (Drawings)
Archived · Original link
Ecology documentation
Archived · Original link
Application (Drawings)
Archived · Original link
Application (Drawings)
Archived · Original link
Application (Drawings)
Archived · Original link
Application (Drawings)
Archived · Original link
Application (Drawings)
Archived · Original link
Application (Drawings)
Archived · Original link
Application (Drawings)
Archived · Original link
Application (Drawings)
Archived · Original link
Application (Drawings)
Archived · Original link
Consultee Comment
Archived · Original link
Application (Supporting Submis
Archived · Original link
Ecology documentation
Archived · Original link
Application (Drawings)
Archived · Original link
Application (Supporting Submis
Archived · Original link
Travel plan
Archived · Original link

Have your say

Your comment matters. Councils must consider every representation that raises material planning considerations.

Write a comment