← Sheffield City Council

Status

Awaiting decision New housing
Received
Last month
New homes
1

Full proposal

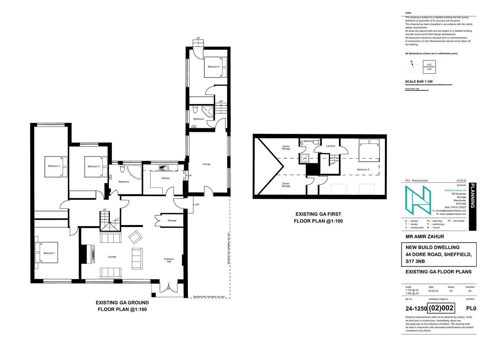
Demolition of dwellinghouse, erection of self-build dwellinghouse

Documents

Location plan
Archived · Original link
Coal mining risk assessment
Archived · Original link
Application (Drawings)
Archived · Original link
Application (Drawings)
Archived · Original link
Application Form
Archived · Original link
Neighbour Notification Details
Archived · Original link

Have your say

Your comment matters. Councils must consider every representation that raises material planning considerations.

Write a comment