← Sheffield City Council

Status

Awaiting decision Change of use
Received
Last month
New homes
9

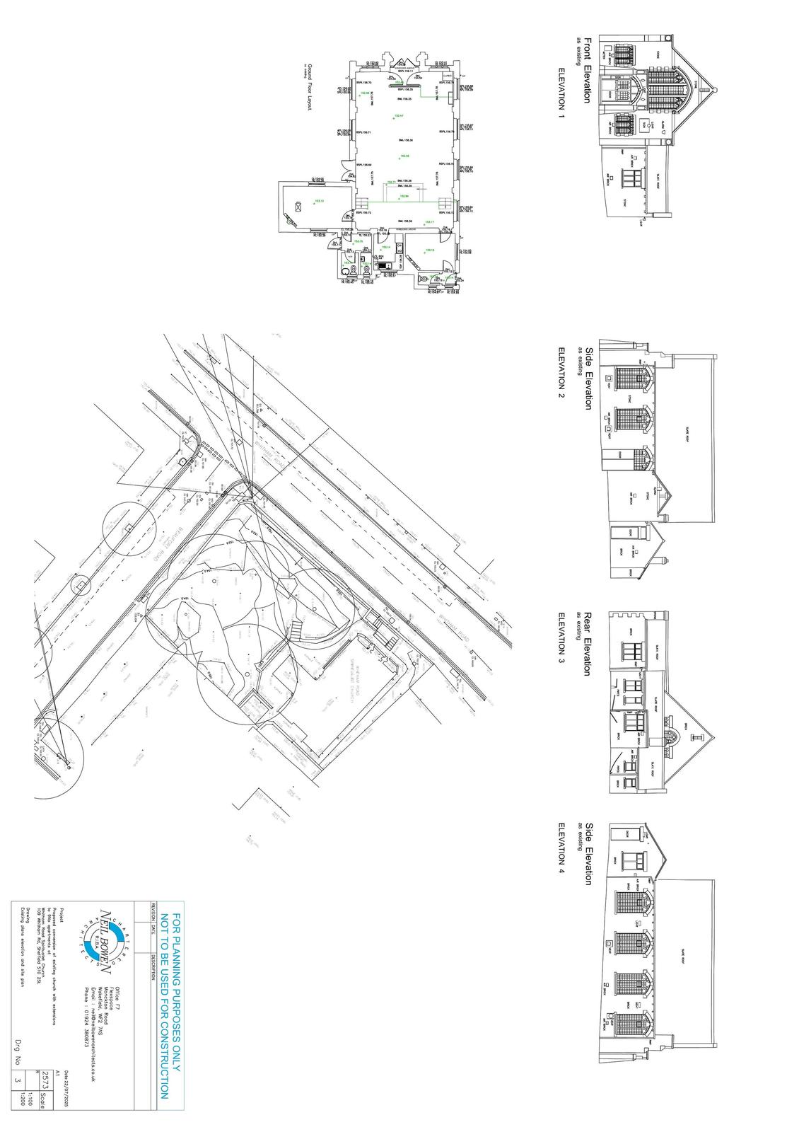
Full proposal

Use of former church as 9 apartments (Use Class C3) with alterations including three-storey side extension with glazed link, and two-storey side extension

Documents

Application (Drawings)
Archived · Original link
Application (Drawings)
Archived · Original link
Application (Drawings)
Archived · Original link
Location plan
Archived · Original link
Application Form
Archived · Original link
Bng metric witham road church
Ecology documentation
Not yet archived · Original link
Bng metric witham road church (sq-3810)
Ecology documentation
Not yet archived · Original link
Planning statement
Archived · Original link
Heritage statement
Archived · Original link
Neighbour Notification Details
Archived · Original link
Ecology documentation
Archived · Original link
Consultee Comment
Archived · Original link

Have your say

Your comment matters. Councils must consider every representation that raises material planning considerations.

Write a comment