← Sheffield City Council

Status

Awaiting decision House extension
Received
Last month
New homes
0

Full proposal

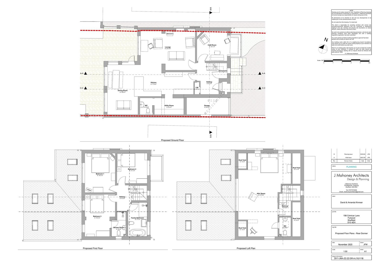
Alterations and extension to roof including raising of ridge height, hip to gable extension, and erection of front and rear dormer extensions, and erection of a first floor side extension to dwellinghouse

Documents

2511 - design access statement
Design & access statement
Not yet archived · Original link
2511 - site photos
Photographs
Not yet archived · Original link
2511-jma-zz-xx-dr-a-(02)001b proposed sections
Application (Drawings)
Not yet archived · Original link
2511-jma-zz-xx-dr-a-(03)001b existing elevations
Application (Drawings)
Not yet archived · Original link
2511-jma-zz-xx-dr-a-(03)111b proposed elevations - rear dormer
Application (Drawings)
Not yet archived · Original link
2511-jma-zz-zz-dr-a-(01)511b existing proposed 3d views 1 - rear dormer
Application (Drawings)
Not yet archived · Original link
2511-jma-zz-zz-dr-a-(10)001b existing floor plans
Application (Drawings)
Not yet archived · Original link
Applicationformredacted
Application Form
Not yet archived · Original link
Neighbour Notification Details
Neighbour Notification Details
Not yet archived · Original link

Have your say

Your comment matters. Councils must consider every representation that raises material planning considerations.

Write a comment