← Sheffield City Council

Status

Awaiting decision House extension
Received
Last month
New homes
0

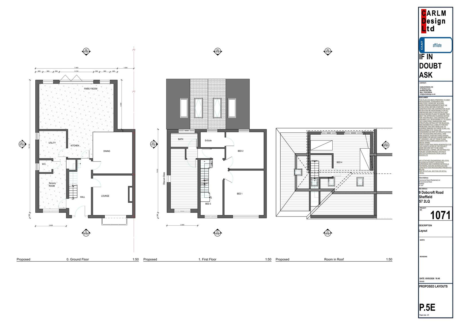
Full proposal

Alterations and extension to roof including rear dormer extension and provision of rooflights to front, erection of a 2-storey side extension, and a sinlge-storey rear extension to dwellinghouse

Documents

Location plan
Archived · Original link
Application (Drawings)
Archived · Original link
Application (Drawings)
Archived · Original link
Application (Drawings)
Archived · Original link
Application (Drawings)
Archived · Original link
Application Form
Archived · Original link
Neighbour Notification Details
Archived · Original link

Have your say

Your comment matters. Councils must consider every representation that raises material planning considerations.

Write a comment