← Sheffield City Council

Status

Awaiting decision Change of use
Received
27 days ago
New homes
0

Full proposal

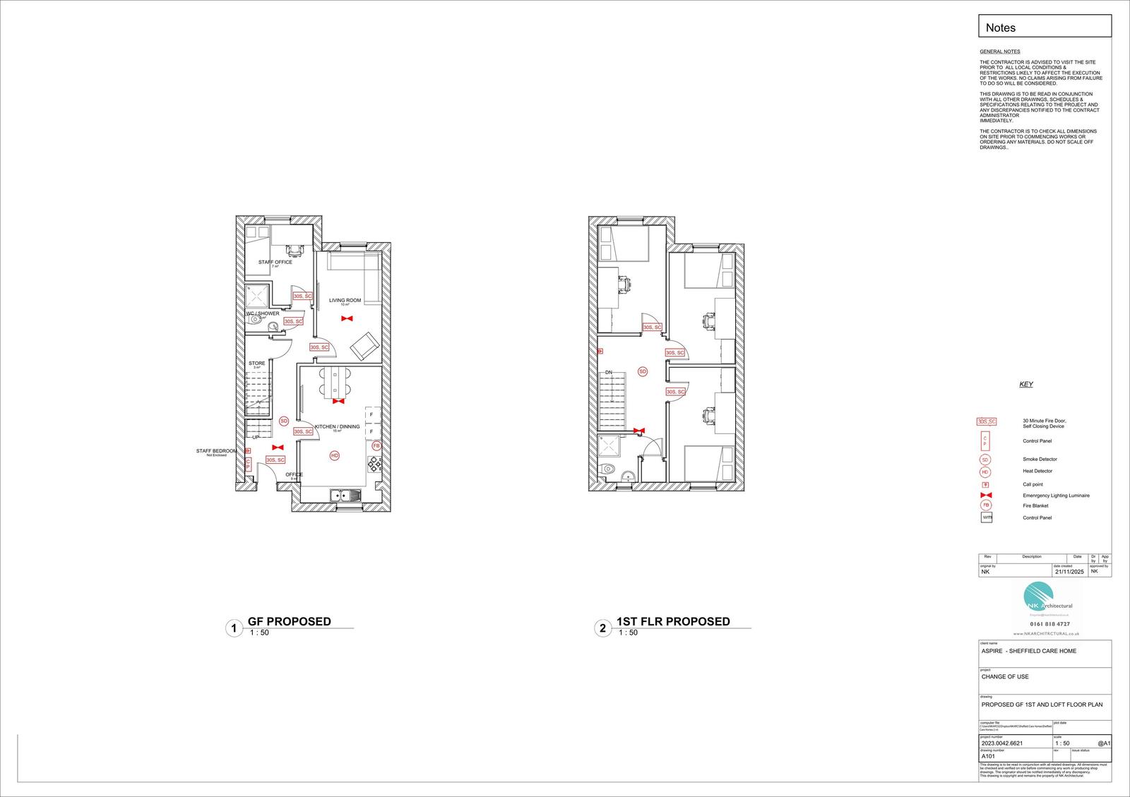
Use of House in Multiple Occupation (HMO) (Use Class C4) as a children's care home (Use Class C2)

Documents

Application Form
Archived · Original link
Application (Drawings)
Archived · Original link
Application (Drawings)
Archived · Original link
Neighbour Notification Details
Archived · Original link
Planning statement
Archived · Original link
Application (Drawings)
Archived · Original link
Application (Drawings)
Archived · Original link

Have your say

Your comment matters. Councils must consider every representation that raises material planning considerations.

Write a comment