Y/20941/001
Slough Borough Council
Status
Registered application
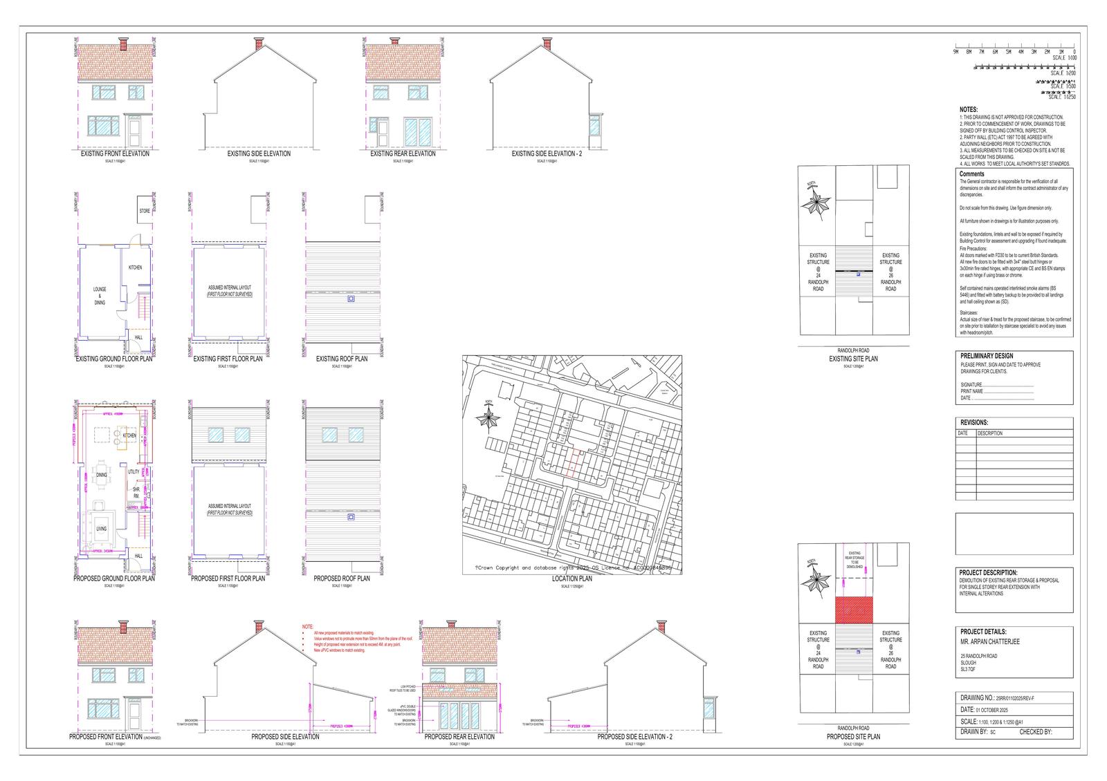
House extension
Received
09 Feb 2026
New homes
0
Full proposal
The erection of a single storey rear extension, which would extend beyond the rear wall of the original house by 4.3, with a maximum height of 3.75m, and an eaves height of 2.7m
Documents
Submitted Plans and Details
Archived
· Original link
Have your say
Your comment matters. Councils must consider every representation that raises material planning considerations.