← Eryri / Snowdonia National Park Authority

Status

Decision Made New housing
Received
07 May 2025
New homes
1

Full proposal

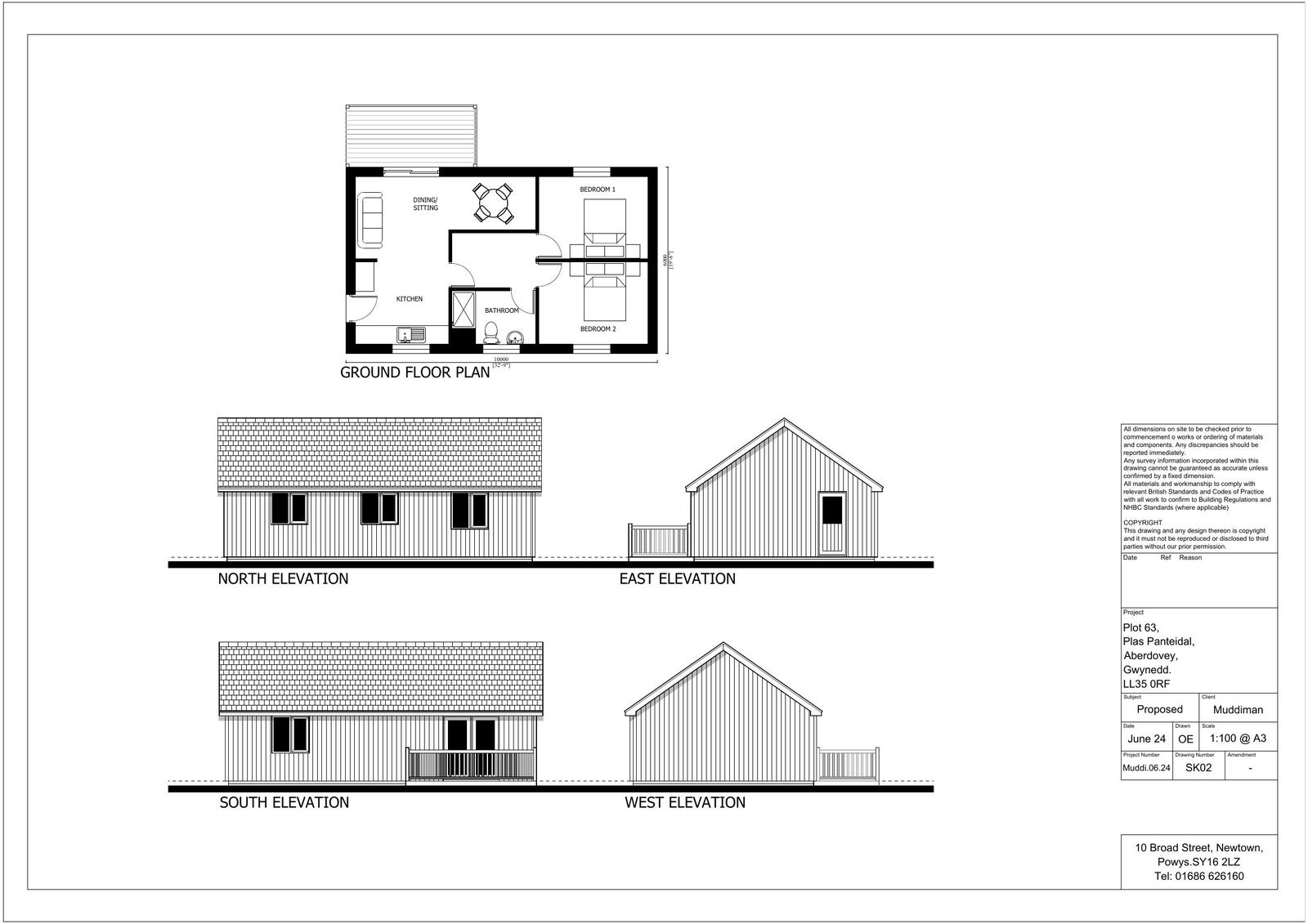
Demolition of a storage building and the construction of a residential chalet (C3) with associated access and parking and drainage works (Re-submission)

Documents

AE
Uncategorised
Archived · Original link
C1
Uncategorised
Archived · Original link
C2
Uncategorised
Archived · Original link
C3
Uncategorised
Archived · Original link
C4
Uncategorised
Archived · Original link
FF
Uncategorised
Archived · Original link
LL
Uncategorised
Archived · Original link
Uncategorised
Archived · Original link
Uncategorised
Archived · Original link
Uncategorised
Archived · Original link
Uncategorised
Archived · Original link
Uncategorised
Archived · Original link
Uncategorised
Archived · Original link
Uncategorised
Archived · Original link

Have your say

Your comment matters. Councils must consider every representation that raises material planning considerations.

Write a comment