← Eryri / Snowdonia National Park Authority

Status

Decision Made Change of use
Received
06 May 2025
New homes
0

Summary

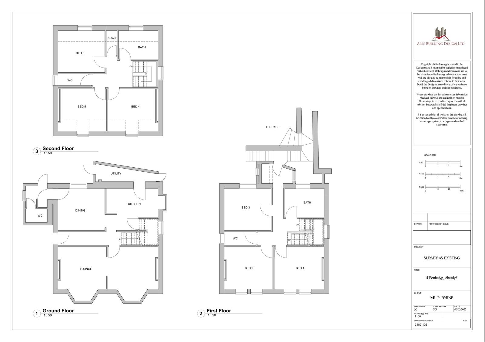
Change of use from guest house (C1) to dwellinghouse (C3).

Full proposal

Change of Use from guest house (C1) to dwellinghouse (C3)

Documents

C1
Uncategorised
Archived · Original link
C2
Uncategorised
Archived · Original link
CS
Uncategorised
Archived · Original link
E1
Uncategorised
Archived · Original link
FF
Uncategorised
Archived · Original link
LL
Uncategorised
Archived · Original link
Uncategorised
Archived · Original link
Uncategorised
Archived · Original link
Uncategorised
Archived · Original link

Have your say

Your comment matters. Councils must consider every representation that raises material planning considerations.

Write a comment