← Eryri / Snowdonia National Park Authority

Status

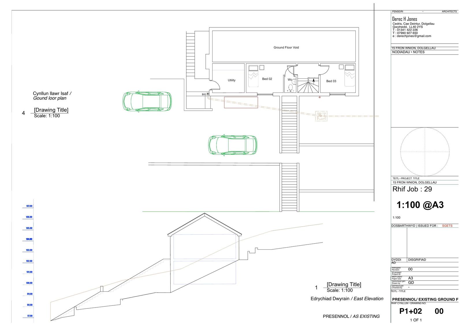
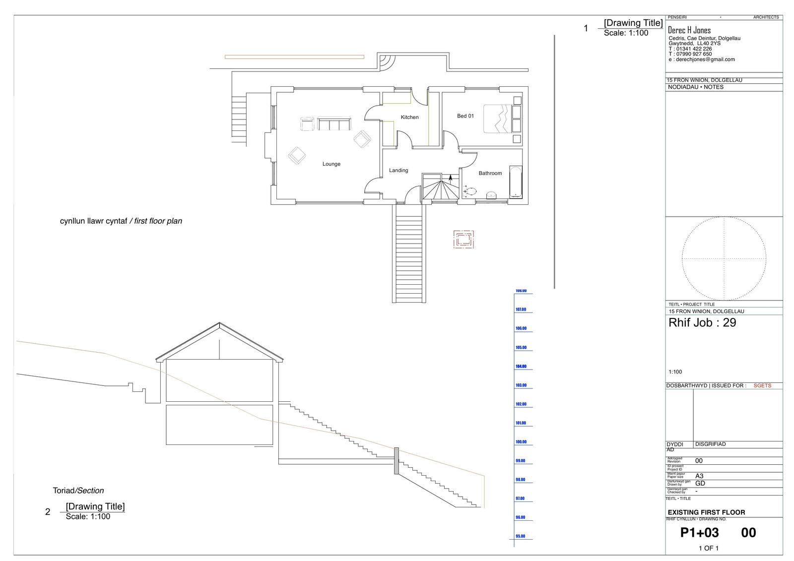
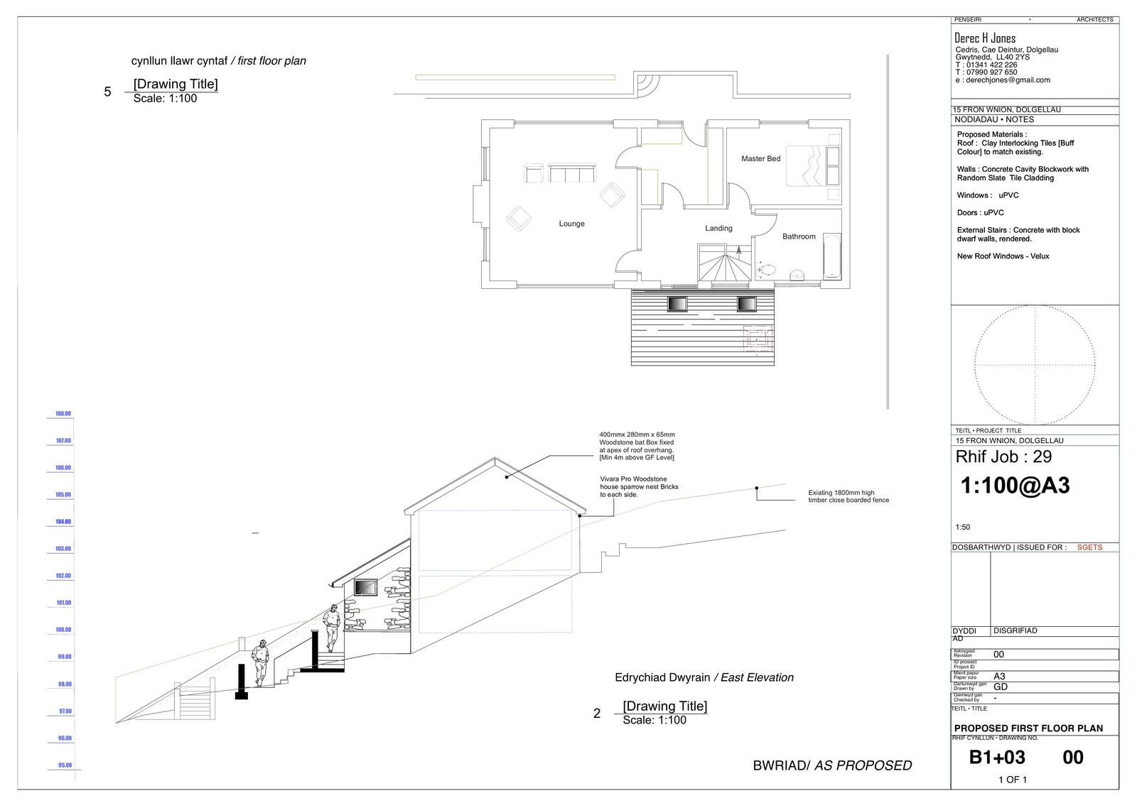
Decision Made House extension
Received
03 Jan 2025
New homes
0

Full proposal

Redevelopment of pedestrian access and the construction of a porch

Documents

C1
Uncategorised
Archived · Original link
C2
Uncategorised
Archived · Original link
C3
Uncategorised
Archived · Original link
C4
Uncategorised
Archived · Original link
C5
Uncategorised
Archived · Original link
C6
Uncategorised
Archived · Original link
FF
Uncategorised
Archived · Original link
LL
Uncategorised
Archived · Original link
Rhp
Uncategorised
Archived · Original link
Uncategorised
Archived · Original link
Uncategorised
Archived · Original link

Have your say

Your comment matters. Councils must consider every representation that raises material planning considerations.

Write a comment