← Eryri / Snowdonia National Park Authority

Status

Decision Made Demolition
Received
13 Jan 2025
New homes
0

Summary

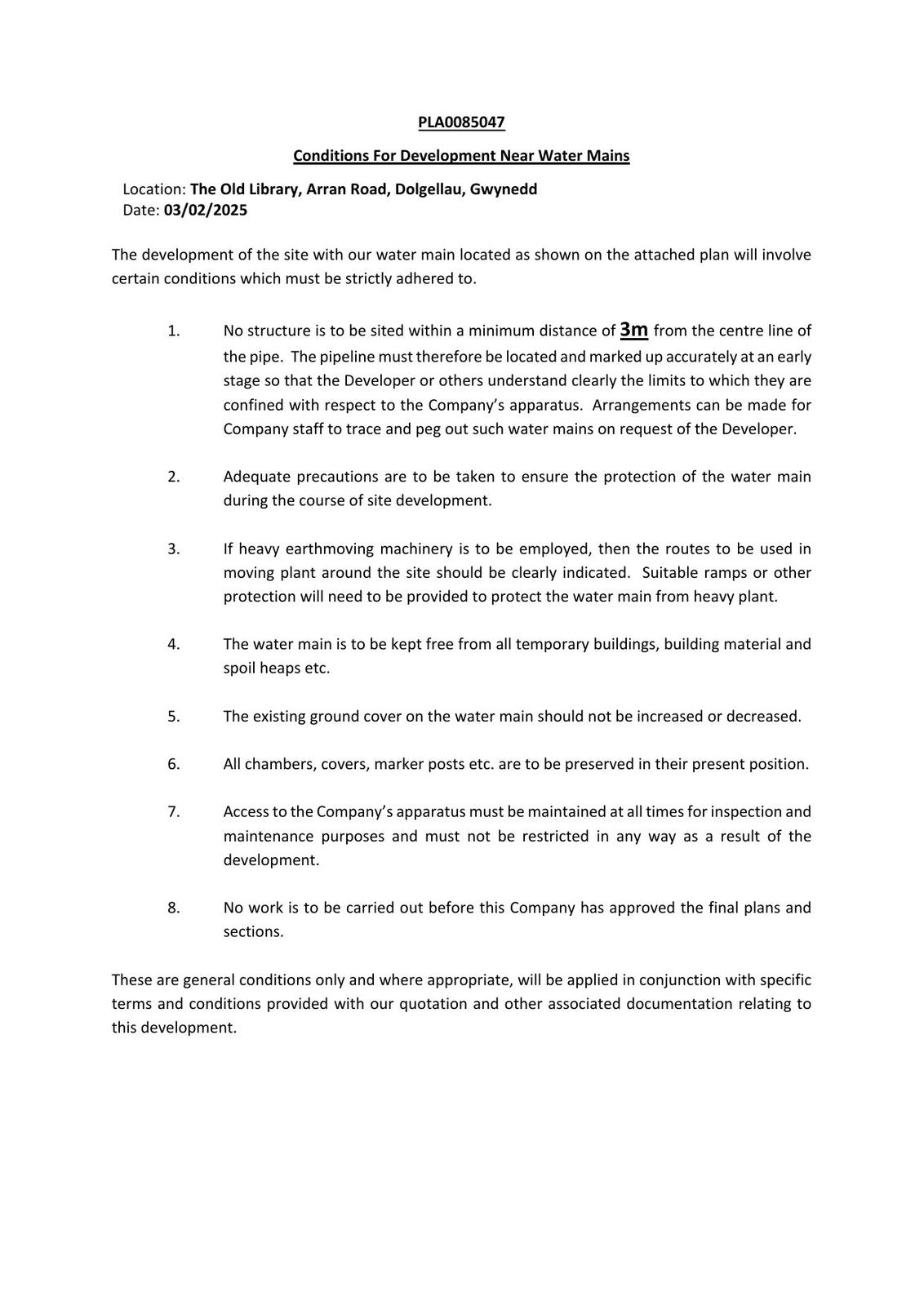
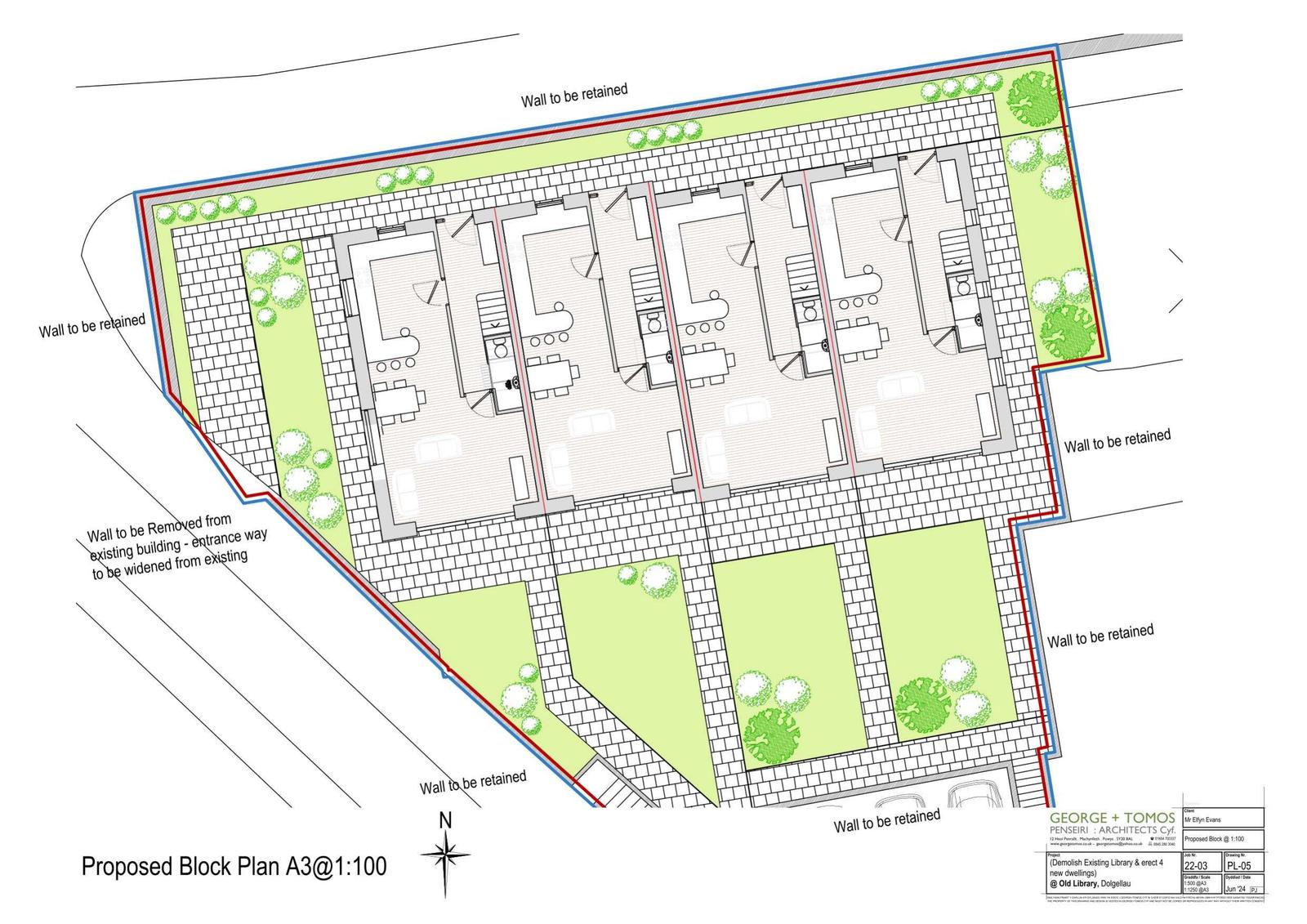
Demolition of library offices and construction of four new dwellings.

Full proposal

Demolition of existing library offices and construction of 4 new dwellings

Documents

AE
Uncategorised
Archived · Original link
C1
Uncategorised
Archived · Original link
CD1
Uncategorised
Archived · Original link
CD2
Uncategorised
Archived · Original link
Uncategorised
Archived · Original link
Uncategorised
Archived · Original link
E1
Uncategorised
Archived · Original link
FF
Uncategorised
Archived · Original link
Uncategorised
Archived · Original link
Uncategorised
Archived · Original link
Uncategorised
Archived · Original link
Uncategorised
Archived · Original link
Uncategorised
Archived · Original link
Uncategorised
Archived · Original link
Uncategorised
Archived · Original link

Have your say

Your comment matters. Councils must consider every representation that raises material planning considerations.

Write a comment