← Eryri / Snowdonia National Park Authority

Status

Decision Made House extension
Received
14 Apr 2025
New homes
0

Full proposal

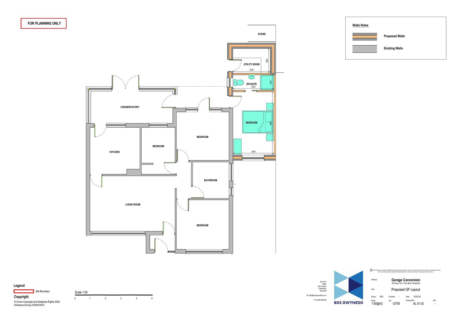
Demolition of existing garage and erection on new single storey flat roofed extension

Documents

C1
Uncategorised
Archived · Original link
C2
Uncategorised
Archived · Original link
C3
Uncategorised
Archived · Original link
FF
Uncategorised
Archived · Original link
LL
Uncategorised
Archived · Original link
Uncategorised
Archived · Original link
Uncategorised
Archived · Original link
Uncategorised
Archived · Original link
Uncategorised
Archived · Original link

Have your say

Your comment matters. Councils must consider every representation that raises material planning considerations.

Write a comment