← Eryri / Snowdonia National Park Authority

Status

Decision Made Demolition
Received
09 Jan 2025
New homes
0

Full proposal

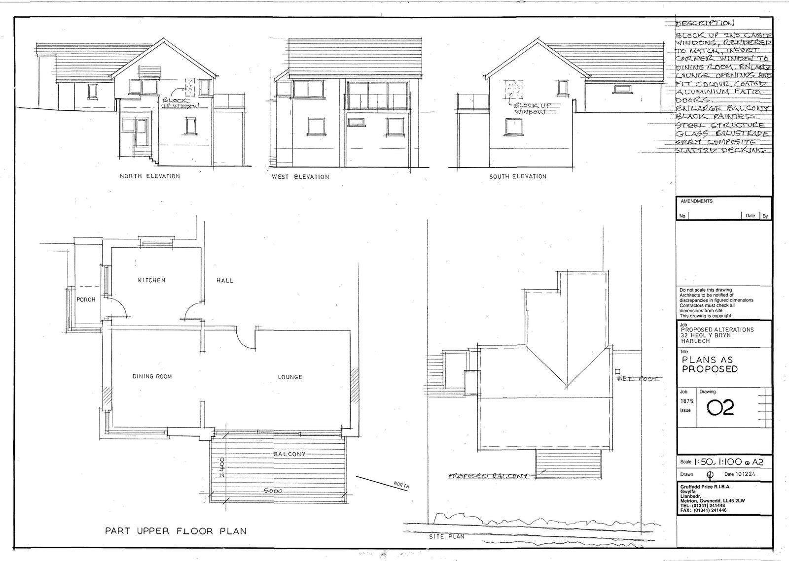
Demolition of existing steel balcony and erection of new steel and glass balcony on rear (West elevation), block up two windows and installation of ‘bee post’

Documents

C1
Uncategorised
Archived · Original link
C2
Uncategorised
Archived · Original link
E
Uncategorised
Archived · Original link
FF
Uncategorised
Archived · Original link
LL
Uncategorised
Archived · Original link
Rhp
Uncategorised
Archived · Original link
Uncategorised
Archived · Original link
Uncategorised
Archived · Original link
Uncategorised
Archived · Original link

Have your say

Your comment matters. Councils must consider every representation that raises material planning considerations.

Write a comment