← Eryri / Snowdonia National Park Authority

Status

Decision Made House extension
Received
01 May 2025
New homes
0

Full proposal

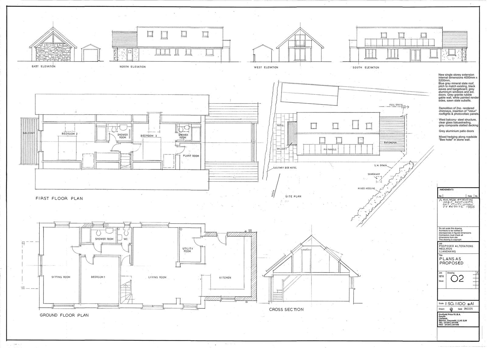
Erection of single storey extension to east side, steel balcony to west side, demolition of 2 chimneys and insertion of rooflights

Documents

Uncategorised
Archived · Original link
Uncategorised
Archived · Original link
1878GIS.docx
Uncategorised
Not yet archived · Original link
Uncategorised
Archived · Original link
Uncategorised
Archived · Original link
Uncategorised
Archived · Original link
Uncategorised
Archived · Original link
Uncategorised
Archived · Original link
Uncategorised
Archived · Original link

Have your say

Your comment matters. Councils must consider every representation that raises material planning considerations.

Write a comment