← Solihull Metropolitan Borough Council

Status

Awaiting decision New housing
Received
11 Apr 2025
New homes
33

Full proposal

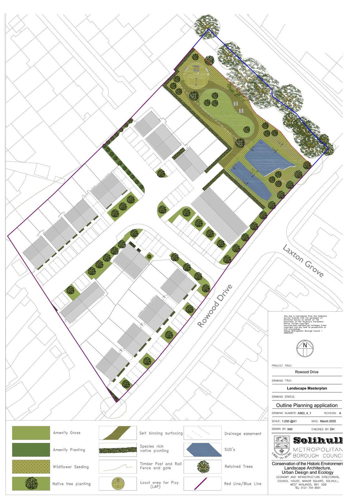
Outline application with all matters reserved except access for up to 33 dwellings (landscaping, appearance, layout and scale reserved for future determination).

Documents

Application Form
Archived · Original link
BNG HABITAT CONDITION ASSESSMENT SHEETS_14.02.25
Report
Not yet archived · Original link
Report
Archived · Original link
Consultee Comment
Archived · Original link
Consultee Comment
Archived · Original link
Report
Archived · Original link
Consultee Comment
Archived · Original link
Drawing
Archived · Original link
Drawing
Archived · Original link
Consultee Comment
Archived · Original link
Consultee Comment
Archived · Original link
Consultee Comment
Archived · Original link
SMBC - DRAINAGE & LLFA
Consultee Comment
Not yet archived · Original link
SMBC - LANDSCAPE ARCHITECT
Consultee Comment
Not yet archived · Original link
SMBC - PUBLIC PROTECTION
Consultee Comment
Not yet archived · Original link
SMBC - URBAN DESIGN
Consultee Comment
Not yet archived · Original link
Consultee Comment
Archived · Original link
SMBC EDUCATION 1 OF 2
Consultee Comment
Not yet archived · Original link
Consultee Comment
Archived · Original link
SMBC POLICY & ENGAGEMENT
Consultee Comment
Not yet archived · Original link
Consultee Comment
Archived · Original link
Consultee Comment
Archived · Original link
Report
Archived · Original link
Public Comment
Archived · Original link
WEST MIDLANDS POLICE
Consultee Comment
Not yet archived · Original link

Have your say

Your comment matters. Councils must consider every representation that raises material planning considerations.

Write a comment