← Solihull Metropolitan Borough Council
PL/2025/01029/MINFHO
Solihull Metropolitan Borough Council
Status
Unknown
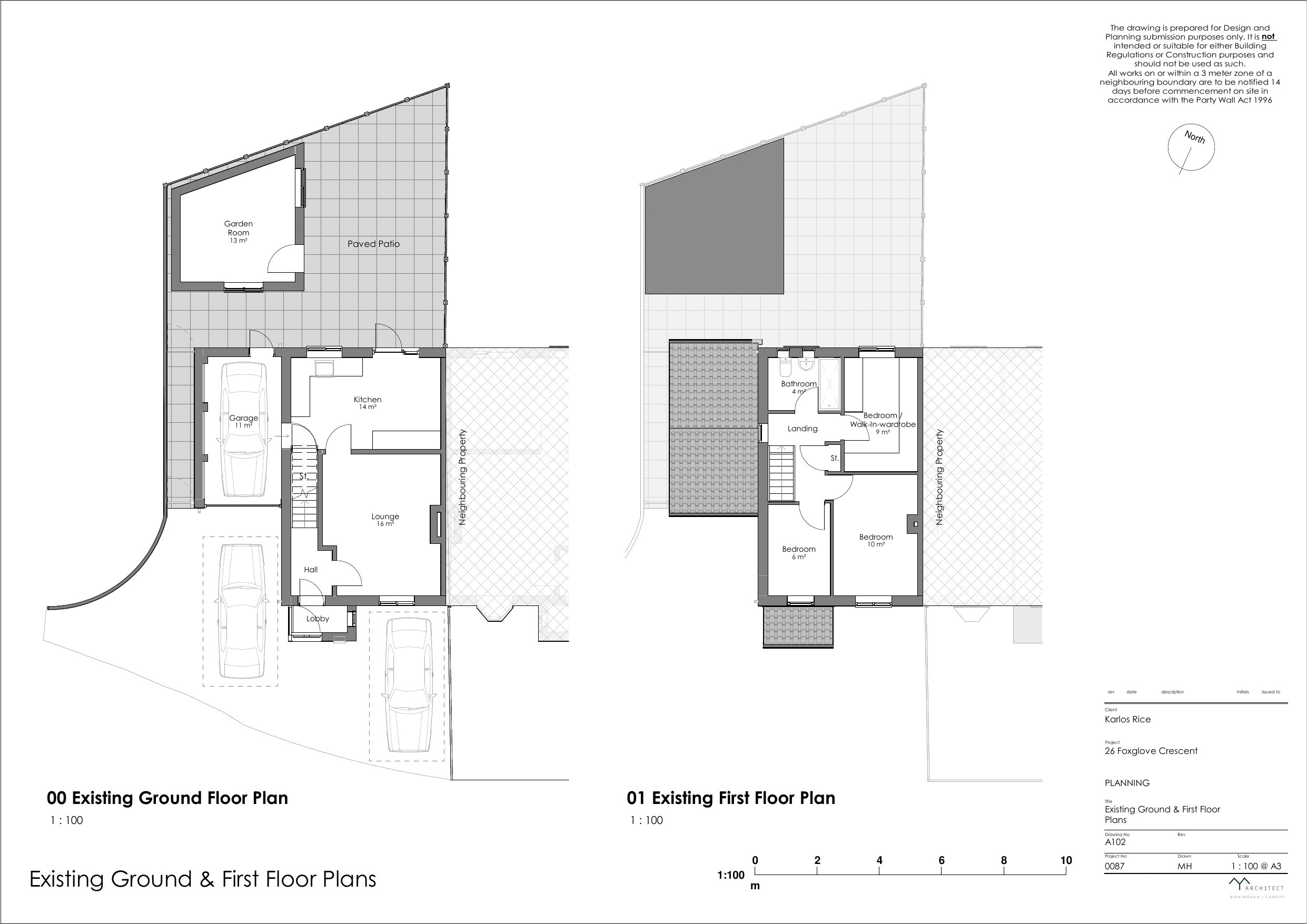
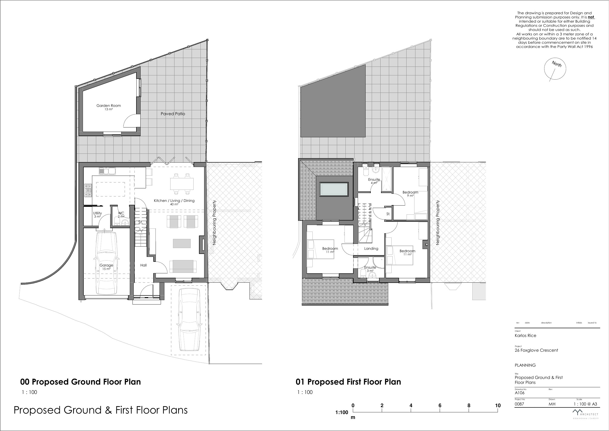
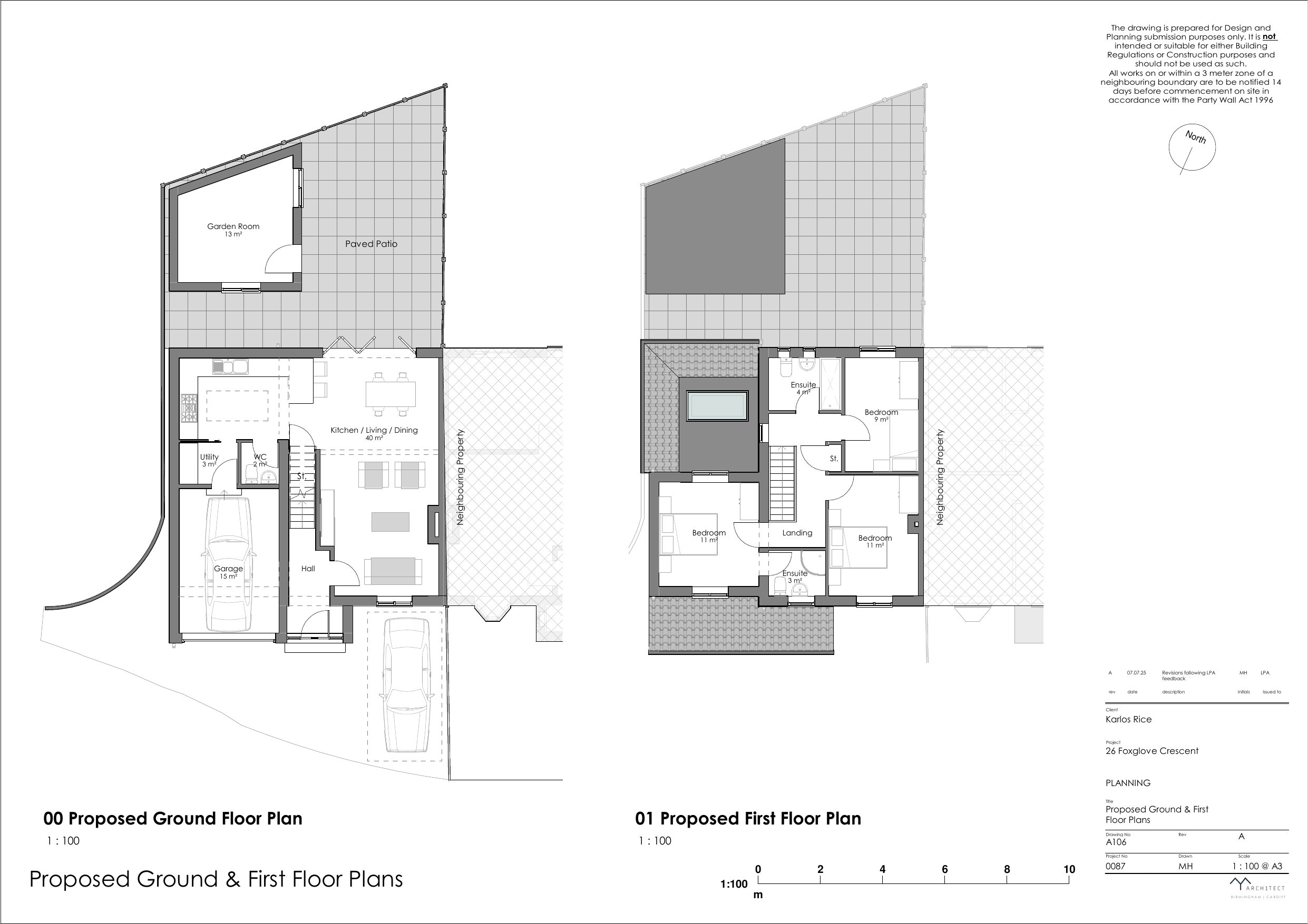
House extension
Received
20 May 2025
New homes
0
Full proposal
Part two storey/part single storey side extension, single storey front extension, rear dormer loft conversion and render to all elevations.
Documents
Have your say
Your comment matters. Councils must consider every representation that raises material planning considerations.