← Solihull Metropolitan Borough Council

Status

Awaiting decision New housing
Received
21 May 2025
New homes
3

Full proposal

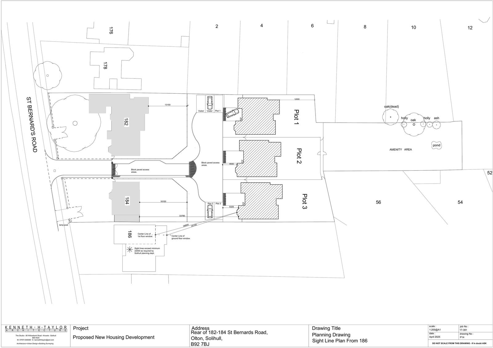
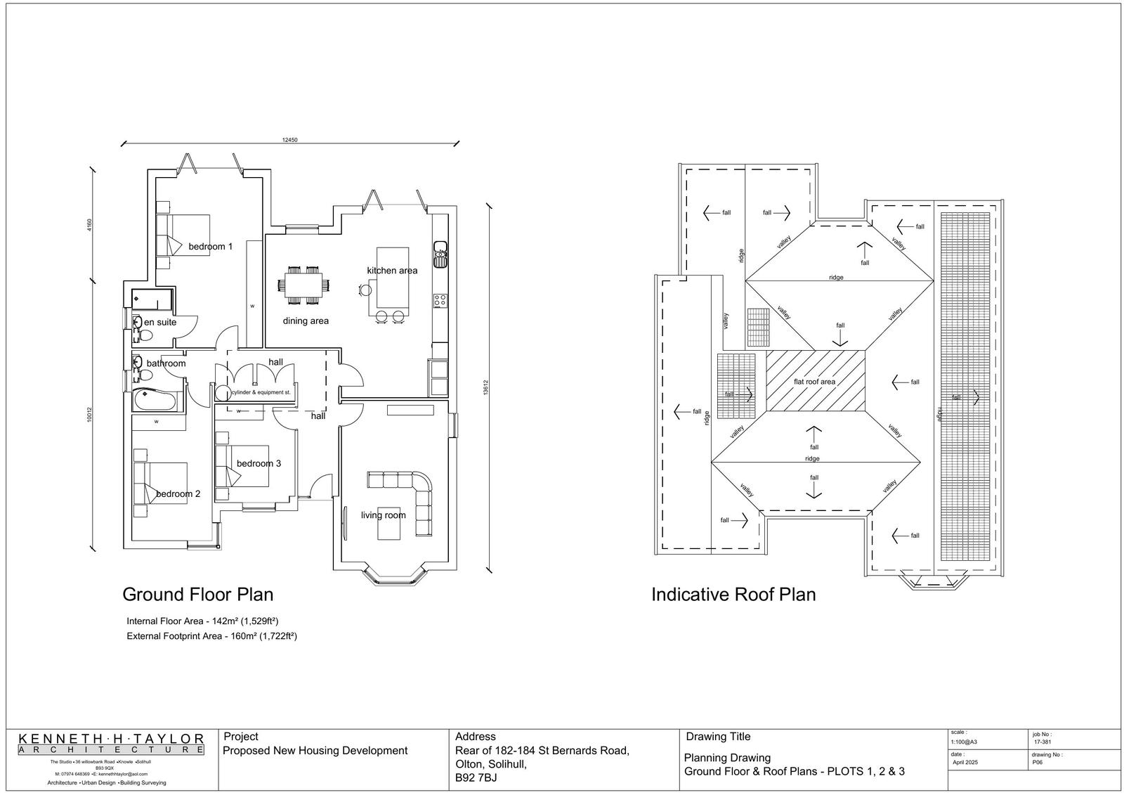
Erection of three bungalows, associated development, and the formation of an amenity/bio-diversity area.

Documents

Application Form
Archived · Original link
Drawing
Archived · Original link
Drawing
Archived · Original link
Drawing
Archived · Original link
Drawing
Archived · Original link
SMBC - DRAINAGE & LLFA
Consultee Comment
Not yet archived · Original link

Have your say

Your comment matters. Councils must consider every representation that raises material planning considerations.

Write a comment