← Solihull Metropolitan Borough Council

Status

Awaiting decision Change of use
Received
14 Nov 2025
New homes
4

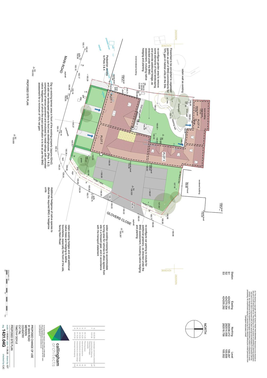
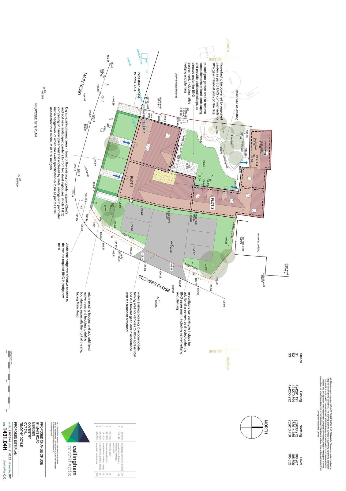
Full proposal

Change of use from commercial premises (Class E) to form 4 No. dwellinghouses (Class C3), first floor rear extensions, external alterations, new pitched roofs and other associated works.

Documents

AIR QUALITY ASSESSMENT
Report
Not yet archived · Original link
APPLICATION FORM REDACTED
Application Form
Not yet archived · Original link
BIODIVERSITY CONDITION SHEET
Report
Not yet archived · Original link
BIODIVERSITY CONDITION SHEET
Report
Not yet archived · Original link
BIODIVERSITY CONDITION SHEET
Report
Not yet archived · Original link
BIODIVERSITY CONDITION SHEET
Report
Not yet archived · Original link
BIODIVERSITY CONDITION SHEET
Report
Not yet archived · Original link
BIODIVERSITY GAIN PLAN
Report
Not yet archived · Original link
BIODIVERSITY GAIN PLAN
Report
Not yet archived · Original link
BNG METRIC
Report
Not yet archived · Original link
BNG TECHNICAL NOTE
Report
Not yet archived · Original link
BNG TECHNICAL NOTE
Report
Not yet archived · Original link
DESIGN AND ACCESS STATEMENT
Report
Not yet archived · Original link
EXISTING ELEVATIONS
Drawing
Not yet archived · Original link
EXISTING FLOOR PLANS
Drawing
Not yet archived · Original link
Drawing
Archived · Original link
HERITAGE STATEMENT
Report
Not yet archived · Original link
LOCATION PLAN
Drawing
Not yet archived · Original link
MERIDEN PARISH COUNCIL
Consultee Comment
Not yet archived · Original link
NOISE REPORT
Report
Not yet archived · Original link
PLANNING STATEMENT
Report
Not yet archived · Original link
PROPOSED ELEVATIONS
Revised Drawing
Not yet archived · Original link
PROPOSED ELEVATIONS
Revised Drawing
Not yet archived · Original link
Revised Drawing
Archived · Original link
Revised Drawing
Archived · Original link
Drawing
Archived · Original link
Revised Drawing
Archived · Original link
Revised Drawing
Archived · Original link
Revised Drawing
Archived · Original link
SMBC - CONTAMINATED LAND
Consultee Comment
Not yet archived · Original link
SMBC - DRAINAGE & LLFA
Consultee Comment
Not yet archived · Original link
SMBC - HERITAGE
Consultee Comment
Not yet archived · Original link
SMBC - HERITAGE
Consultee Comment
Not yet archived · Original link
SMBC - LANDSCAPE
Consultee Comment
Not yet archived · Original link
SMBC - PUBLIC PROTECTION
Consultee Comment
Not yet archived · Original link
SUPERSEDED BIODIVERSITY CONDITION SHEET
Report
Not yet archived · Original link
SUPERSEDED BIODIVERSITY CONDITION SHEET
Report
Not yet archived · Original link
SUPERSEDED BIODIVERSITY CONDITION SHEET
Report
Not yet archived · Original link
SUPERSEDED BIODIVERSITY GAIN PLAN
Report
Not yet archived · Original link
SUPERSEDED BNG METRIC
Report
Not yet archived · Original link
SUPERSEDED PROPOSED ELEVATIONS
Drawing
Not yet archived · Original link
SUPERSEDED PROPOSED ELEVATIONS
Drawing
Not yet archived · Original link
TECHNICAL NOTE
Report
Not yet archived · Original link
UPDATED BNG METRIC
Report
Not yet archived · Original link
WCC ARCHAEOLOGY
Consultee Comment
Not yet archived · Original link
WCC ARCHAEOLOGY
Consultee Comment
Not yet archived · Original link

Have your say

Your comment matters. Councils must consider every representation that raises material planning considerations.

Write a comment