← Solihull Metropolitan Borough Council

Status

Awaiting decision House extension
Received
03 Feb 2026
New homes
0

Full proposal

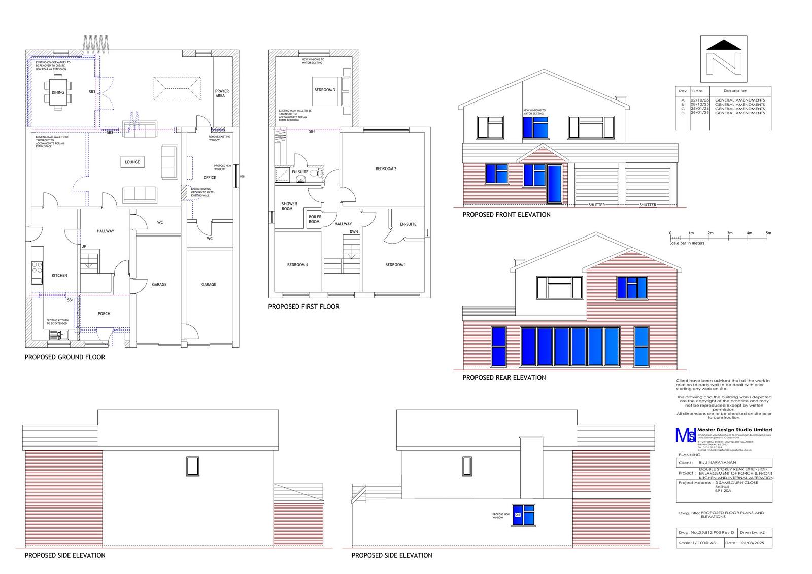
Part two storey and single storey rear extensions, single storey front porch and kitchen extension with internal alterations, and replacement of a first floor window to the front elevation and addition of new window in ground floor office.

Documents

APPLICATION FORM REDACTED
Application Form
Not yet archived · Original link
EXISTING FLOOR PLANS AND ELEVATIONS
Drawing
Not yet archived · Original link
Drawing
Archived · Original link
MISS SHERRY QIAN
Consultee Comment
Not yet archived · Original link

Have your say

Your comment matters. Councils must consider every representation that raises material planning considerations.

Write a comment