← Solihull Metropolitan Borough Council

Status

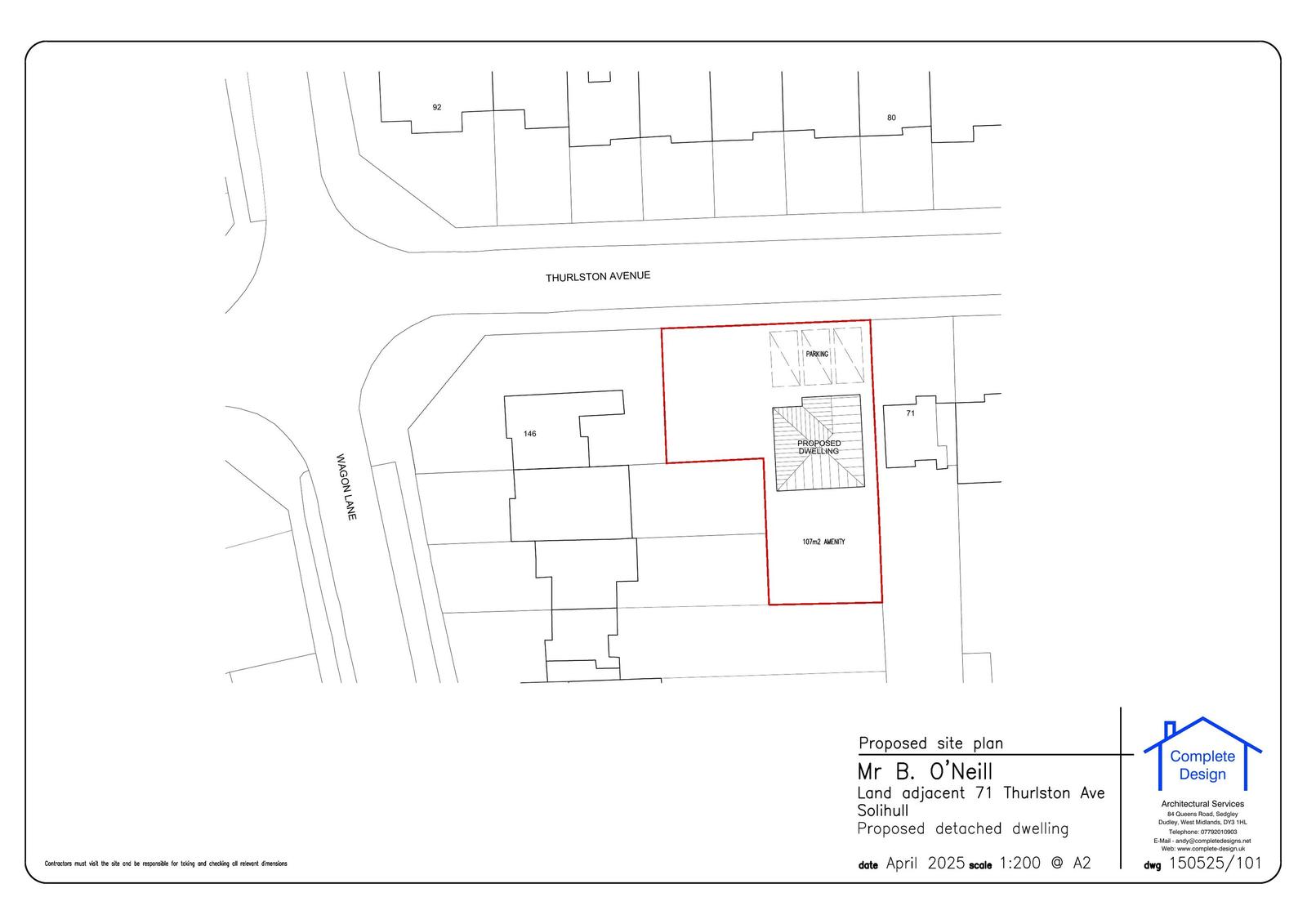
Awaiting decision New housing
Received
Last month
New homes
1

Full proposal

Outline application for a detached dwelling with all matters reserved.

Documents

APPLICATION FORM REDACTED
Application Form
Not yet archived · Original link
LOCATION PLAN
Drawing
Not yet archived · Original link
Drawing
Archived · Original link
Drawing
Archived · Original link

Have your say

Your comment matters. Councils must consider every representation that raises material planning considerations.

Write a comment