← Somerset (East - Mendip)

Status

Registered Commercial
Received
24 Dec 2025
New homes
0

Full proposal

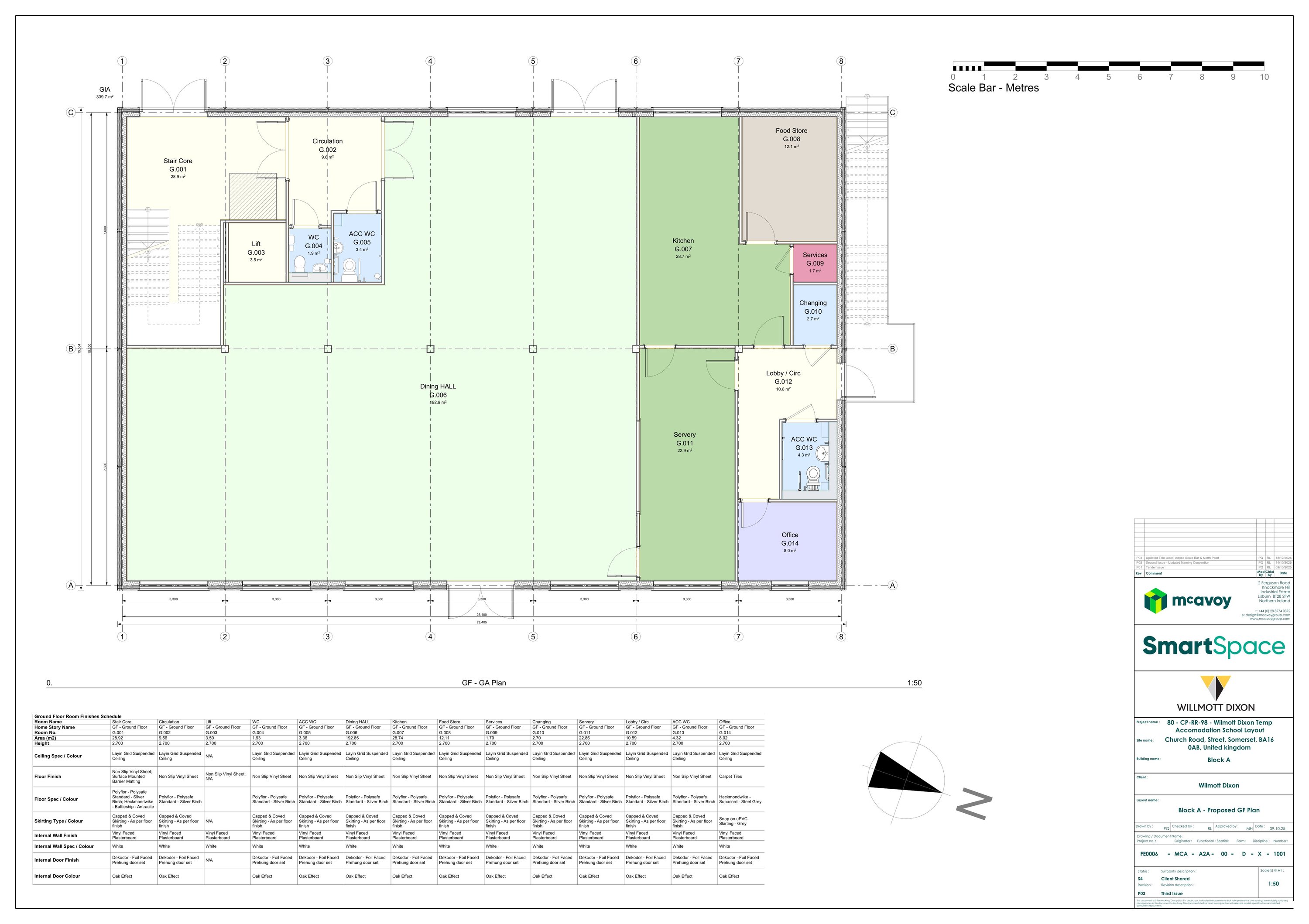
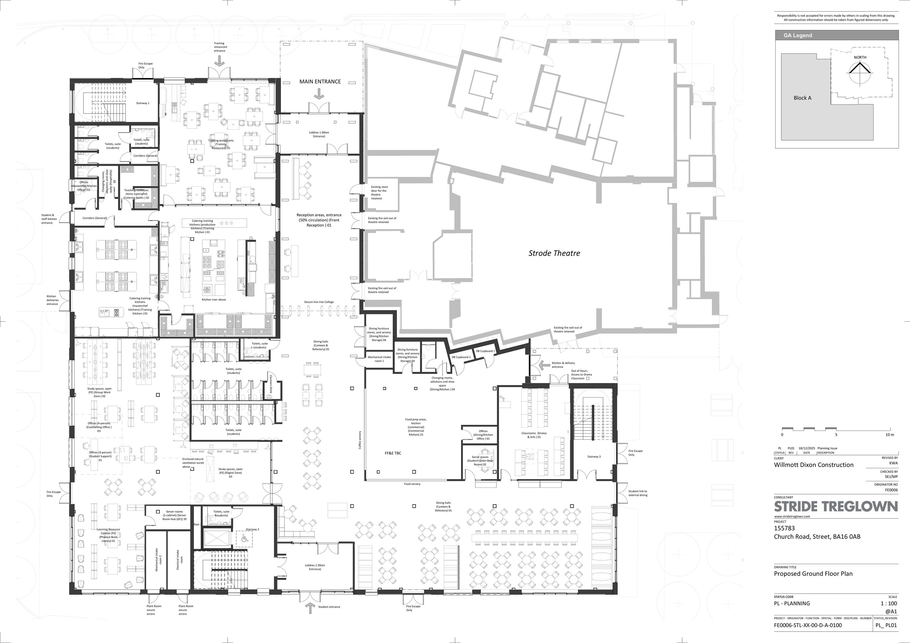
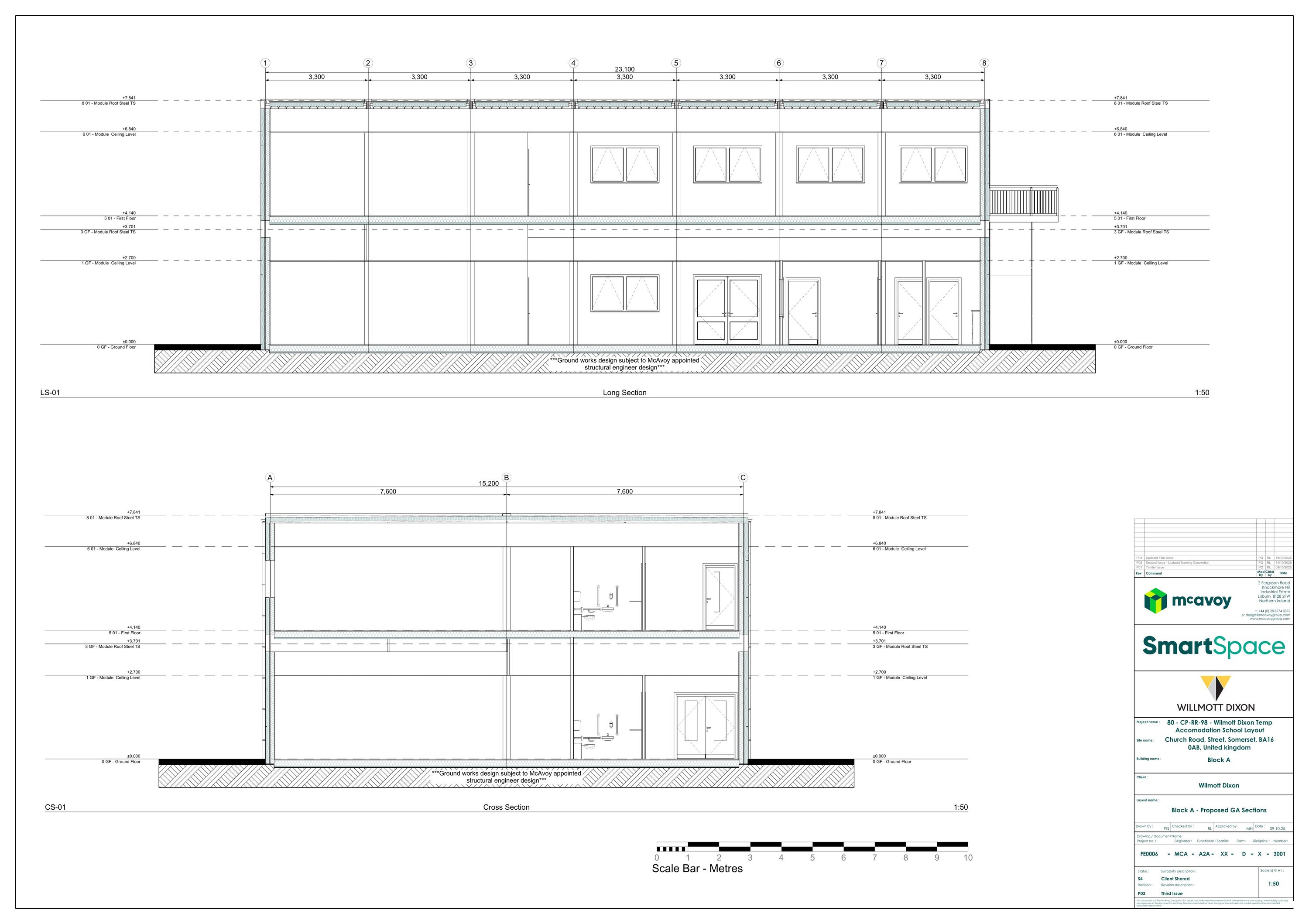
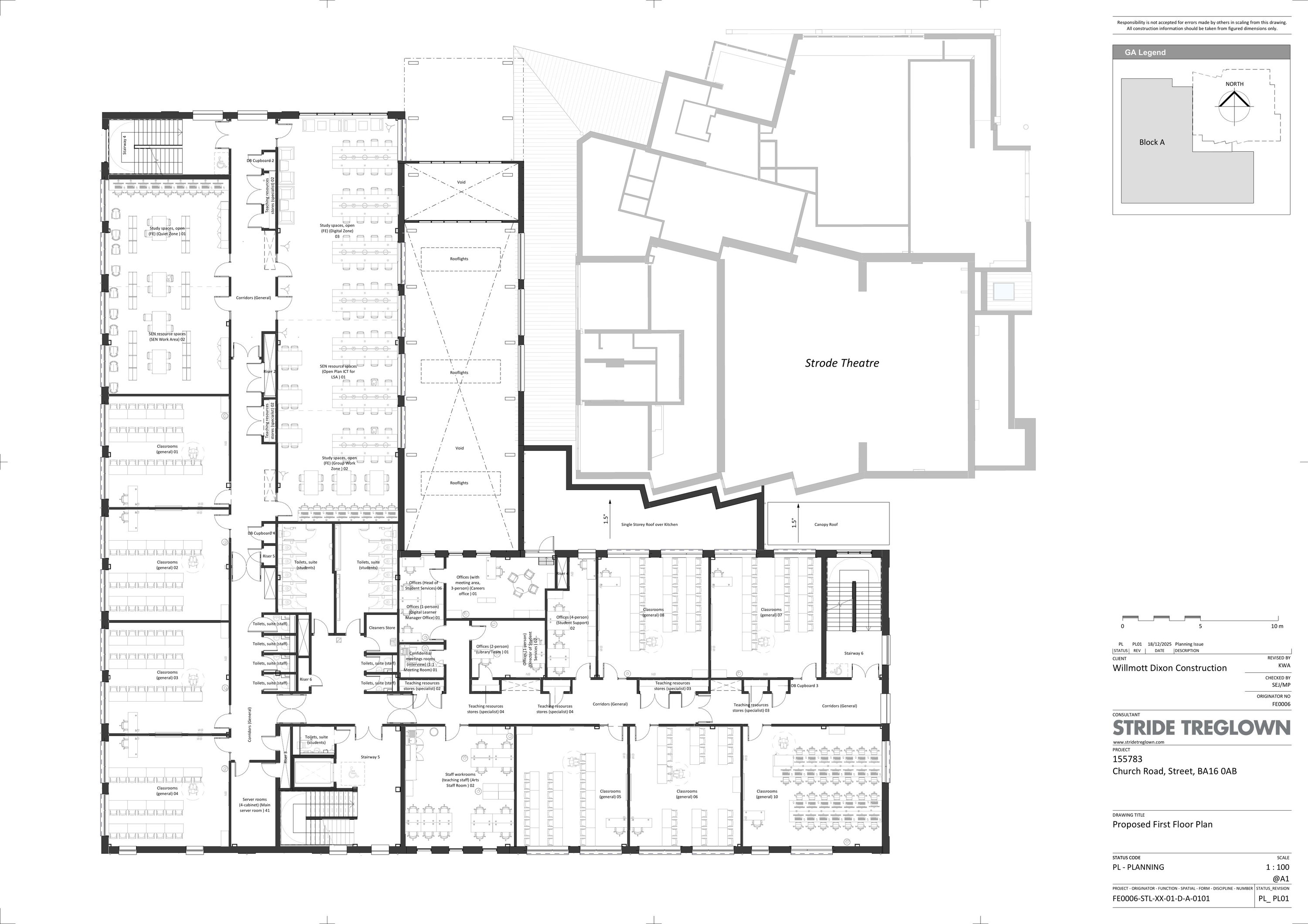
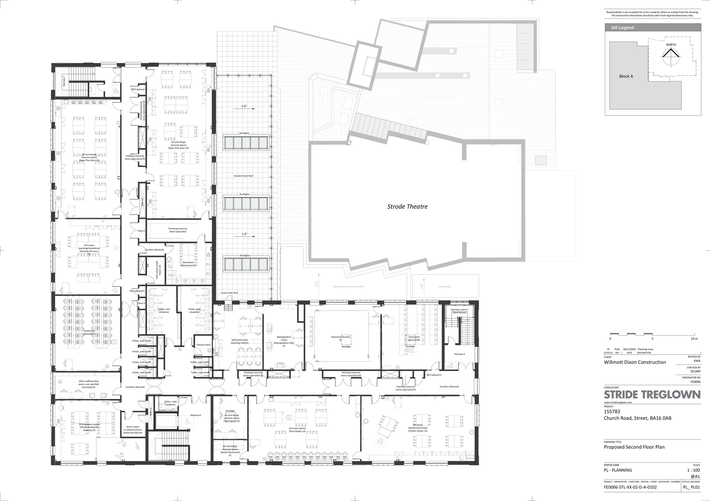
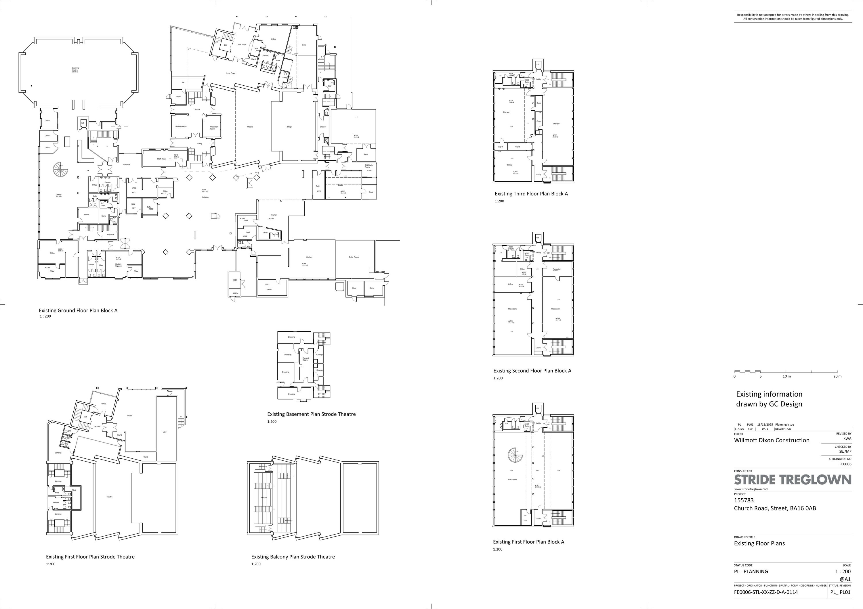
Demolition and replacement of Block A (Use Class F1a); erection of temporary buildings (Use Class F1a); demolition of portacabin and installation of plant and transformer together with landscaping and associated works for Strode College. Part demolition of existing building and erection of catering kitchen and refectory (Use Class F1a) for Crispin School. (additional drawing and correspondence added 13.02.2026) (additional proposed bat and CGN survey solution added 09.03.2026)

Documents

Drawing
Archived · Original link
Drawing
Archived · Original link
Drawing
Archived · Original link
Drawing
Archived · Original link
Drawing
Archived · Original link
Report
Archived · Original link
Drawing
Archived · Original link
Drawing
Archived · Original link
Drawing
Archived · Original link

Have your say

Your comment matters. Councils must consider every representation that raises material planning considerations.

Write a comment