← Somerset (East - Mendip)

Status

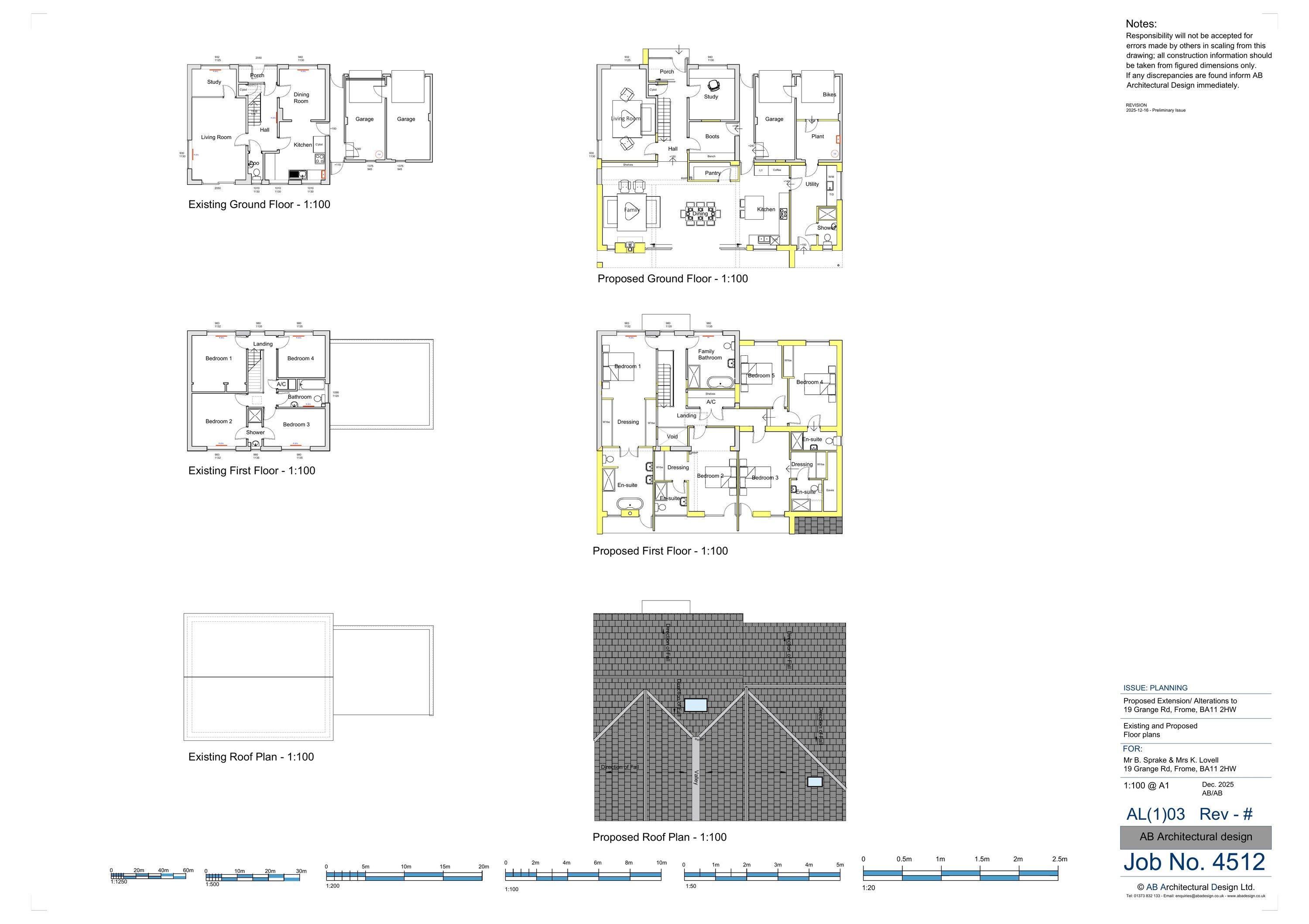
Awaiting decision House extension
Received
07 Jan 2026
New homes
0

Full proposal

Erection of a two storey side & rear extension.

Have your say

Your comment matters. Councils must consider every representation that raises material planning considerations.

Write a comment