← Somerset (East - Mendip)

Status

Registered Change of use
Received
Last month
New homes
3

Full proposal

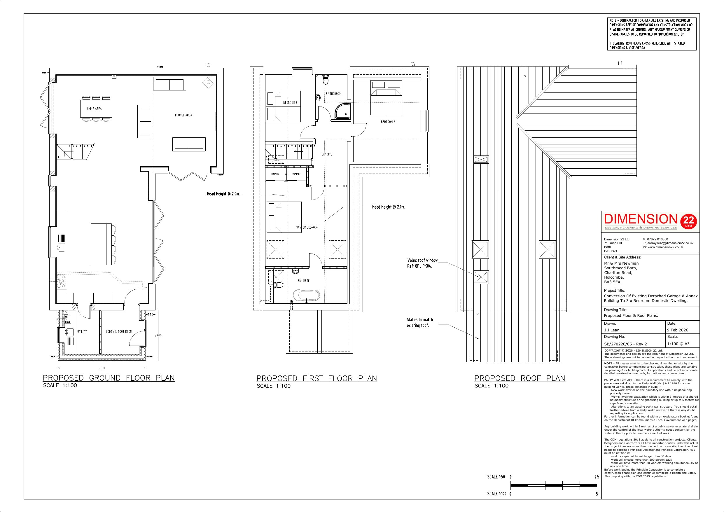
Conversion and change of use of existing detached garage, garden store & annex building to a 3 x bedroom domestic dwelling.

Documents

APPLICATION FORM - WITHOUT PERSONAL DATA
Application Form
Not yet archived · Original link
EXISTING ELEVATIONS
Drawing
Not yet archived · Original link
EXISTING FLOOR PLANS/ROOF PLAN
Drawing
Not yet archived · Original link
Drawing
Archived · Original link
LOCATION PLAN
Drawing
Not yet archived · Original link
PROPOSED ELEVATIONS
Drawing
Not yet archived · Original link
PROPOSED SECTION
Drawing
Not yet archived · Original link
Drawing
Archived · Original link

Have your say

Your comment matters. Councils must consider every representation that raises material planning considerations.

Write a comment