← Somerset (East - Mendip)

Status

Registered New housing
Received
Last month
New homes
1

Full proposal

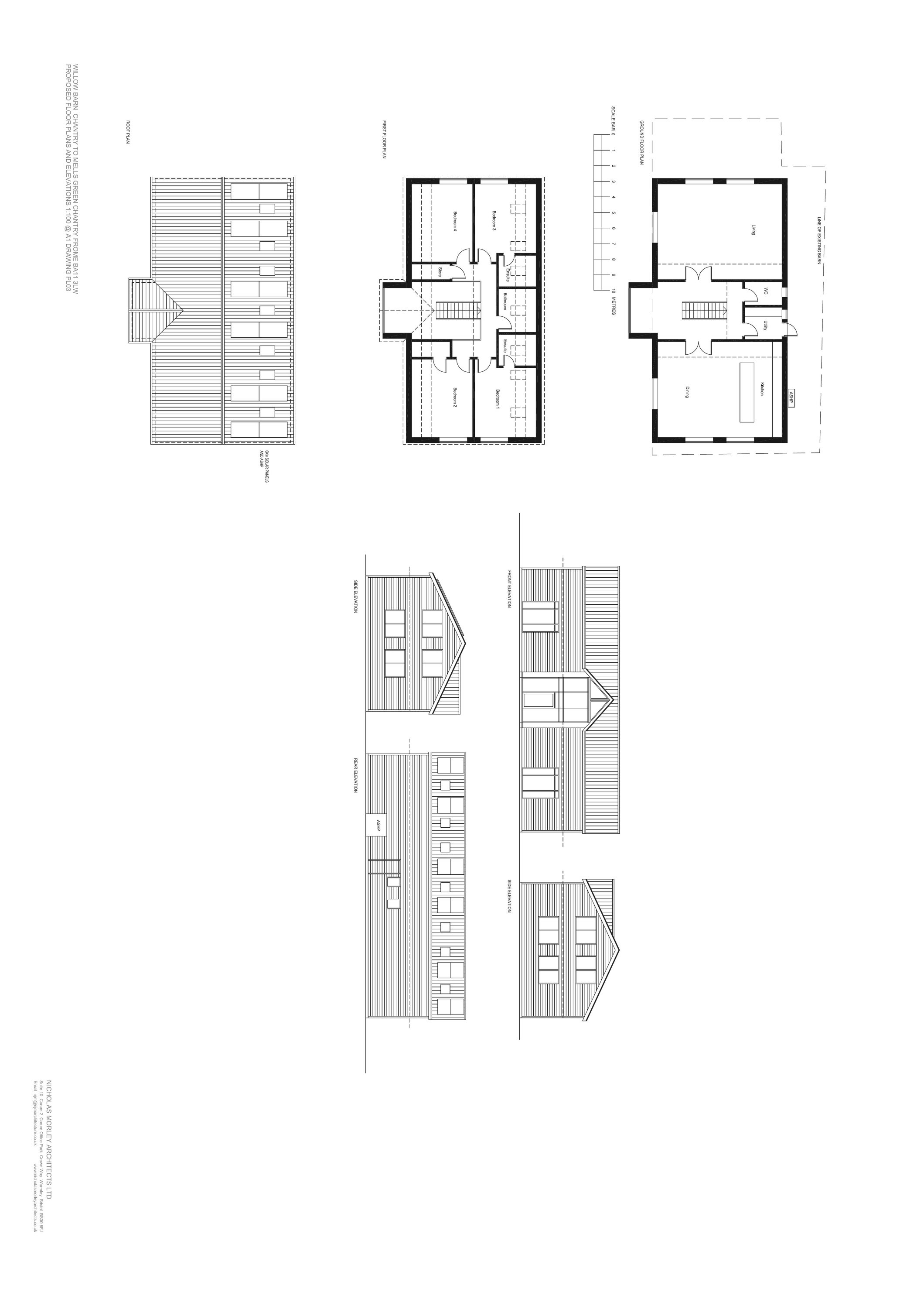
Erection of C3 Residential Dwelling.

Documents

APPLICATION FORM - WITHOUT PERSONAL DATA
Application Form
Not yet archived · Original link
BNG STATEMENT
Report
Not yet archived · Original link
CONLI - CONSULTEE LIST
Neighbour Notification List
Not yet archived · Original link
COVERING LETTER
Correspondence
Not yet archived · Original link
Drawing
Archived · Original link
PLANNING STATEMENT
Report
Not yet archived · Original link
PRELIMINARY ECOLOGICAL APPEAISAL
Report
Not yet archived · Original link
Drawing
Archived · Original link
THE LOCATION PLAN
Drawing
Not yet archived · Original link

Have your say

Your comment matters. Councils must consider every representation that raises material planning considerations.

Write a comment