← Somerset (West)

Status

Awaiting decision House extension
Received
01 Jan 2025
New homes
0

Full proposal

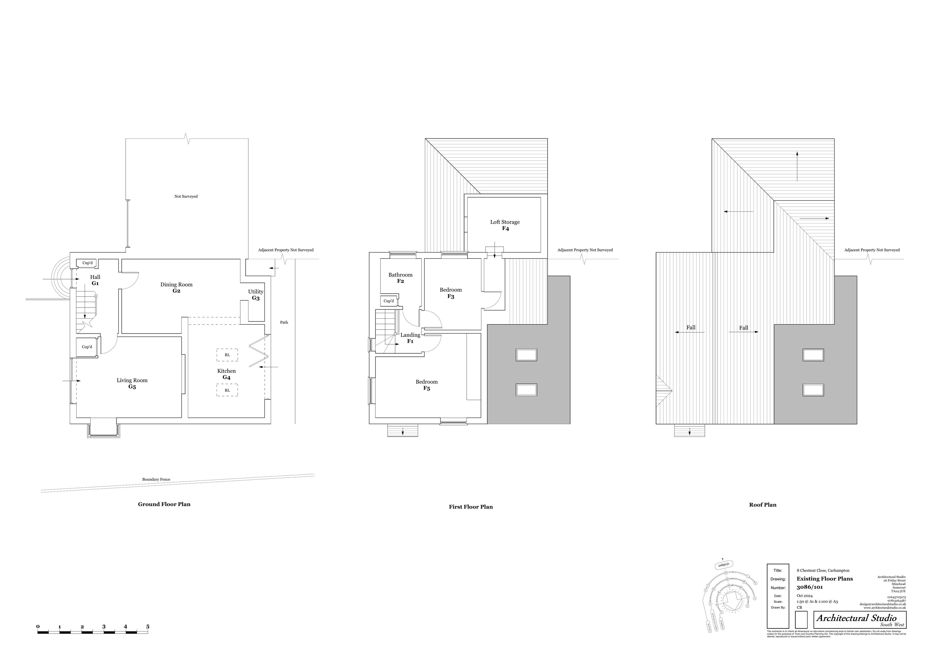
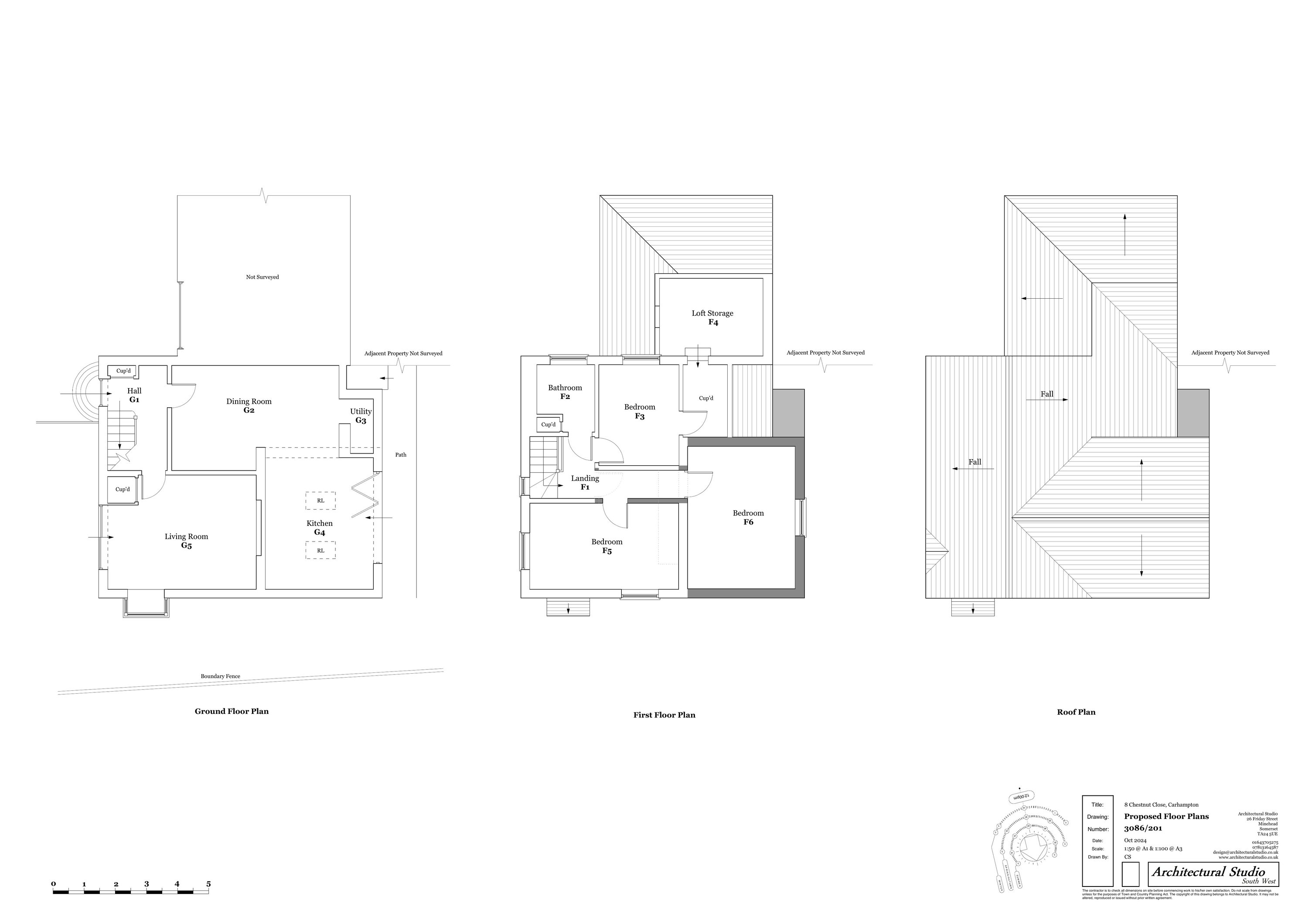
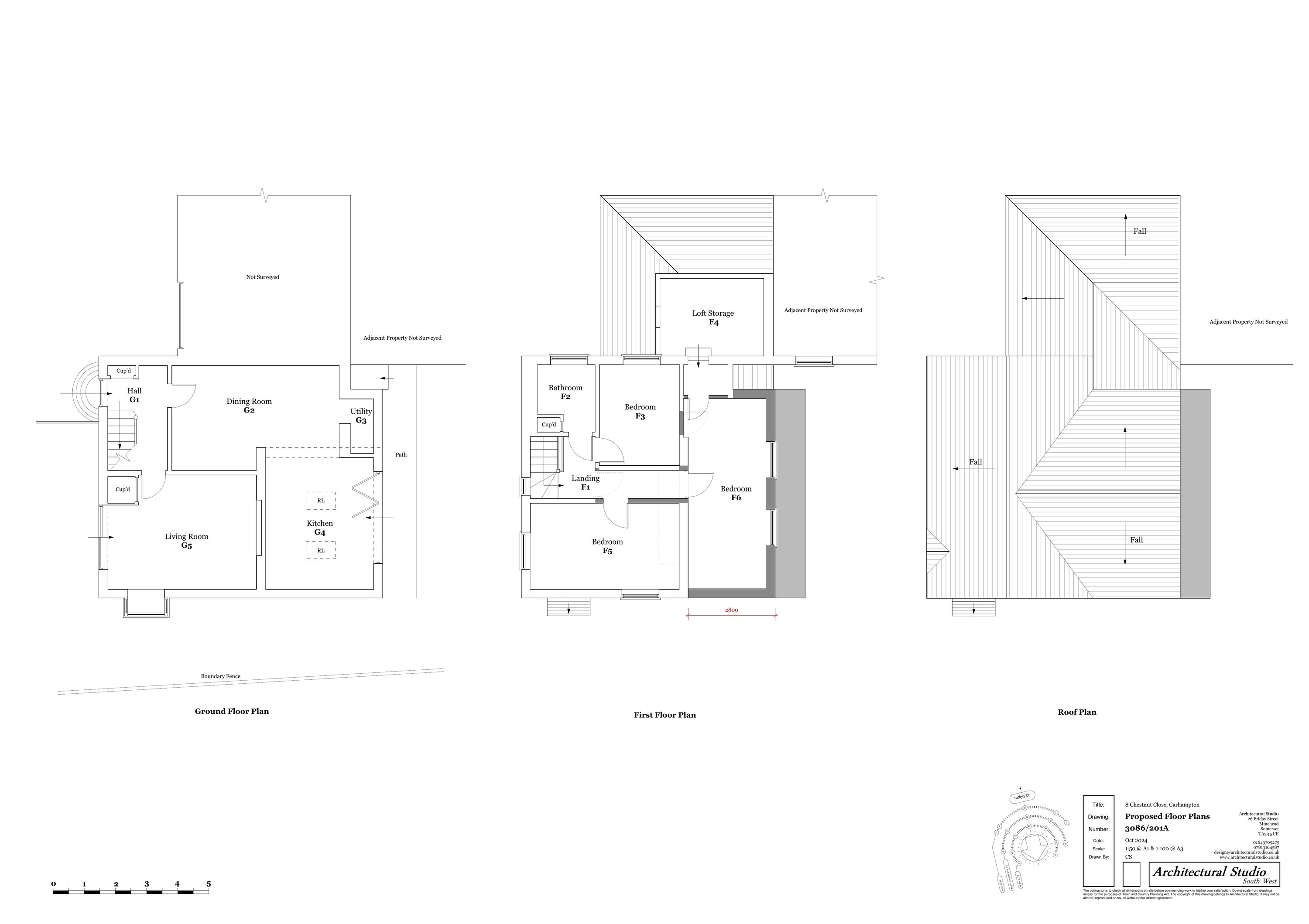
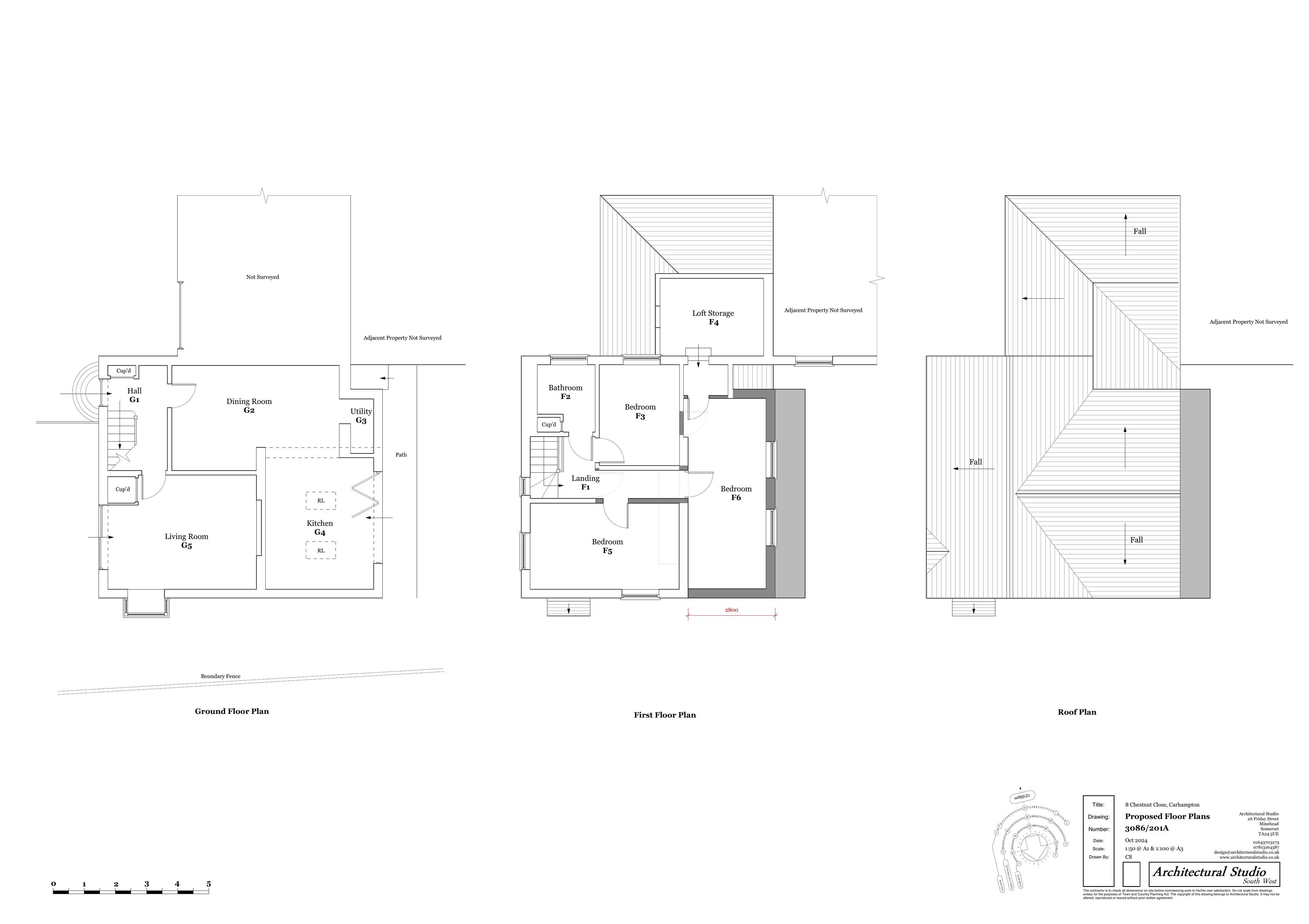
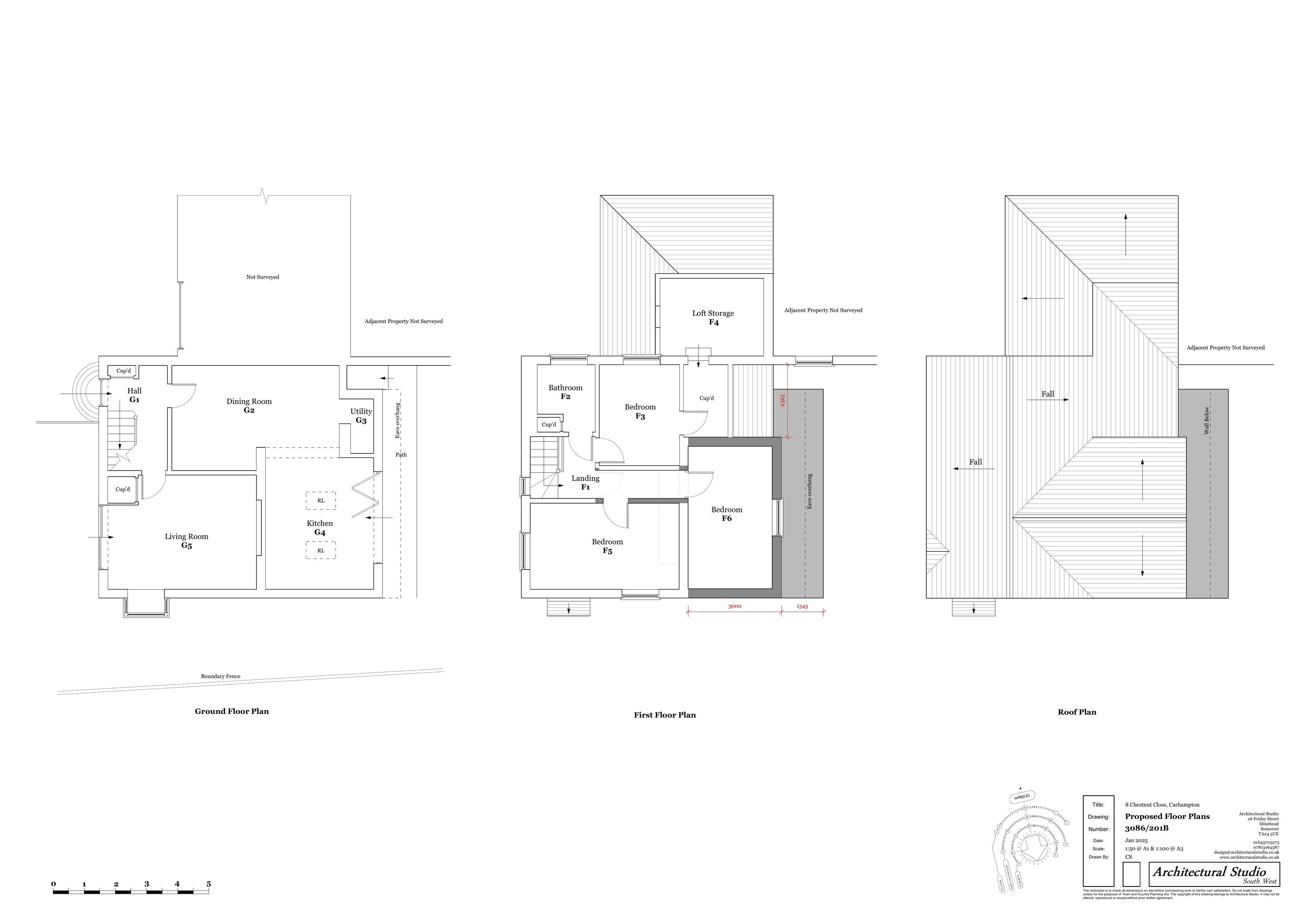
Erection of first floor extension over existing single storey rear extension

Documents

Application Form
Archived · Original link
Consultee Comment
Archived · Original link
Consultee Comment
Archived · Original link
Decision
Archived · Original link
Revised Drawing
Archived · Original link
Drawing
Archived · Original link
Drawing
Archived · Original link
Drawing
Archived · Original link
Photo
Archived · Original link
Revised Drawing
Archived · Original link
Revised Drawing
Archived · Original link
Revised Drawing
Archived · Original link
Drawing
Archived · Original link
Revised Drawing
Archived · Original link
Revised Drawing
Archived · Original link
Revised Drawing
Archived · Original link
Revised Drawing
Archived · Original link
Drawing
Archived · Original link
Drawing
Archived · Original link
Revised Drawing
Archived · Original link

Have your say

Your comment matters. Councils must consider every representation that raises material planning considerations.

Write a comment