← Somerset (West)

Status

Registered New housing
Received
Last month
New homes
2

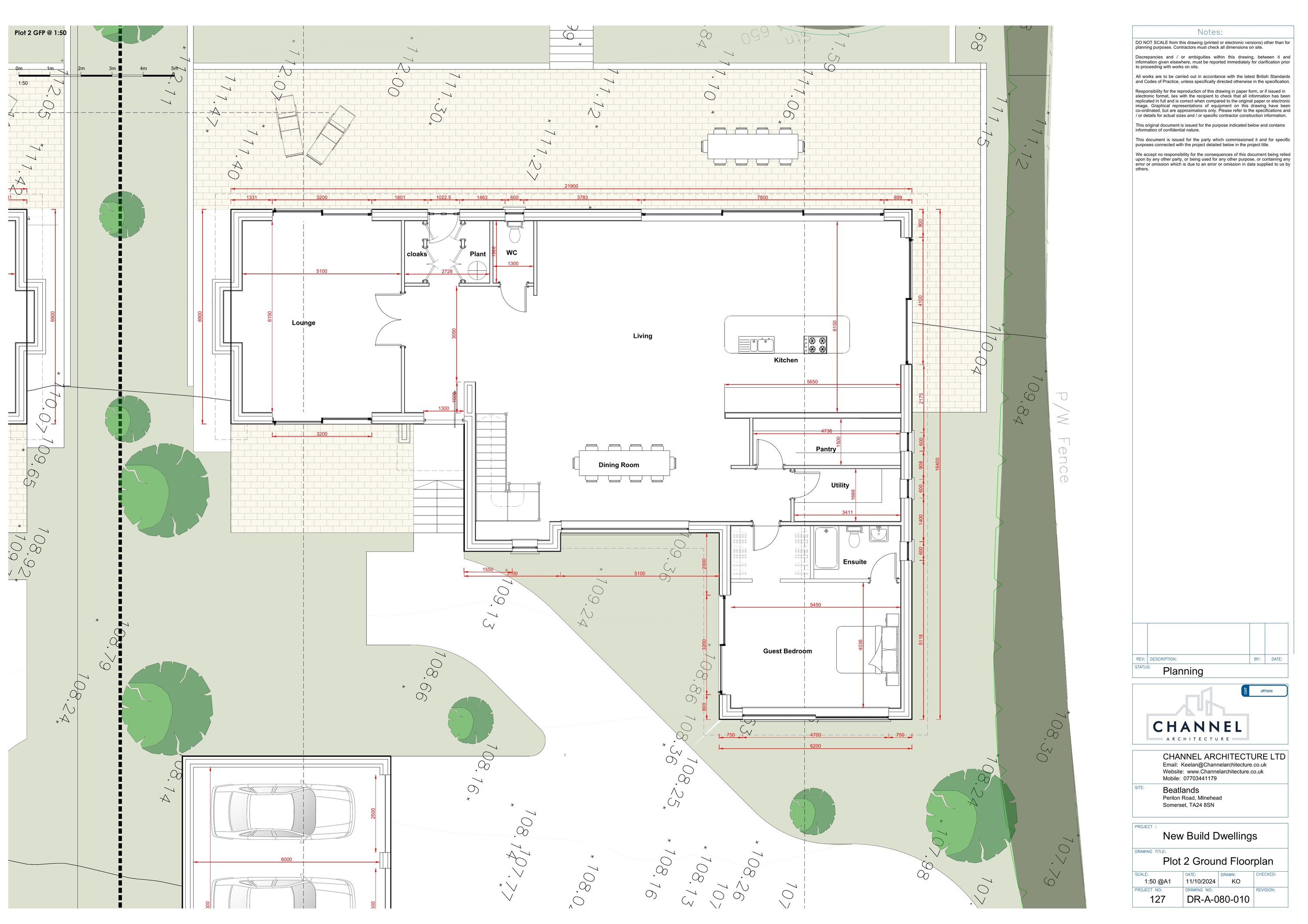
Full proposal

Erection of 2 No. dwellings on land to the rear

Documents

Application Form
Archived · Original link
Other
Archived · Original link
Drawing
Archived · Original link
Report
Archived · Original link
BNG METRIC EXCEL SPREADSHEET
Report
Not yet archived · Original link
BNG METRIC EXCEL SPREADSHEET
Report
Not yet archived · Original link
Report
Archived · Original link
Drawing
Archived · Original link
Drawing
Archived · Original link
Drawing
Archived · Original link
Drawing
Archived · Original link
Drawing
Archived · Original link
Drawing
Archived · Original link
Drawing
Archived · Original link
Drawing
Archived · Original link
Drawing
Archived · Original link

Have your say

Your comment matters. Councils must consider every representation that raises material planning considerations.

Write a comment