← Somerset (West)

Status

Registered Change of use
Received
05 Feb 2026
New homes
0

Full proposal

Application for prior approval for change of use of agricultural building into 1 No. dwelling house (Class C3) and for associated operational development

Documents

APPLICATION FORM
Application Form
Not yet archived · Original link
ATTACHMENT SUMMARY
Other
Not yet archived · Original link
CLASS Q SUPPORTING STATEMENT
Other
Not yet archived · Original link
EXISTING ELEVATIONS
Drawing
Not yet archived · Original link
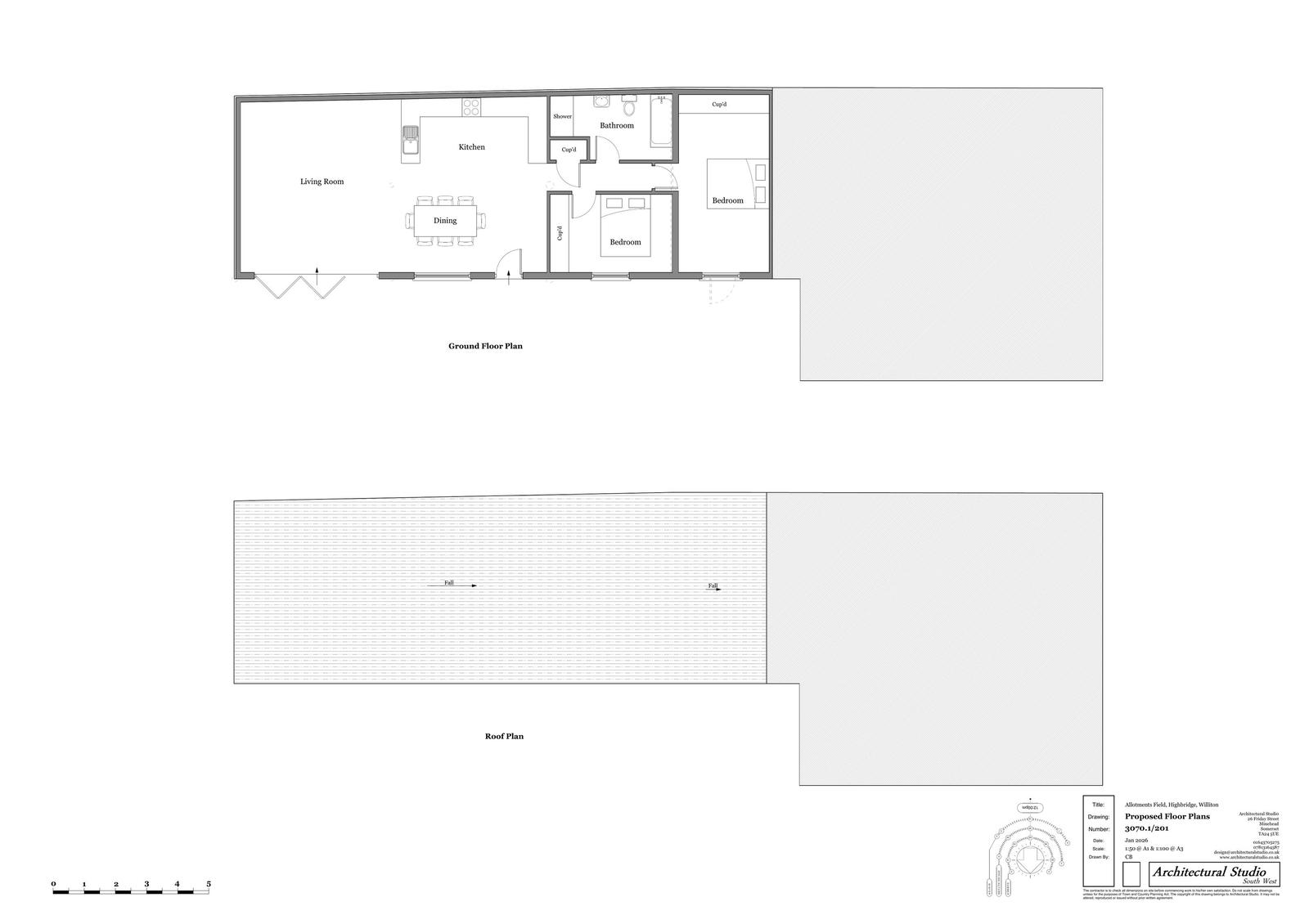
EXISTING FLOOR PLANS
Drawing
Not yet archived · Original link
Drawing
Archived · Original link
FLOOD MAP
Other
Not yet archived · Original link
LETTER FROM S HOLMES
Other
Not yet archived · Original link
PROPOSED ELEVATIONS
Drawing
Not yet archived · Original link
Drawing
Archived · Original link
Drawing
Archived · Original link
SITE PHOTOS
Other
Not yet archived · Original link
STATUTORY DECLARATION - S HOLMES
Other
Not yet archived · Original link

Have your say

Your comment matters. Councils must consider every representation that raises material planning considerations.

Write a comment