← South Cambridgeshire District Council

Status

Awaiting decision Change of use
Received
06 Jan 2026
New homes
0

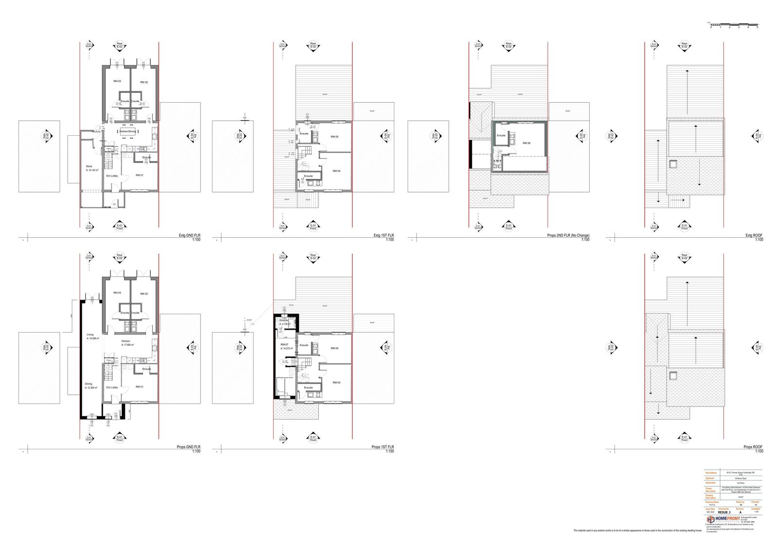
Full proposal

Change of use from 6bed to large 7bed, 7 persons HMO (sui generis) with two storey side extension, front porch and new cycle storage.

Documents

Design and Access Statement
Archived · Original link
Drawings
Archived · Original link

Have your say

Your comment matters. Councils must consider every representation that raises material planning considerations.

Write a comment