← South Cambridgeshire District Council

Status

Awaiting decision New housing
Received
07 Jan 2026
New homes
134

Full proposal

Demolition of existing dwellings and redevelopment to provide 134 No. new dwellings, parking, open space, landscaping and associated works.

Documents

CONSULTEE COMMENT SUBMITTED ONLINE
Consultee Comments
Not yet archived · Original link
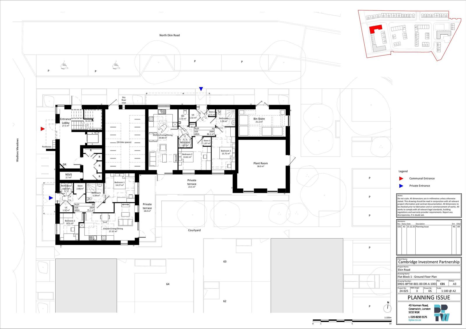
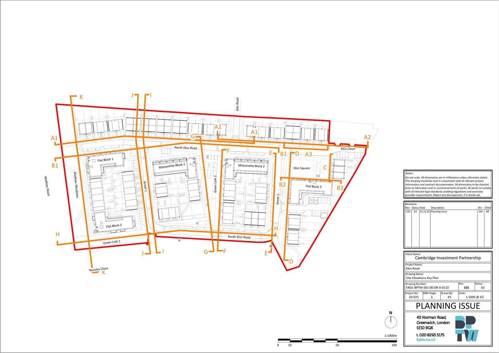
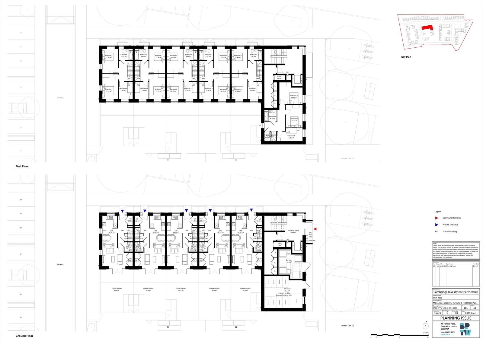
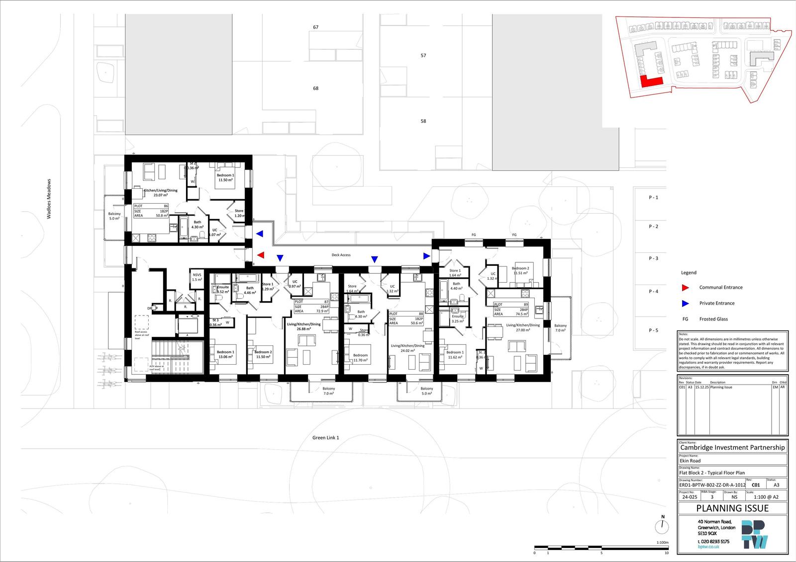
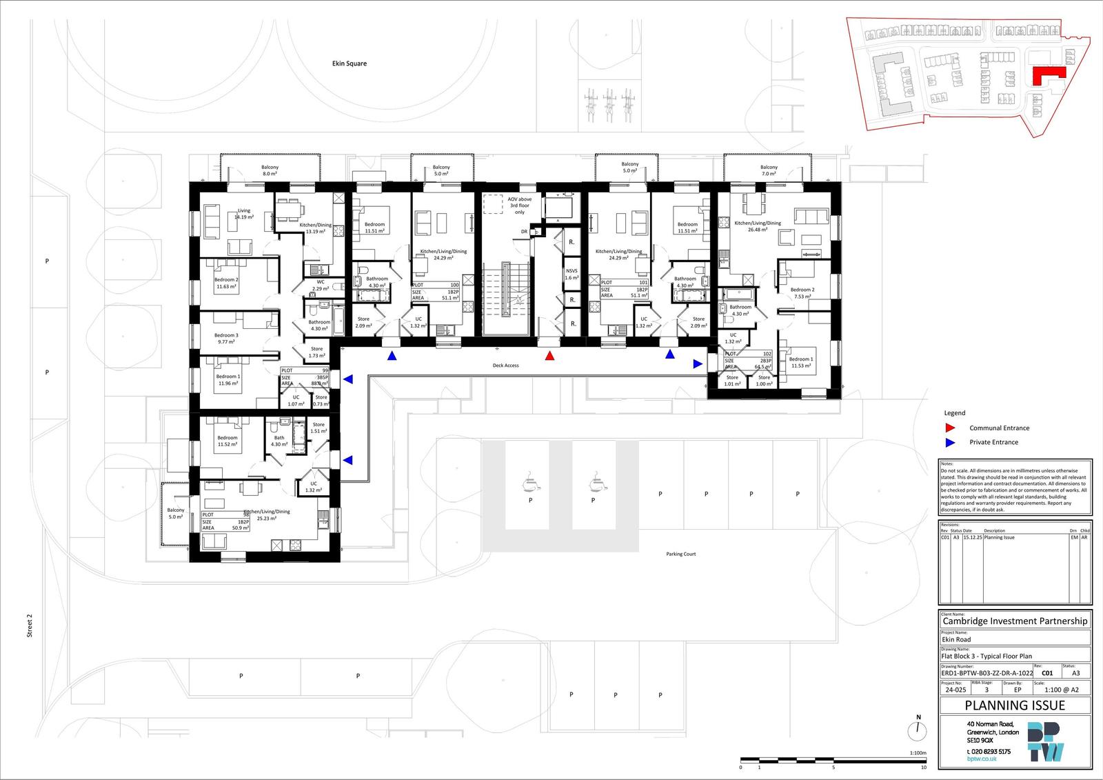
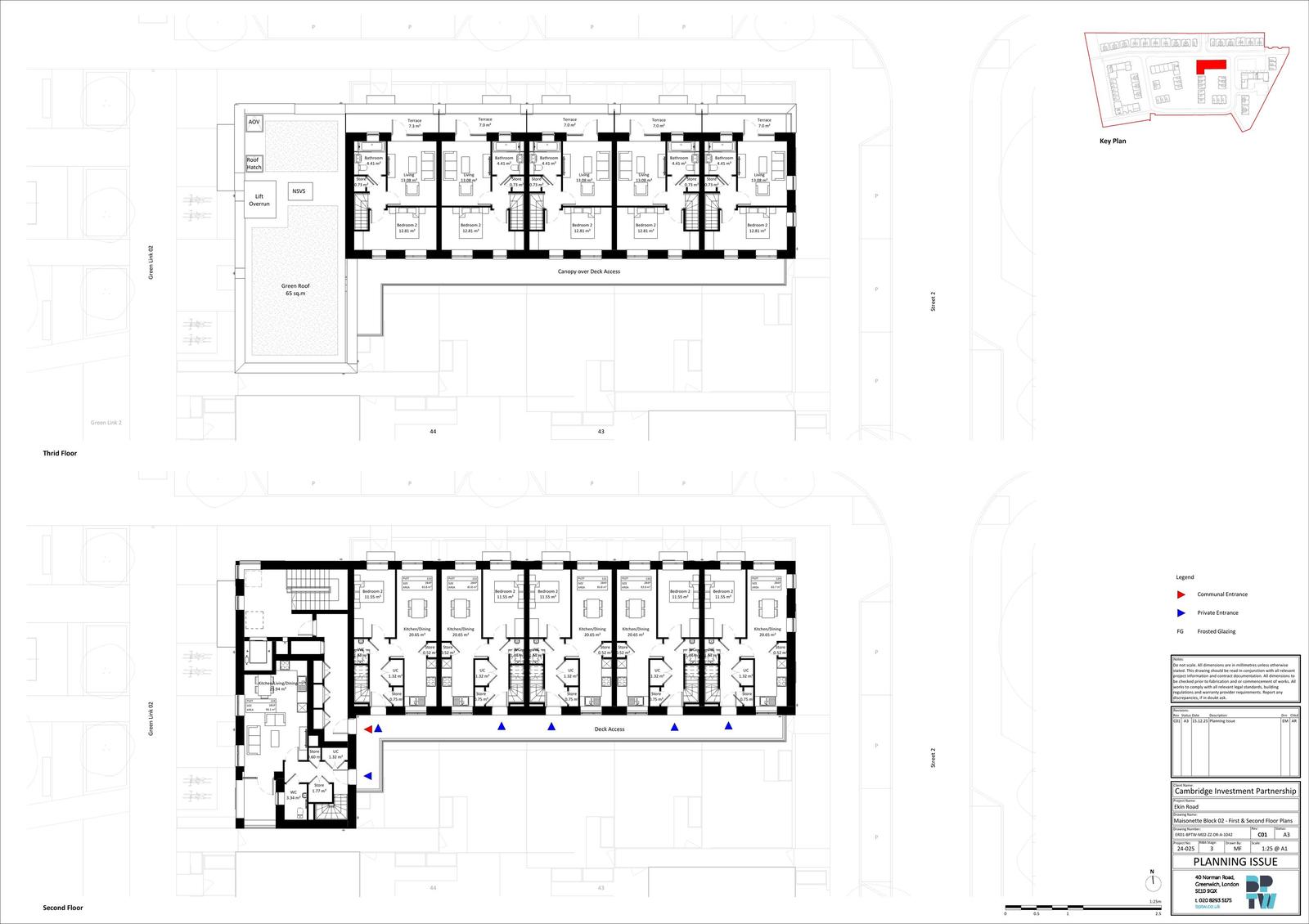
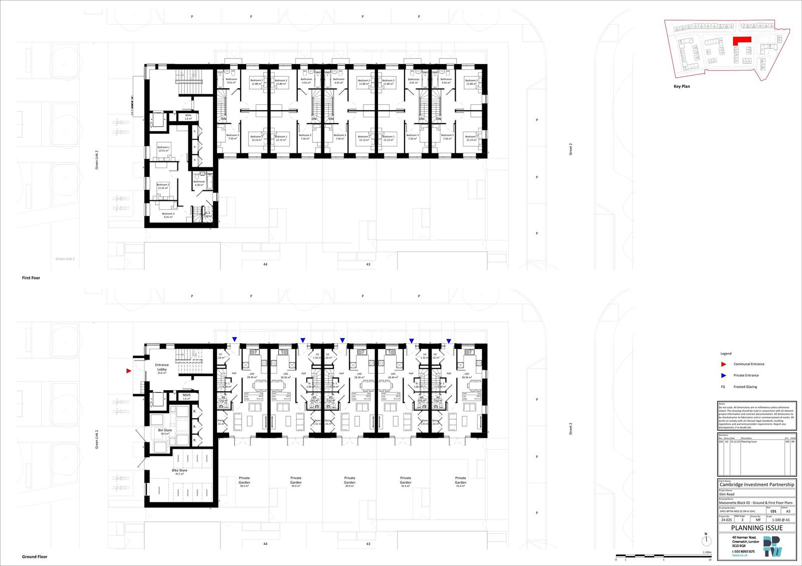
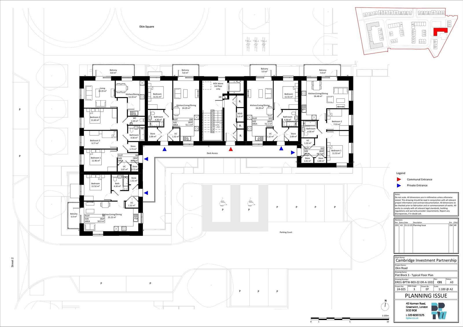
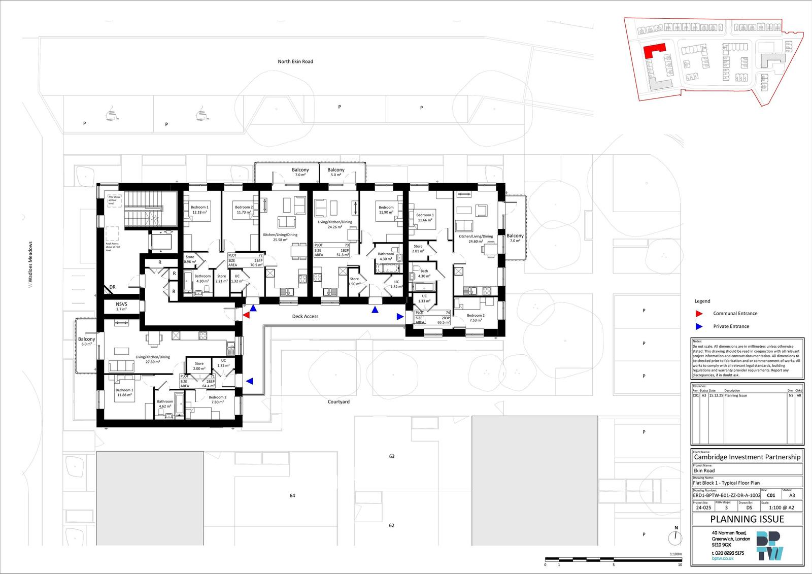
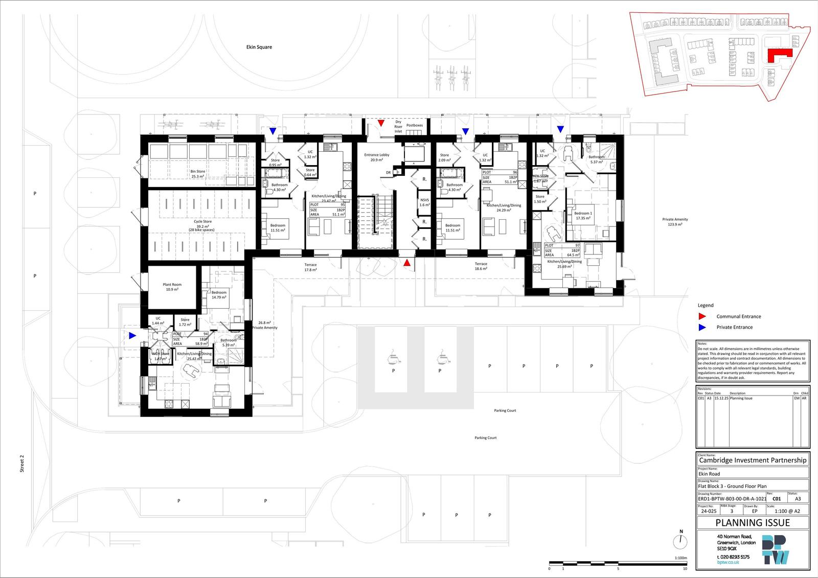
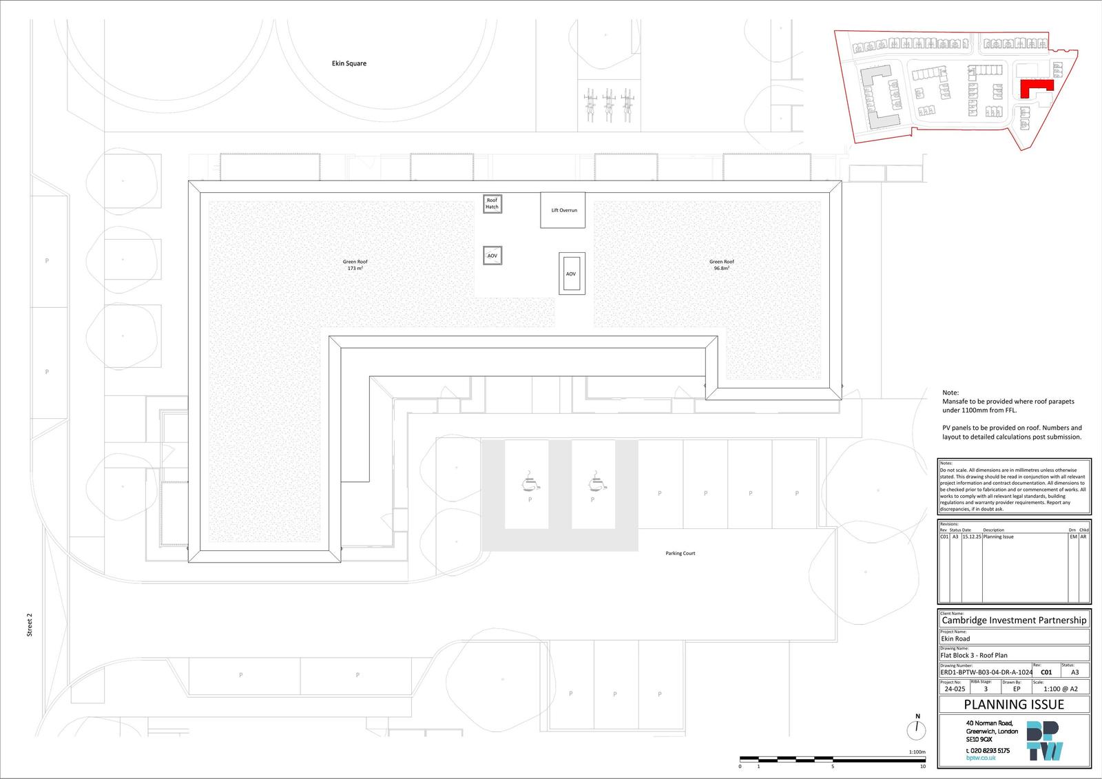
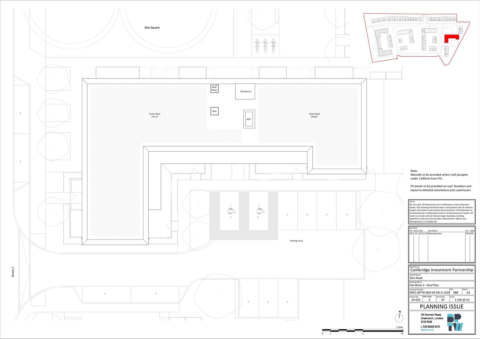
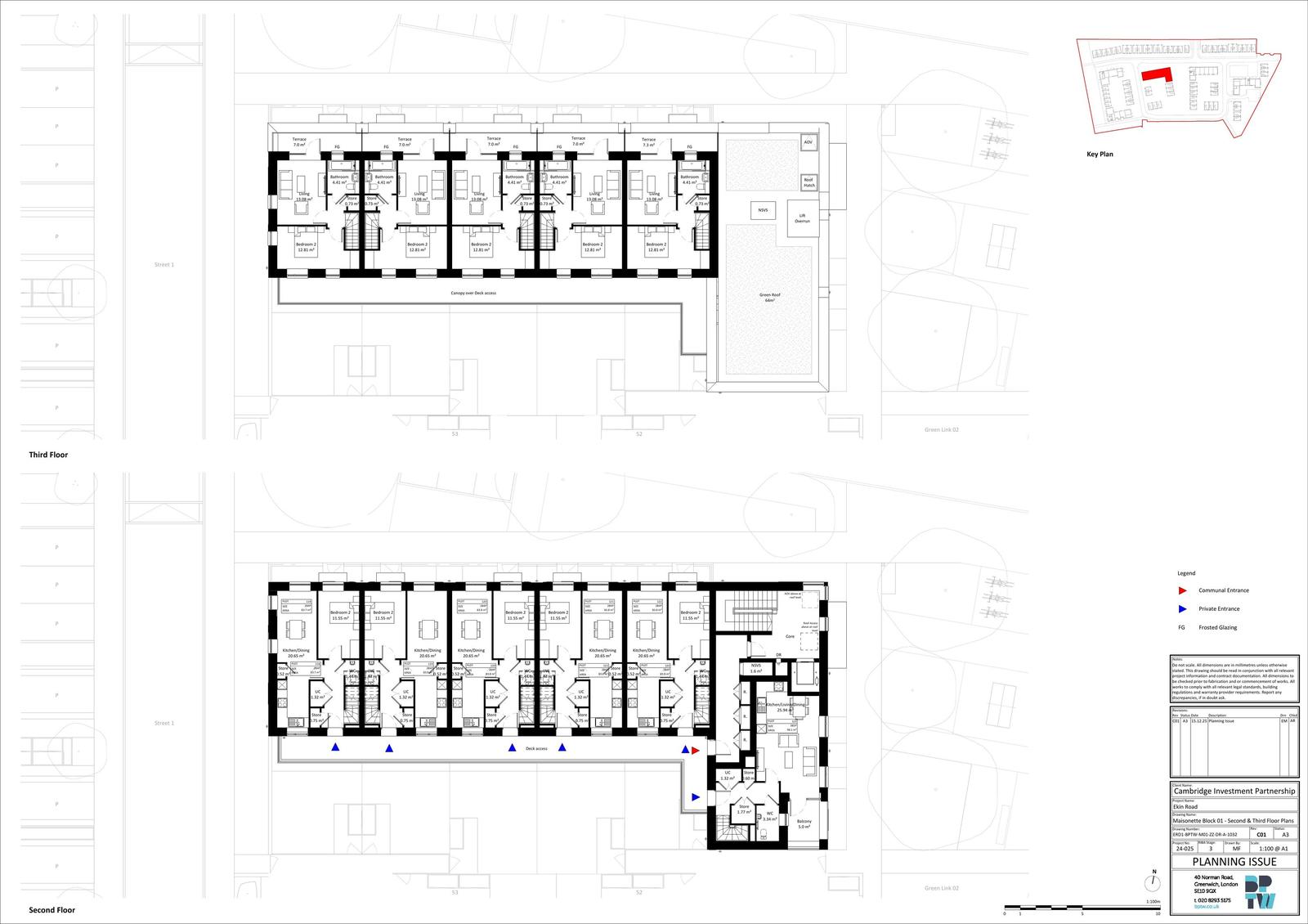
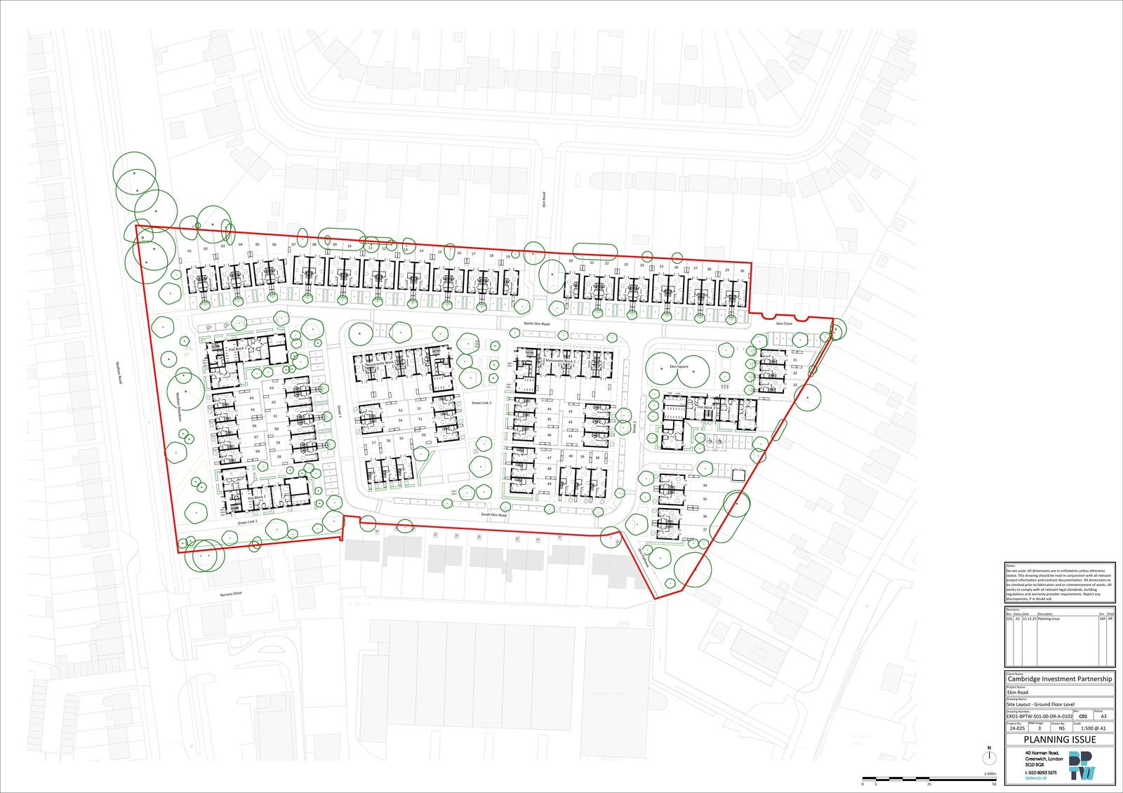
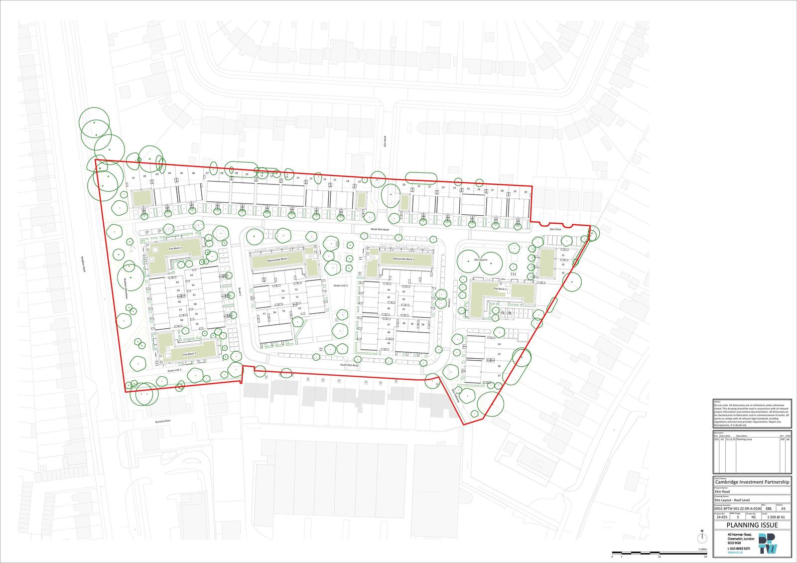
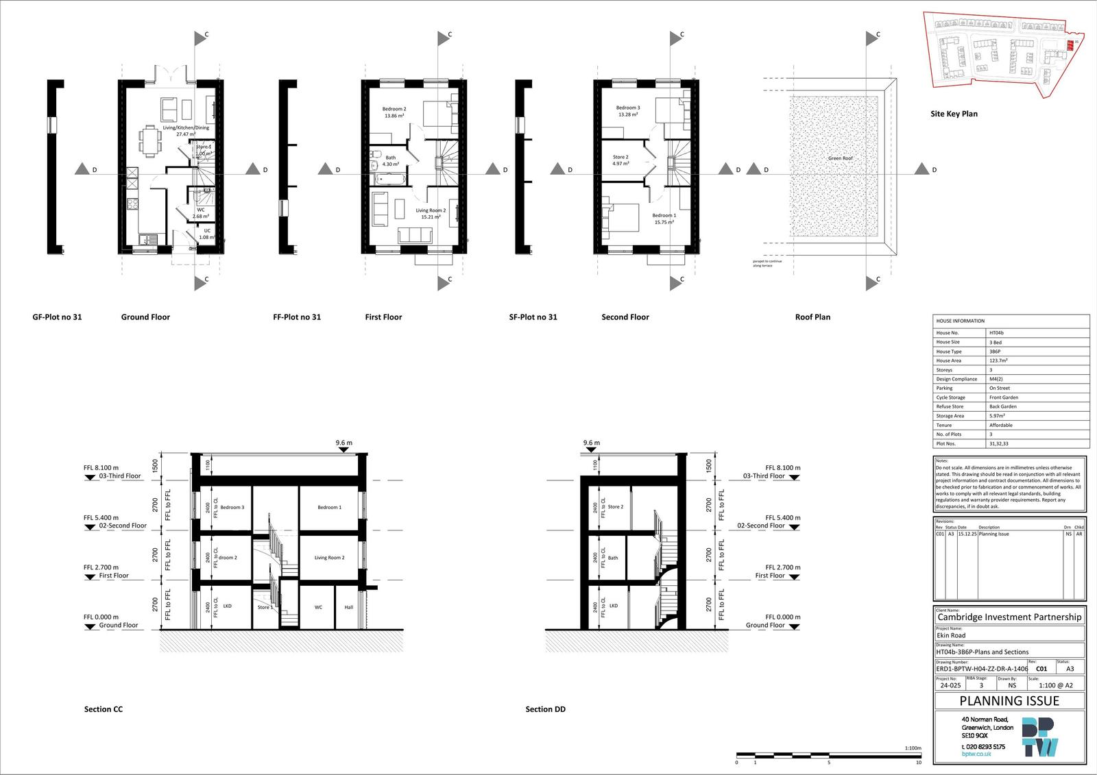
Drawings
Archived · Original link
Design and Access Statement
Archived · Original link
Application Information
Archived · Original link
Application Information
Archived · Original link
Application Information
Archived · Original link
Application Information
Archived · Original link
Design and Access Statement
Archived · Original link
Design and Access Statement
Archived · Original link
Design and Access Statement
Archived · Original link
Drawings
Archived · Original link
Drawings
Archived · Original link
Drawings
Archived · Original link
Drawings
Archived · Original link
Drawings
Archived · Original link
Drawings
Archived · Original link
Drawings
Archived · Original link
Drawings
Archived · Original link
Drawings
Archived · Original link
Drawings
Archived · Original link
Drawings
Archived · Original link
Drawings
Archived · Original link
Drawings
Archived · Original link
Drawings
Archived · Original link
Drawings
Archived · Original link
Drawings
Archived · Original link
Drawings
Archived · Original link
Drawings
Archived · Original link
Drawings
Archived · Original link
Drawings
Archived · Original link
Drawings
Archived · Original link
Application Survey / Assessment / Statement
Archived · Original link
Drawings
Archived · Original link
Photographs
Archived · Original link
Photographs
Archived · Original link
Photographs
Archived · Original link
Photographs
Archived · Original link
Photographs
Archived · Original link
Photographs
Archived · Original link
Photographs
Archived · Original link
Photographs
Archived · Original link
Photographs
Archived · Original link
Photographs
Archived · Original link

Have your say

Your comment matters. Councils must consider every representation that raises material planning considerations.

Write a comment