← South Cambridgeshire District Council

Status

Awaiting decision New housing
Received
12 Jan 2026
New homes
3

Full proposal

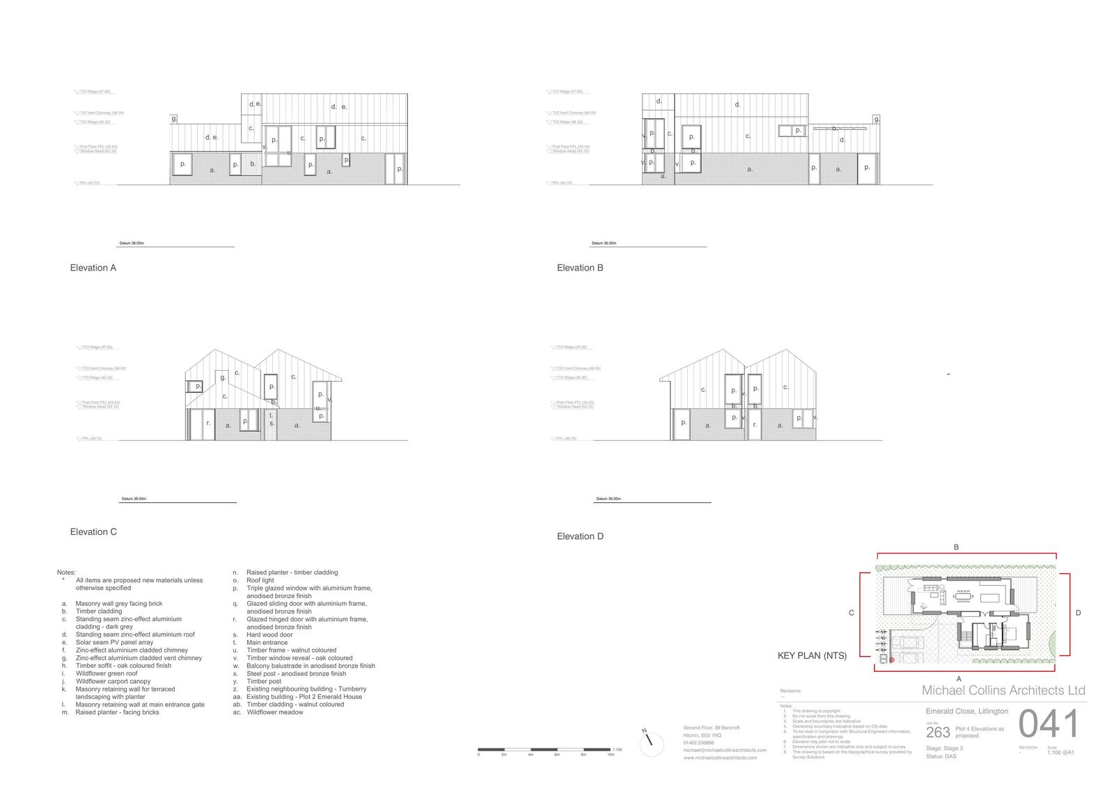
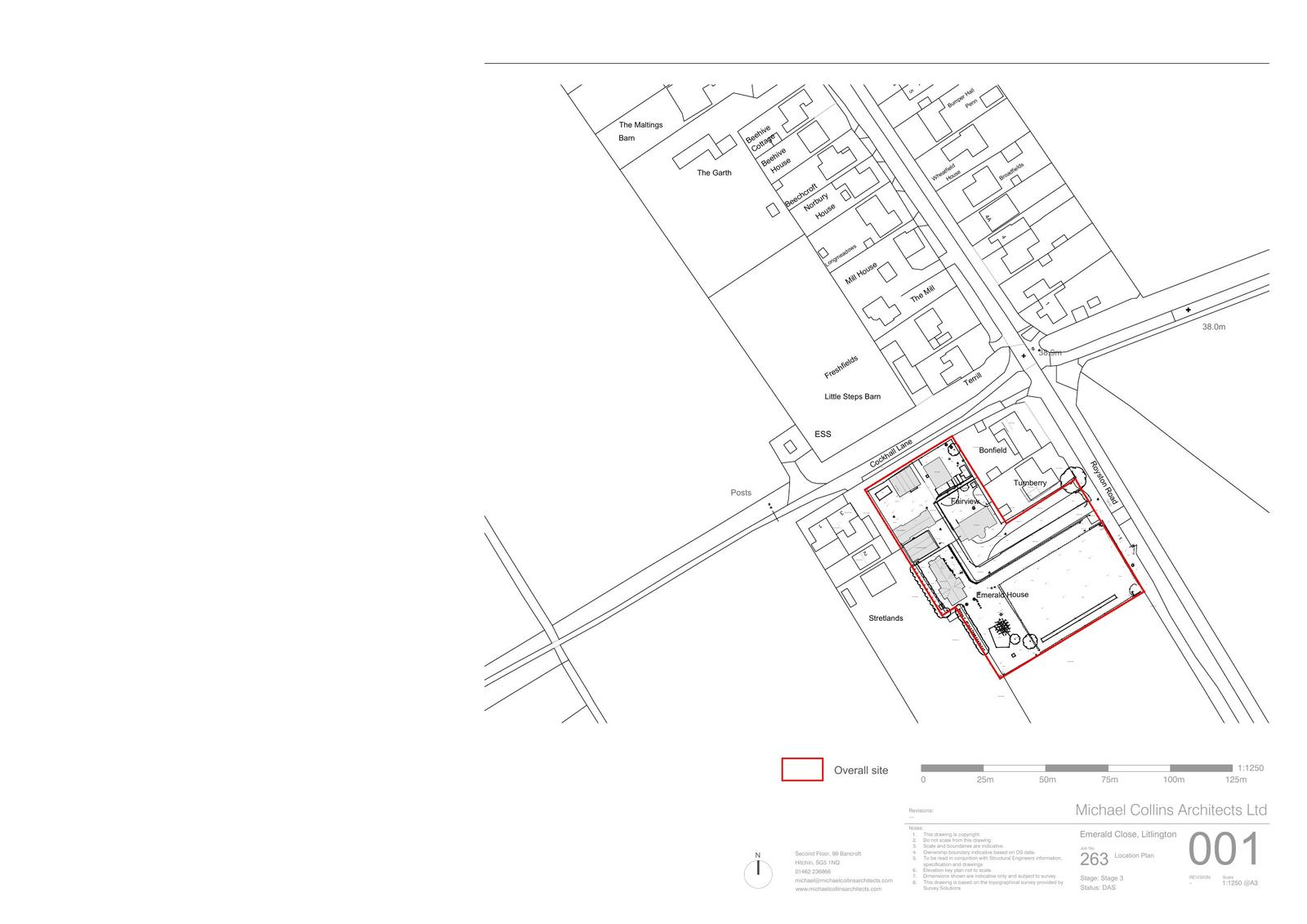
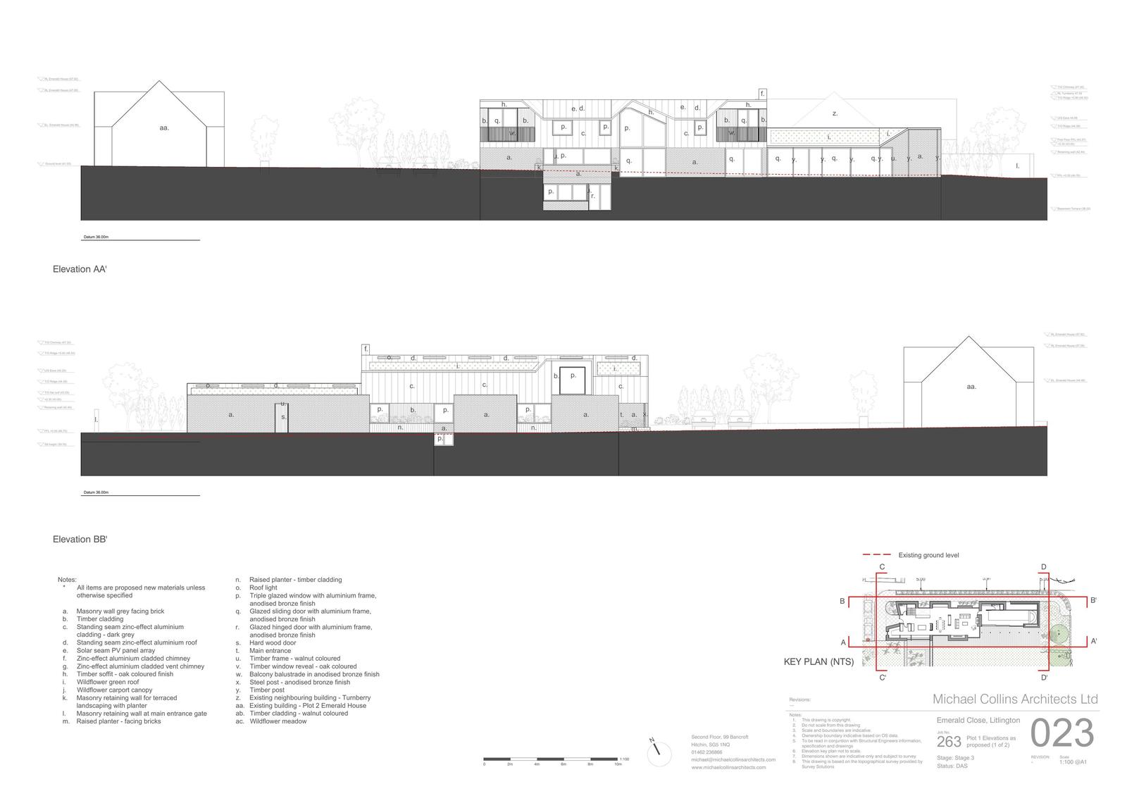
Demolition of 2 No. existing bungalows and 2 No. agricultural storage sheds and the erection of a 3 No. new passivhauses together with landscaping, boundary treatments new road access and crossover and associated new service connections.

Documents

Application Information
Archived · Original link
Drawings
Archived · Original link
Drawings
Archived · Original link
Application Information
Archived · Original link
Drawings
Archived · Original link
Drawings
Archived · Original link
Drawings
Archived · Original link
Drawings
Archived · Original link

Have your say

Your comment matters. Councils must consider every representation that raises material planning considerations.

Write a comment