← South Downs National Park Authority

Status

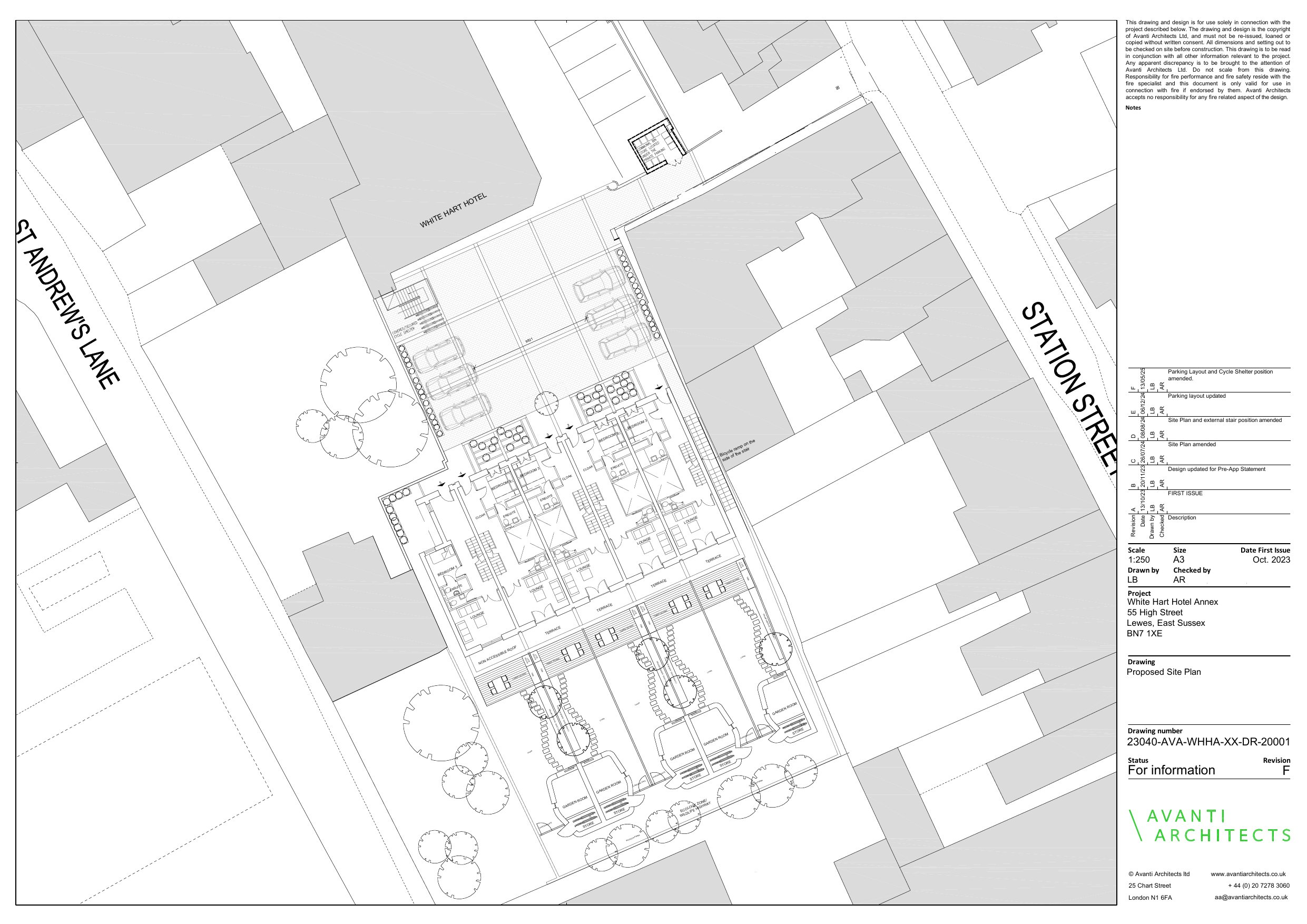
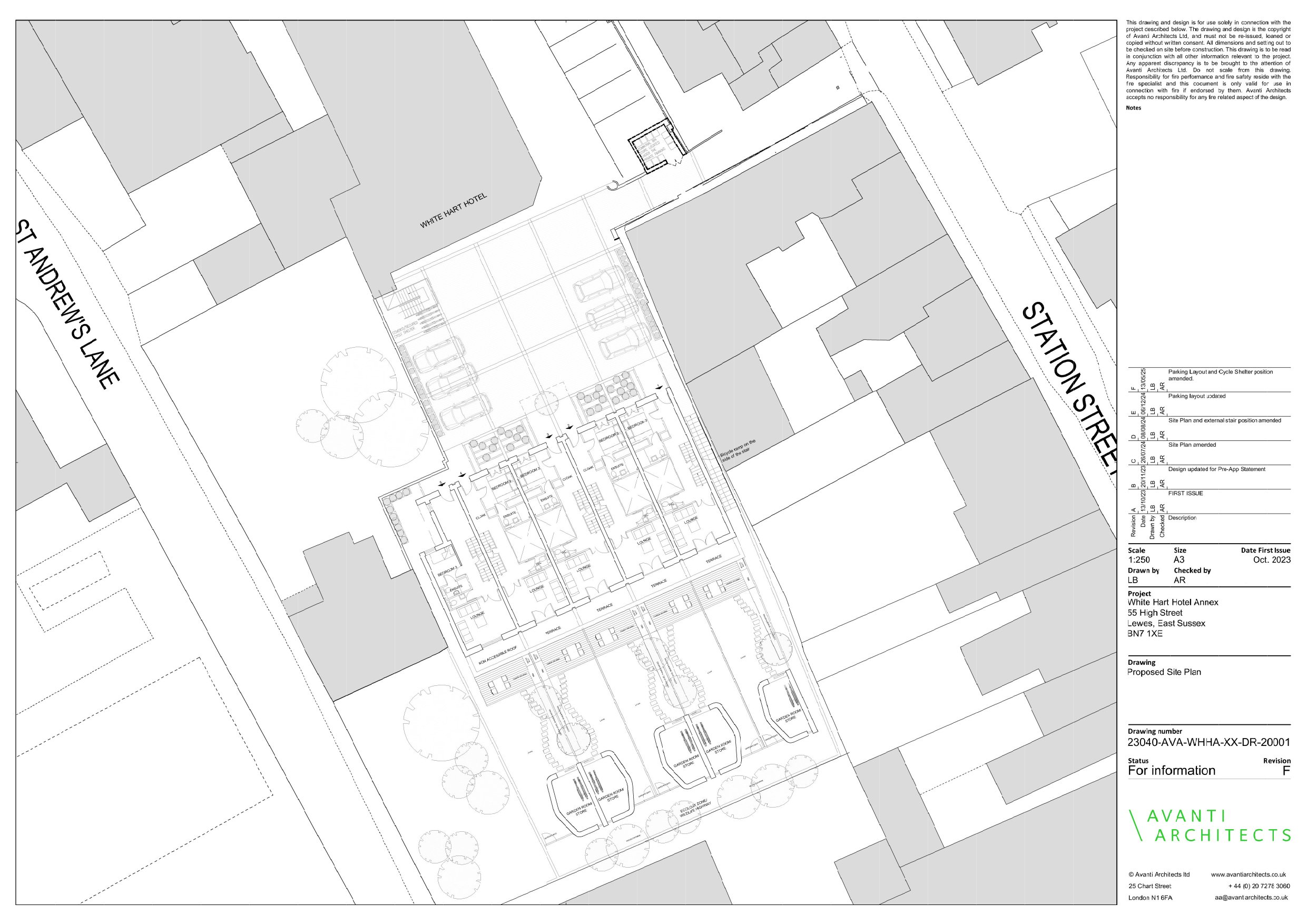
Application in Progress New housing
Received
05 Feb 2025
New homes
5

Full proposal

Demolition of the former hotel annex and construction of five new dwellings with parking and associated landscaping

Documents

- FRIENDS OF LEWES-NEUTRAL(FULL)
General Comment
Not yet archived · Original link
- FRIENDS OF LEWES-NEUTRAL(FULL)
General Comment
Not yet archived · Original link
- LEWES TOWN COUNCIL-OBJECTS(FULL)
Objection Comment
Not yet archived · Original link
ADDITIONAL INFORMATION EMAIL
Officer Correspondence
Not yet archived · Original link
AGENT RESPONSE TO FRIENDS OF LEWES REPRESENTATION
Officer Correspondence
Not yet archived · Original link
APPLICANT DESIGN RESPONSE
Officer Correspondence
Not yet archived · Original link
APPLICANT DESIGN RESPONSE
Officer Correspondence
Not yet archived · Original link
APPLICANT LETTER RE. AFFORDABLE HOUSING
Miscellaneous
Not yet archived · Original link
APPLICATION- FORM REDACTED
Application Form
Not yet archived · Original link
ARCHAEOLOGICAL DESK BASED ASSESSMENT
Application Documents
Not yet archived · Original link
BAT SURVEY REPORT
Application Documents
Not yet archived · Original link
BIODIVERSITY NET GAIN ASSESSMENT
Application Documents
Not yet archived · Original link
BIODIVERSITY NET GAIN ASSESSMENT REPORT V3
Application Documents
Not yet archived · Original link
BNG JUSTIFICATION - OFF-SITE CREDITS TO BE PURCHASED
Application Documents
Not yet archived · Original link
BNG METRIC
Application Documents
Not yet archived · Original link
BNG SPREADSHEET
Application Documents
Not yet archived · Original link
BNG STATEMENT OF INTENT
Application Documents
Not yet archived · Original link
BRIAN AND WENDY STONESTREET - OBJECTION
Objection Comment
Not yet archived · Original link
BRIAN AND WENDY STONESTREET - OBJECTION
Objection Comment
Not yet archived · Original link
BRUTON KNOWLES - AFFORDABLE HOUSING
Consultation Responses
Not yet archived · Original link
CIL - FORM 1 : CIL ADDITIONAL INFORMATION
Application Form
Not yet archived · Original link
CIL FORM 2
Application Form
Not yet archived · Original link
CLLR GRAHAM CLEWS-OBJECTS(FULL)
Objection Comment
Not yet archived · Original link
CLLR IMOGEN MAKEPEACE-OBJECTS(FULL)
Objection Comment
Not yet archived · Original link
D&A STATEMENT - SUPPLEMENTARY INFORMATION
Application Documents
Not yet archived · Original link
DEBORAH MATTHEWS AND JOHN CRAWFORD - OBJECTION
Objection Comment
Not yet archived · Original link
DEREK HEPPENSTALL - PUBLIC COMMENT
Public Comment
Not yet archived · Original link
DESIGN ACCESS STATEMENT
Application Documents
Not yet archived · Original link
DESIGN ACCESS STATEMENT
Application Documents
Not yet archived · Original link
DESIGN ACCESS STATEMENT-SUPPLEMENTARY INFORMATION
Superseded Application Documents
Not yet archived · Original link
DESIGN ACCESS STATEMENT-SUPPLEMENTARY INFORMATION
Application Documents
Not yet archived · Original link
DESIGN ACCESS STATEMENT-SUPPLEMENTARY INFORMATION V4
Application Documents
Not yet archived · Original link
DESIGN AND ACCESS STATEMENT PART 2
Application Documents
Not yet archived · Original link
DR WENDY MAPLES-OBJECTS(FULL)
Objection Comment
Not yet archived · Original link
DRAINAGE STRATEGY ENTRY LEVEL 1
Plans
Not yet archived · Original link
DRAINAGE STRATEGY GARDEN LEVEL 0
Plans
Not yet archived · Original link
DRAINAGE TECHNICAL NOTE
Application Documents
Not yet archived · Original link
ECOSYSTEM SERVICES STATEMENT
Application Documents
Not yet archived · Original link
ENERGY ASSESSMENT
Application Documents
Not yet archived · Original link
ESCC - COUNTY ARCHAEOLOGIST
Consultation Responses
Not yet archived · Original link
ESCC - FLOOD RISK MANAGEMENT
Consultation Responses
Not yet archived · Original link
ESCC - FLOOD RISK MANAGEMENT
Consultation Responses
Not yet archived · Original link
ESCC - HIGHWAYS
Consultation Responses
Not yet archived · Original link
ESCC - HIGHWAYS
Consultation Responses
Not yet archived · Original link
ESCC ARCHAEOLOGICAL CONSULTATION
Consultation Responses
Not yet archived · Original link
ESCC ECOLOGY
Consultation Responses
Not yet archived · Original link
ESCC HIGHWAYS
Consultation Responses
Not yet archived · Original link
EXISTING ENTRANCE LEVEL 1
Superseded Application Documents
Not yet archived · Original link
EXISTING FIRST FLOOR LEVEL 2
Superseded Application Documents
Not yet archived · Original link
EXISTING FRONT & REAR ELEVATION
Plans
Not yet archived · Original link
EXISTING FRONT & REAR ELEVATIONS
Superseded Application Documents
Not yet archived · Original link
EXISTING GARDEN LEVEL 0
Superseded Application Documents
Not yet archived · Original link
EXISTING GENERAL ARRANGEMENT PLAN - ENTRANCE LEVEL 1
Plans
Not yet archived · Original link
EXISTING GENERAL ARRANGEMENT PLAN - FIRST FLOOR LEVEL 2
Plans
Not yet archived · Original link
EXISTING GENERAL ARRANGEMENT PLAN - GARDEN LEVEL 0
Plans
Not yet archived · Original link
Superseded Application Documents
Archived · Original link
Plans
Archived · Original link
EXTENDED PHASE 1 HABITAT SURVEY
Application Documents
Not yet archived · Original link
FINANCIAL VIABILITY ASSESSMENT - FOLLOW-UP LETTER
Application Documents
Not yet archived · Original link
FINANCIAL VIABILITY SCHEDULE 1-4
Application Documents
Not yet archived · Original link
FRIENDS OF LEWES
Public Comment
Not yet archived · Original link
G & J WILLIAMS - OBJECTION
Objection Comment
Not yet archived · Original link
GEOTECHNICAL GROUND INVESTIGATION REPORT
Application Documents
Not yet archived · Original link
HEARTWOOD COLLECTION - SUPPORT
Support Comment
Not yet archived · Original link
HERITAGE STATEMENT
Application Documents
Not yet archived · Original link
ISSUE SHEET
Superseded Application Documents
Not yet archived · Original link
JANE NORMAN
Objection Comment
Not yet archived · Original link
JANE NORMAN - OBJECTION
Objection Comment
Not yet archived · Original link
JOHN CRAWFORD AND DEBORAH MATTHEWS
Public Comment
Not yet archived · Original link
KEVIN MOORE - OBJECTION COMMENT
Public Representations
Not yet archived · Original link
LALIDA DANIELS - OBJECTION
Objection Comment
Not yet archived · Original link
LANDSCAPE STRATEGY
Plans
Not yet archived · Original link
LEWES CONSERVATION AREA ADVISORY GROUP-OBJECTS(FULL)
Objection Comment
Not yet archived · Original link
LIGHT POLLUTION SURVEY
Application Documents
Not yet archived · Original link
LOCATION PLAN
Superseded Application Documents
Not yet archived · Original link
LOCATION PLAN
Superseded Application Documents
Not yet archived · Original link
LOCATION PLAN
Superseded Application Documents
Not yet archived · Original link
LOCATION PLAN
Plans
Not yet archived · Original link
MARKETING COMMENTARY
Application Documents
Not yet archived · Original link
MATTHEW MONTEBELLO - OBJECTION
Objection Comment
Not yet archived · Original link
MISS NATASHA STONESTREET-OBJECTS(FULL)
Objection Comment
Not yet archived · Original link
MISS NATASHA STONESTREET-OBJECTS(FULL)
Objection Comment
Not yet archived · Original link
MR DAVID WATTS
Consultee Comment
Not yet archived · Original link
MR MIKE CHAPMAN-SUPPORTS(FULL)
Support Comment
Not yet archived · Original link
MRS ALISON BIRRELL-OBJECTS(FULL)
Objection Comment
Not yet archived · Original link
MRS ALISON BIRRELL-OBJECTS(FULL)
Objection Comment
Not yet archived · Original link
MRS EMMA PILATES-SUPPORTS(FULL)
Support Comment
Not yet archived · Original link
MRS JEANNINE KAY-SUPPORTS(FULL)
Support Comment
Not yet archived · Original link
MS JULIE KUYATH-SUPPORTS(FULL)
Support Comment
Not yet archived · Original link
MS KAREN MILES-OBJECTS(FULL)
Objection Comment
Not yet archived · Original link
MS LALIDA DANIELS-OBJECTS(FULL)
Objection Comment
Not yet archived · Original link
OUTLINE SPEFICATION FOR PLANNING
Plans
Not yet archived · Original link
OVERHEATING ANALYSIS
Application Documents
Not yet archived · Original link
PLANNING STATEMENT
Application Documents
Not yet archived · Original link
PROPOSED EAST & WEST ELEVATIONS
Superseded Application Documents
Not yet archived · Original link
PROPOSED EAST & WEST ELEVATIONS
Plans
Not yet archived · Original link
PROPOSED EAST & WEST ELEVATIONS
Superseded Application Documents
Not yet archived · Original link
PROPOSED EAST & WEST ELEVATIONS
Superseded Application Documents
Not yet archived · Original link
PROPOSED EAST & WEST ELEVATIONS
Superseded Application Documents
Not yet archived · Original link
PROPOSED ENTRANCE LEVEL 1
Superseded Application Documents
Not yet archived · Original link
PROPOSED FIRST FLOOR LEVEL 2
Plans
Not yet archived · Original link
PROPOSED GARDEN LAYOUT
Plans
Not yet archived · Original link
PROPOSED GARDEN LAYOUT
Superseded Application Documents
Not yet archived · Original link
PROPOSED GARDEN LEVEL 0
Superseded Application Documents
Not yet archived · Original link
PROPOSED GENERAL ARANGEMENT PLAN - ENTRANCE LEVEL 1
Superseded Application Documents
Not yet archived · Original link
PROPOSED GENERAL ARANGEMENT PLAN - GARDEN LEVEL 0
Superseded Application Documents
Not yet archived · Original link
PROPOSED GENERAL ARRANGEMENT PLAN - ENTRANCE LEVEL 1
Plans
Not yet archived · Original link
PROPOSED GENERAL ARRANGEMENT PLAN - ENTRANCE LEVEL 1
Superseded Application Documents
Not yet archived · Original link
PROPOSED GENERAL ARRANGEMENT PLAN - FIRST FLOOR LEVEL 2
Plans
Not yet archived · Original link
PROPOSED GENERAL ARRANGEMENT PLAN - GARDEN LEVEL 0
Plans
Not yet archived · Original link
PROPOSED GENERAL ARRANGEMENT PLAN - ROOF LEVEL 4
Plans
Not yet archived · Original link
PROPOSED GENERAL ARRANGEMENT PLAN - SECOND FLOOR LEVEL 3
Superseded Application Documents
Not yet archived · Original link
PROPOSED GENERAL ARRANGEMENT PLAN - SECOND FLOOR LEVEL 3
Superseded Application Documents
Not yet archived · Original link
PROPOSED GENERAL ARRANGEMENT PLAN - SECOND FLOOR LEVEL 3
Plans
Not yet archived · Original link
PROPOSED NORTH ELEVATION - FRONT
Superseded Application Documents
Not yet archived · Original link
PROPOSED NORTH ELEVATION - FRONT
Superseded Application Documents
Not yet archived · Original link
PROPOSED NORTH ELEVATION - FRONT
Plans
Not yet archived · Original link
PROPOSED PARKING LAYOUT
Superseded Application Documents
Not yet archived · Original link
PROPOSED PARKING LAYOUT
Plans
Not yet archived · Original link
PROPOSED PARKING LAYOUT
Superseded Application Documents
Not yet archived · Original link
PROPOSED ROOF LEVEL 4
Superseded Application Documents
Not yet archived · Original link
PROPOSED SECOND FLOOR LEVEL 3
Superseded Application Documents
Not yet archived · Original link
PROPOSED SECTION N-S
Superseded Application Documents
Not yet archived · Original link
PROPOSED SECTION N-S
Superseded Application Documents
Not yet archived · Original link
PROPOSED SECTION N-S
Plans
Not yet archived · Original link
PROPOSED SECTION N-S
Superseded Application Documents
Not yet archived · Original link
Superseded Application Documents
Archived · Original link
Plans
Archived · Original link
Superseded Application Documents
Archived · Original link
Superseded Application Documents
Archived · Original link
PROPOSED SOUTH ELEVATION - REAR
Superseded Application Documents
Not yet archived · Original link
PROPOSED SOUTH ELEVATION - REAR
Superseded Application Documents
Not yet archived · Original link
PROPOSED SOUTH ELEVATION - REAR
Plans
Not yet archived · Original link
REGENCO SUSTAINABILITY CONSULTANT
Consultation Responses
Not yet archived · Original link
RESPONSE TO ESCC COMMENTS
Application Documents
Not yet archived · Original link
SDNP DESIGN OFFICER
Consultation Responses
Not yet archived · Original link
SDNP DESIGN OFFICER
Consultation Responses
Not yet archived · Original link
SDNPA CALL-IN DIRECTION
Officer Correspondence
Not yet archived · Original link
SDNPA CONSERVATION OFFICER
Consultation Responses
Not yet archived · Original link
Plans
Archived · Original link
SOUTHERN WATER
Consultation Responses
Not yet archived · Original link
SOUTHERN WATER
Consultation Responses
Not yet archived · Original link
SOUTHERN WATER GIS
Consultation Responses
Not yet archived · Original link
TECHNICAL NOTE P02
Application Documents
Not yet archived · Original link
TRANSPORT STATEMENT
Application Documents
Not yet archived · Original link
TREE ASSESSMENT AND ARB METHOD STATEMENT
Application Documents
Not yet archived · Original link
TREE SURVEY PLAN
Plans
Not yet archived · Original link
TYPICAL DRAINAGE DETAILS - SHEET 1
Plans
Not yet archived · Original link
TYPICAL DRAINAGE DETAILS - SHEET 2
Plans
Not yet archived · Original link
TYPICAL PLANT SCHEDULE
Plans
Not yet archived · Original link
VIABILITY ASSESSMENT - BRUTON KNOWLES 6
Consultation Responses
Not yet archived · Original link

Have your say

Your comment matters. Councils must consider every representation that raises material planning considerations.

Write a comment