← South Downs National Park Authority

Status

Application in Progress Listed building
Received
06 Mar 2025
New homes
0

Full proposal

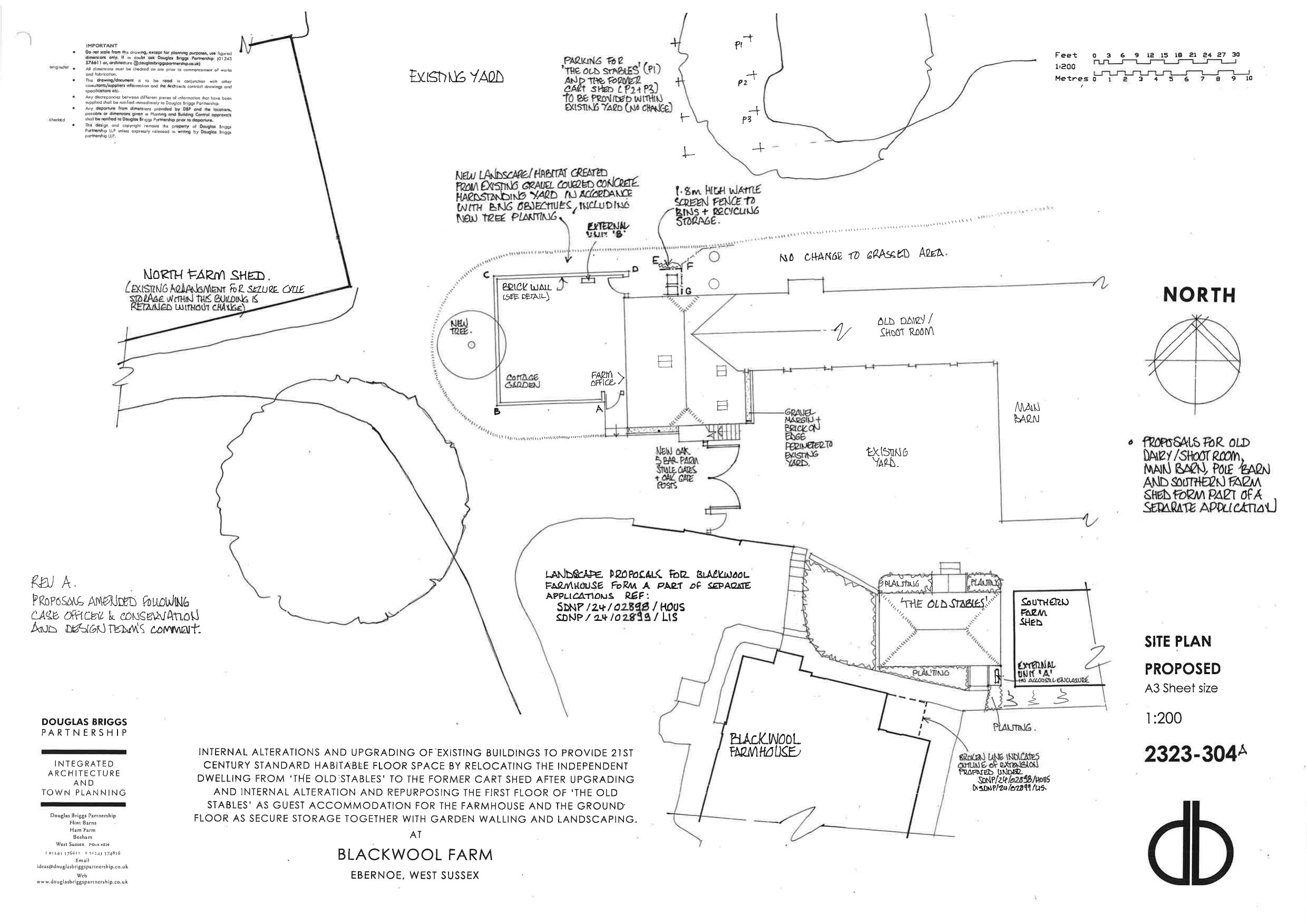
Internal alterations of existing buildings to provide habitable floorspace by relocating independent dwelling from old stables to former cart shed, internal alteration and re purposing 1st floor of old stables as guest accommodation and ground floor as storage with garden walling and landscaping.

Documents

ADDENDUM AND HYDROLOGICAL AND WATER NEUTRALITY STATEMENT
Application Documents
Not yet archived · Original link
ADDITIONAL PLANS- PROPOSED DOOR DETAILS
Plans
Not yet archived · Original link
ADDITIONAL PLANS- PROPOSED WINDOW A
Plans
Not yet archived · Original link
ADDITIONAL PLANS- PROPOSED WINDOW B
Plans
Not yet archived · Original link
ADDITIONAL PLANS- PROPOSED WINDOW C & D
Plans
Not yet archived · Original link
ADDITIONAL PLANS- PROPOSED WINDOW DETAIL TYPICAL SECTIONS
Plans
Not yet archived · Original link
APPLICATION FORM
Application Form
Not yet archived · Original link
BAT METHOD STATEMENT, MITIGATION AND ENHANCEMENT STRATEGY
Application Documents
Not yet archived · Original link
BAT SURVEY REPORT
Application Documents
Not yet archived · Original link
BLOCK PLAN
Plans
Not yet archived · Original link
BNG REPORT
BNG Summary
Not yet archived · Original link
CIL FORM 1 ADDITIONAL INFORMATION
CIL Forms
Not yet archived · Original link
CIL FORM 2 ASSUMPTION OF LIABILITY
CIL Forms
Not yet archived · Original link
CORRESPONDENCE FOM AGENT 03.03.26
Application Documents
Not yet archived · Original link
COVERING LETTER
Application Documents
Not yet archived · Original link
CUMULATIVE PLANT NOISE AND GUEST AMENITY ASSESSMENT
Application Documents
Not yet archived · Original link
EMAIL FROM AGENT 3/7/25 - LETTER INCLUDED
Officer Correspondence
Not yet archived · Original link
EMAIL TO AGENT 1/7/25 - CONSULTEE RESPONSES
Officer Correspondence
Not yet archived · Original link
EXTENSION OF TIME AGREEMENT
Officer Correspondence
Not yet archived · Original link
FLOOR PLANS AND ELEVATIONS
Plans
Not yet archived · Original link
FOUL DRAINAGE ASSESSMENT
Application Documents
Not yet archived · Original link
HOLDING PLAN
Plans
Not yet archived · Original link
INFORMATION COPY OF BARN OWL SURVEY REPORT
Application Documents
Not yet archived · Original link
INFORMATION COPY OF REPTILE MITIGATION STRATEGY
Application Documents
Not yet archived · Original link
LANDSCAPE APPRAISAL
Application Documents
Not yet archived · Original link
LETTER FROM AGENT 8/8/25
Officer Correspondence
Not yet archived · Original link
LISTED BUILDING ASSESSMENT AND HERITAGE STATEMENT
Application Documents
Not yet archived · Original link
LOCATION PLAN
Plans
Not yet archived · Original link
MATERIALS AND FINISHES SCHEDULE
Application Documents
Not yet archived · Original link
NATURAL ENGLAND 19.05.2025
Consultee Comment
Not yet archived · Original link
NOISE ASSESSMENT
Application Documents
Not yet archived · Original link
PLANNING DESIGN AND ACCESS AND ECOSYSTEM SERVICES STATEMENT
Application Documents
Not yet archived · Original link
PRELIMINARY ECOLOGICAL APPRAISAL
Application Documents
Not yet archived · Original link
Plans
Archived · Original link
SITE PHOTOGRAPHS
Application Documents
Not yet archived · Original link
Plans
Archived · Original link
STRUCTURAL APPRAISAL
Application Documents
Not yet archived · Original link
THE FORMER CART SHED FLOOR PLANS AND ELEVATIONS
Plans
Not yet archived · Original link
THE FORMER CART SHED GARDEN WALL AND FENCE DETAILS PROPOSED
Plans
Not yet archived · Original link
THE OLD STABLES AND FORMER CART SHED ASHP-AC EXTERNAL UNIT DETAILS PROPOSED
Plans
Not yet archived · Original link

Have your say

Your comment matters. Councils must consider every representation that raises material planning considerations.

Write a comment