← South Downs National Park Authority

Status

Application in Progress New housing
Received
17 Apr 2025
New homes
74

Full proposal

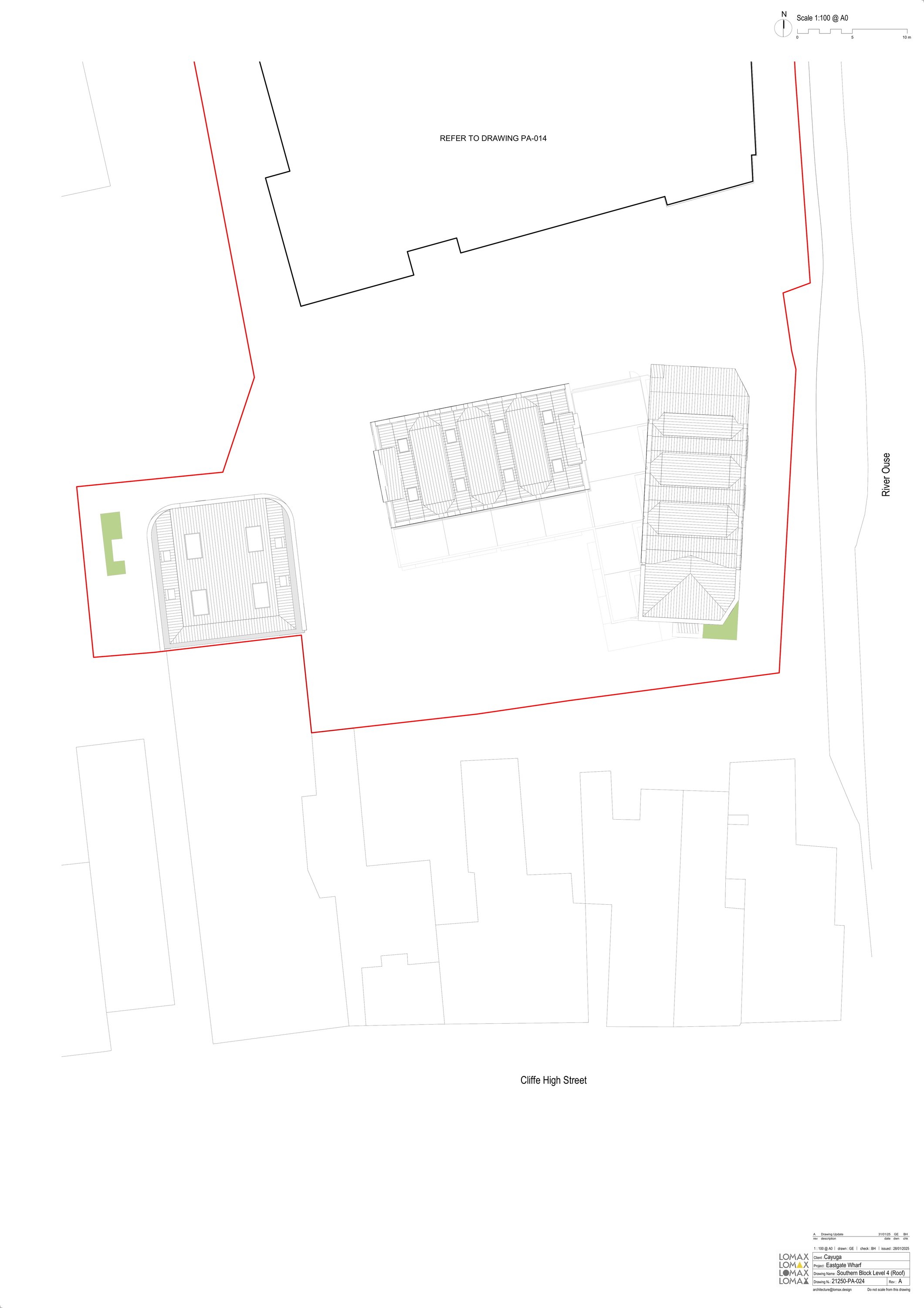
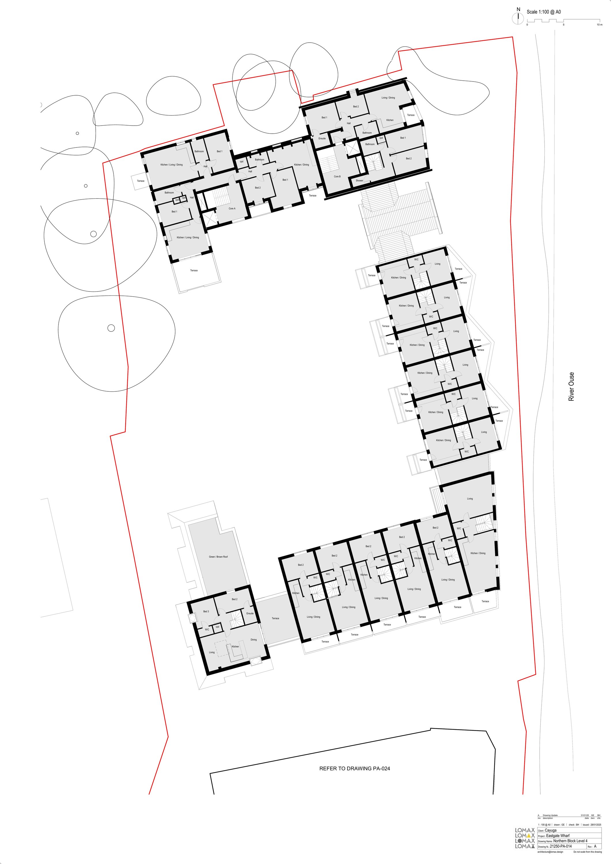
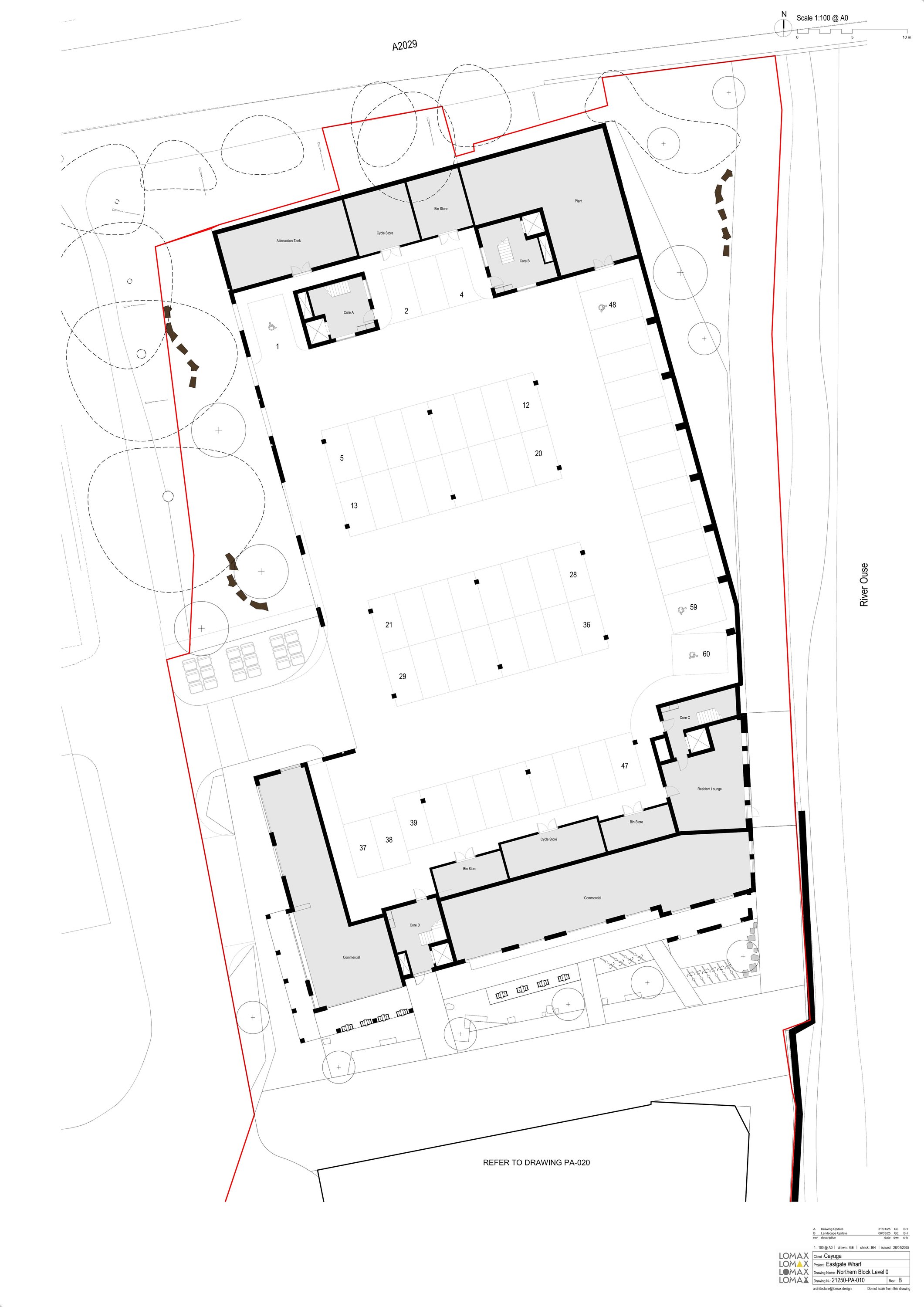
Demolition of existing buildings and construction of mixed-use development comprising 74 dwellings (Class C3), and ground floor commercial space (Class E), with associated landscaping, parking, access alterations, and public realm

Documents

General Comment
Archived · Original link
Objection Comment
Archived · Original link
Support Comment
Archived · Original link
Application Form
Archived · Original link
Application Documents
Archived · Original link
Application Documents
Archived · Original link
Application Documents
Archived · Original link
Application Documents
Archived · Original link
Application Form
Archived · Original link
Application Documents
Archived · Original link
Application Documents
Archived · Original link
Miscellaneous
Archived · Original link
Application Documents
Archived · Original link
Objection Comment
Archived · Original link
Application Documents
Archived · Original link
Application Documents
Archived · Original link
Consultation Responses
Archived · Original link
Officer Correspondence
Archived · Original link
Officer Correspondence
Archived · Original link
Consultation Responses
Archived · Original link
Consultation Responses
Archived · Original link
Consultation Responses
Archived · Original link
Officer Correspondence
Archived · Original link
Officer Correspondence
Archived · Original link
Application Documents
Archived · Original link
Application Documents
Archived · Original link
Consultation Responses
Archived · Original link
Application Documents
Archived · Original link
Consultation Responses
Archived · Original link
Consultation Responses
Archived · Original link
Consultation Responses
Archived · Original link
Application Documents
Archived · Original link
Consultation Responses
Archived · Original link
Objection Comment
Archived · Original link
Objection Comment
Archived · Original link
General Comment
Archived · Original link
Objection Comment
Archived · Original link
MR NEIL GRIFFIN
Consultee Comment
Not yet archived · Original link
Support Comment
Archived · Original link
Objection Comment
Archived · Original link
Objection Comment
Archived · Original link
Consultation Responses
Archived · Original link
Officer Correspondence
Archived · Original link
Application Documents
Archived · Original link
Application Documents
Archived · Original link
Application Documents
Archived · Original link
Application Documents
Archived · Original link
Officer Correspondence
Archived · Original link
Application Documents
Archived · Original link
Officer Correspondence
Archived · Original link
Plans
Archived · Original link
SDNP CONSERVATION OFFICER
Consultation Responses
Not yet archived · Original link
Officer Correspondence
Archived · Original link
Consultation Responses
Archived · Original link
Consultation Responses
Archived · Original link
Application Documents
Archived · Original link
Application Documents
Archived · Original link
Application Documents
Archived · Original link
Application Documents
Archived · Original link
Application Documents
Archived · Original link
Application Documents
Archived · Original link
Application Documents
Archived · Original link
Plans
Archived · Original link
Consultation Responses
Archived · Original link

Have your say

Your comment matters. Councils must consider every representation that raises material planning considerations.

Write a comment