← South Downs National Park Authority

Status

Application in Progress Change of use
Received
01 Aug 2025
New homes
12

Full proposal

Restoration and regeneration of Lavington Stud and Estate with a new environmental farming and management regime supported by development proposals on two sites comprising: Home Farm: main stud stables area and office. Demolition of C20th stable ranges and barns and the construction of a new principal Estate dwelling with pool and tennis court; renovation and alteration and change of use of traditional courtyard buildings to form 7 no. self-contained holiday lets, offices and a multifunctional space for education, Estate meeting room, and ancillary residential and tourist visitor use; retention of other buildings as existing stables and storage; and Calloways (alternative to implemented scheme SDNP/18/00938/FUL): Renovation and alteration of existing buildings to facilitate a change of use to form 5 no. dwellings; demolition of existing bungalow and replacement with one dwelling; renovation, alteration and change of use of existing equestrian buildings to enterprise units within Use Class E(g). Retention of the existing portal framed barn for agricultural storage.

Documents

- SDNPA CONSERVATION TEAM
Consultee Comment
Not yet archived · Original link
- SDNPA CONSERVATION TEAM
Consultee Comment
Not yet archived · Original link
AGRICULTURE/FORESTRY/ESTATE DIVERSIFICATION PLAN
Application Documents
Not yet archived · Original link
APPLICATION FORM REDACTED
Application Form
Not yet archived · Original link
ARBORICULTURAL IMPACT ASSESSMENT
Application Documents
Not yet archived · Original link
BAT MITIGATION AND COMPENSATION STRATEGY
Application Documents
Not yet archived · Original link
BAT SURVEY REPORT
Application Documents
Not yet archived · Original link
BIODIVERSITY NET GAIN ASSESSMENT
Application Documents
Not yet archived · Original link
BOREHOLE 1
Application Documents
Not yet archived · Original link
BOREHOLE 2
Application Documents
Not yet archived · Original link
C MCGOLPIN
Public Representations
Not yet archived · Original link
C MCGOLPIN
Public Representations
Not yet archived · Original link
CALLOWAYS BUILDING 1 PROPOSED ELEVATIONS
Plans
Not yet archived · Original link
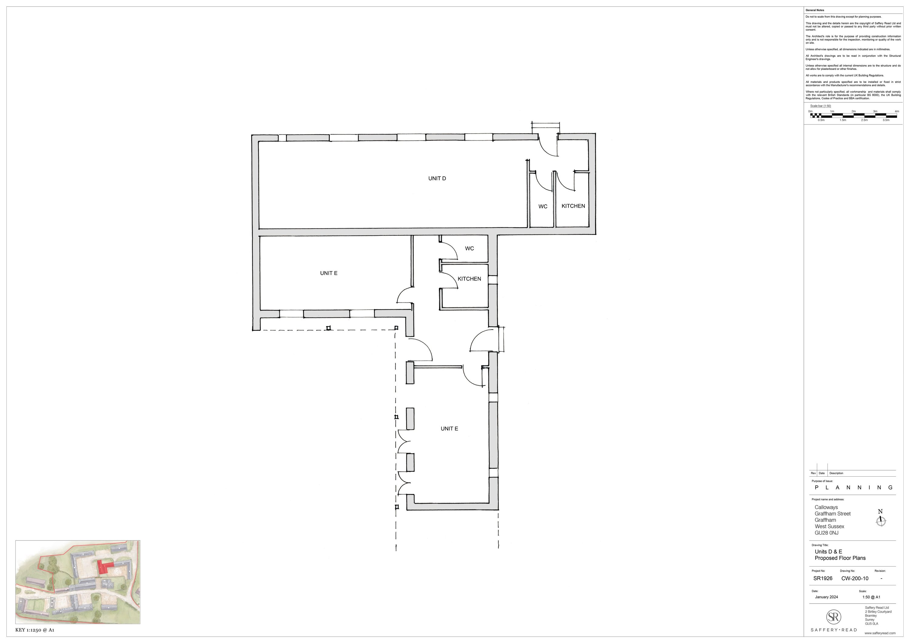
CALLOWAYS BUILDING 1 PROPOSED FLOORPLANS
Plans
Not yet archived · Original link
CALLOWAYS BUILDING 1, 6 & C EXISTING ELEVATIONS
Plans
Not yet archived · Original link
CALLOWAYS BUILDING 1, 6 AND UNIT C EXISTING PLANS
Plans
Not yet archived · Original link
CALLOWAYS BUILDING 2 & 3 EXISTING ELEVATIONS
Plans
Not yet archived · Original link
CALLOWAYS BUILDING 2 & 3 PROPOSED ELEVATIONS
Plans
Not yet archived · Original link
CALLOWAYS BUILDING 2 PROPOSED FLOORPLANS
Plans
Not yet archived · Original link
CALLOWAYS BUILDING 2, 3 & 9 EXISTING PLANS
Plans
Not yet archived · Original link
CALLOWAYS BUILDING 3 PROPOSED FLOORPLANS
Plans
Not yet archived · Original link
CALLOWAYS BUILDING 4 & 5 EXISTING PLANS AND ELEVATIONS
Plans
Not yet archived · Original link
CALLOWAYS BUILDING 4 & 5 PROPOSED ELEVATIONS
Plans
Not yet archived · Original link
CALLOWAYS BUILDING 4 - PROPOSED FLOORPLANS
Plans
Not yet archived · Original link
CALLOWAYS BUILDING 5 PROPOSED SECTIONS AND FLOOR PLANS
Plans
Not yet archived · Original link
CALLOWAYS BUILDING IDENTIFICATION PLAN EXISTING
Plans
Not yet archived · Original link
CALLOWAYS BUILDINGS 7 & 8 EXISTING PLANS AND ELEVATIONS
Plans
Not yet archived · Original link
CALLOWAYS BUILDINGS 7 & 8 PROPOSED FLOORPLANS AND ELEVATIONS
Plans
Not yet archived · Original link
CALLOWAYS EXISTING TOPOGRAPHIC SURVEY
Plans
Not yet archived · Original link
CALLOWAYS HOUSE 6 AND UNIT C PROPOSED ELEVATIONS
Plans
Not yet archived · Original link
CALLOWAYS PROPOSED ARIEL VIEW
Plans
Not yet archived · Original link
CALLOWAYS PROPOSED DEMOLITION PLAN
Plans
Not yet archived · Original link
CALLOWAYS PROPOSED EXTERNAL LIGHTING PLAN
Plans
Not yet archived · Original link
CALLOWAYS UNIT D, E, F & G PROPOSED ELEVATIONS
Plans
Not yet archived · Original link
CALLOWAYS UNIT H EXISTING PLANS AND ELEVATIONS
Plans
Not yet archived · Original link
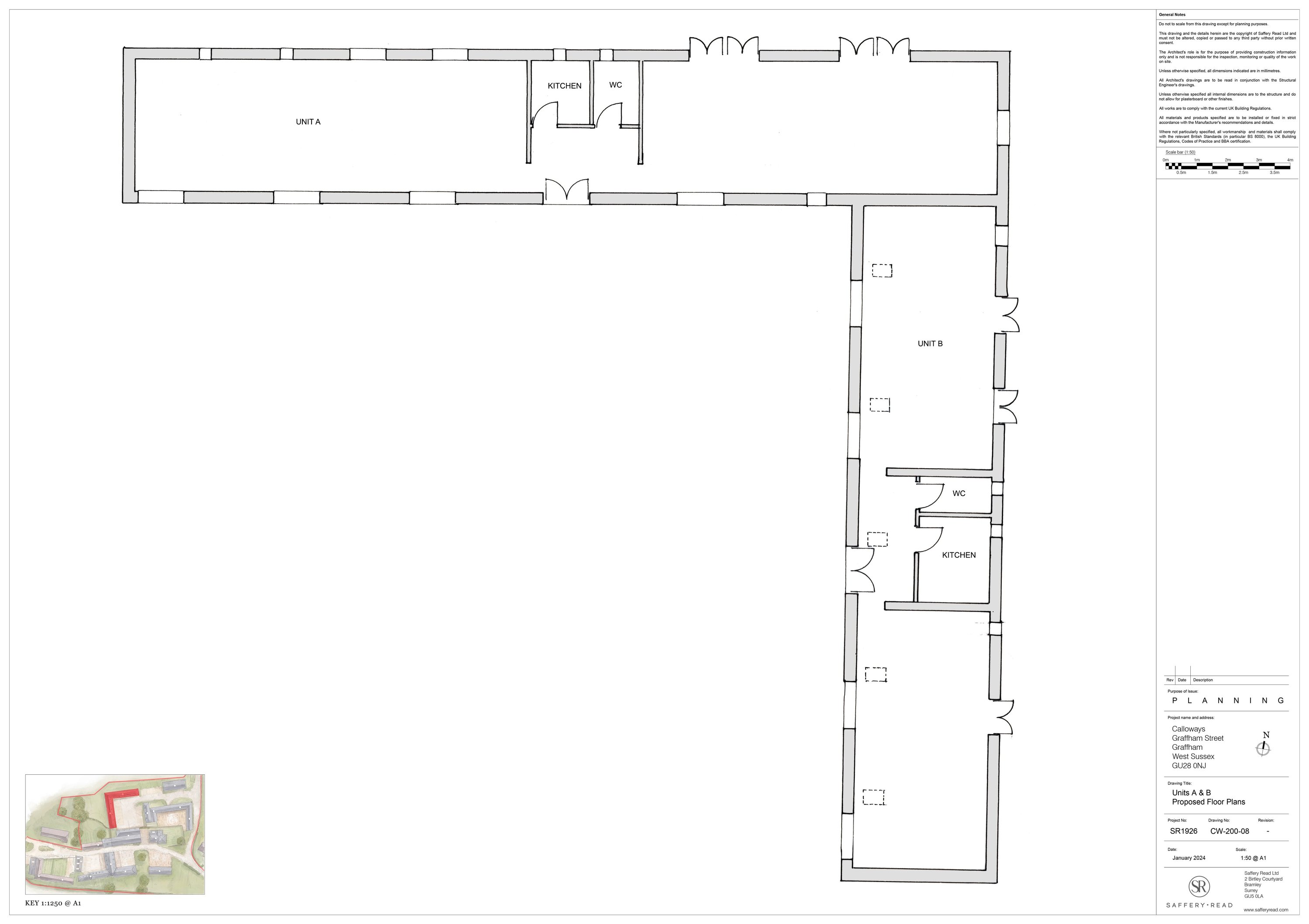
CALLOWAYS UNITS A & B EXISTING PLANS AND ELEVATIONS
Plans
Not yet archived · Original link
CALLOWAYS UNITS A + B PROPOSED ELEVATIONS
Plans
Not yet archived · Original link
CALLOWAYS UNITS D, E, F & G EXISTING PLANS AND ELEVATIONS
Plans
Not yet archived · Original link
CDC ENVIRONMENTAL PROTECTION
Consultation Responses
Not yet archived · Original link
CHRIS MCGOLPIN
Public Comment
Not yet archived · Original link
CIL - FORM 1 : CIL ADDITIONAL INFORMATION
Application Form
Not yet archived · Original link
COVER EMAIL FOR MISSING APPENDICES
Officer Correspondence
Not yet archived · Original link
ECOSYSTEM SERVICES STATEMENT
Application Documents
Not yet archived · Original link
ENVIRONMENT AGENCY
Consultation Responses
Not yet archived · Original link
ESTATE HOUSE PROPOSED BASEMENT - SECTION THROUGH ESCAPE WINDOW
Plans
Not yet archived · Original link
ESTATE HOUSE PROPOSED BASEMENT - TYPICAL SECTION THROUGH WINDOW
Plans
Not yet archived · Original link
ESTATE HOUSE PROPOSED EAST AND WEST FACING ELEVATIONS
Plans
Not yet archived · Original link
ESTATE HOUSE PROPOSED NORTH AND SOUTH FACING ELEVATIONS
Plans
Not yet archived · Original link
ESTATE HOUSE PROPOSED SOUTH ELEVATION
Plans
Not yet archived · Original link
FLOOD RISK ASSESSMENT AND DRAINAGE STRATEGY
Application Documents
Not yet archived · Original link
GRAFFHAM PARISH COUNCIL - SUPPORT
Support Comment
Not yet archived · Original link
GROUND INVESTIGATION REPORT
Application Documents
Not yet archived · Original link
HERITAGE STATEMENT
Application Documents
Not yet archived · Original link
HOME FARM BUILDING 1 - PROPOSED SECTION
Plans
Not yet archived · Original link
HOME FARM BUILDING 11 - PROPOSED ELEVATIONS
Plans
Not yet archived · Original link
HOME FARM BUILDING 3 PROPOSED ELEVATIONS
Plans
Not yet archived · Original link
HOME FARM BUILDING 4 - PROPOSED ELEVATIONS
Plans
Not yet archived · Original link
HOME FARM BUILDING 5 PROPOSED ELEVATIONS
Plans
Not yet archived · Original link
HOME FARM BUILDING 6 & 7 - PROPOSED SOUTH AND WEST FACING ELEVATIONS
Plans
Not yet archived · Original link
HOME FARM BUILDING 7 - PROPOSED SECTIONS
Plans
Not yet archived · Original link
HOME FARM BUILDING IDENTIFICATION PLAN EXISTING
Plans
Not yet archived · Original link
HOME FARM BUILDINGS 1 & 2EXISTING PLANS AND ELEVATIONS
Plans
Not yet archived · Original link
HOME FARM BUILDINGS 1 - 7 PROPOSED FLOORPLANS
Plans
Not yet archived · Original link
HOME FARM BUILDINGS 4 & 5EXISTING PLANS AND ELEVATIONS
Plans
Not yet archived · Original link
HOME FARM BUILDINGS 6 & 7 - PROPOSED NORTH AND EAST FACING ELEVATIONS
Plans
Not yet archived · Original link
HOME FARM EXISTING PLANS AND ELEVATIONS BUILDING 10
Plans
Not yet archived · Original link
HOME FARM EXISTING PLANS AND ELEVATIONS BUILDING 12
Plans
Not yet archived · Original link
HOME FARM EXISTING PLANS AND ELEVATIONS BUILDINGS 13 & 14
Plans
Not yet archived · Original link
HOME FARM EXISTING PLANS AND ELEVATIONS BUILDINGS 3, 6 & 7
Plans
Not yet archived · Original link
HOME FARM EXISTING PLANS AND ELEVATIONS BUILDINGS 8, 9 & 11
Plans
Not yet archived · Original link
HOME FARM EXISTING TOPOGRAPHIC SURVEY
Plans
Not yet archived · Original link
HOME FARM PROPOSED BASEMENT AND GROUND FLOOR PLANS - ESTATE HOUSE
Plans
Not yet archived · Original link
HOME FARM PROPOSED DEMOLITION AND CHANGE OF USE PLAN
Plans
Not yet archived · Original link
HOME FARM PROPOSED ELEVATIONS BUILDING 1
Plans
Not yet archived · Original link
HOME FARM PROPOSED ELEVATIONS BUILDING 2
Plans
Not yet archived · Original link
HOME FARM PROPOSED EXTERNAL LIGHTING PLAN
Plans
Not yet archived · Original link
HOME FARM PROPOSED FIRST AND SECOND FLOOR PLANS - ESTATE HOUSE
Plans
Not yet archived · Original link
LANDSCAPE AND VISUAL APPRAISAL
Application Documents
Not yet archived · Original link
LAVINGTON STUD ACCOMODATION SCHEDULE
Application Documents
Not yet archived · Original link
LIGHTING STRATEGY
Application Documents
Not yet archived · Original link
LOCATION PLAN
Plans
Not yet archived · Original link
LOCATION PLAN
Plans
Not yet archived · Original link
LVIA PLANS
Plans
Not yet archived · Original link
LVIA PLANS
Plans
Not yet archived · Original link
LVIA PLANS
Plans
Not yet archived · Original link
LVIA SITE AND CONTEXT PHOTOGRAPHS
Application Documents
Not yet archived · Original link
MR DAVID HOPKINS-NEUTRAL(FULL)
General Comment
Not yet archived · Original link
MR MARTIN BUCKLEY-SUPPORTS(FULL)
Support Comment
Not yet archived · Original link
MR RICHARD DAVIDSON-OBJECTS(FULL)
Objection Comment
Not yet archived · Original link
MRS AMY HARTE
Consultee Comment
Not yet archived · Original link
MS HCC ECOLOGY TEAM
Consultee Comment
Not yet archived · Original link
NOISE STATEMENT
Application Documents
Not yet archived · Original link
OFFICER ADVICE
Officer Correspondence
Not yet archived · Original link
PDAS APP 5 P227-262. APP 6 (SOIL ASSOC ORGANIC CERT) APP 7 (BOTANIC SURVEY)
Application Documents
Not yet archived · Original link
PDAS APPENDICES 8 (VISION) AND 9 (WOODLAND MANAGEMENT PLAN)
Application Documents
Not yet archived · Original link
PDAS APPENDIX 1 PRE-APPLICATION ADVICE
Application Documents
Not yet archived · Original link
PDAS APPENDIX 2 HIGHWAYS PRE-APPLICATION ADVICE
Application Documents
Not yet archived · Original link
PDAS APPENDIX 3 BIODIVERSITY SURVEY
Application Documents
Not yet archived · Original link
PDAS APPENDIX 4 CSA P1-24
Application Documents
Not yet archived · Original link
PDAS APPENDIX 4 NATURE RECOVERY
Application Documents
Not yet archived · Original link
PDAS APPENDIX 5 P104-142 COUNTRYSIDE STEWARDSHIP AGREEMENT DOCUMENT
Application Documents
Not yet archived · Original link
PDAS APPENDIX 5 P143-183 COUNTRYSIDE STEWARDSHIP AGREEMENT DOCUMENT
Application Documents
Not yet archived · Original link
PDAS APPENDIX 5 P184-226 COUNTRYSIDE STEWARDSHIP AGREEMENT DOCUMENT P184-226
Application Documents
Not yet archived · Original link
PDAS APPENDIX 5 P25-61 COUNTRYSIDE STEWARDSHIP AGREEMENT DOCUMENT
Application Documents
Not yet archived · Original link
PDAS APPENDIX 5 P62-103 COUNTRYSIDE STEWARDSHIP AGREEMENT DOCUMENT
Application Documents
Not yet archived · Original link
PHASE 1 DESK STUDY REPORT
Application Documents
Not yet archived · Original link
PLANNING DESIGN AND ACCESS STATEMENT
Application Documents
Not yet archived · Original link
PRELIMINARY ECOLOGICAL APPRAISAL
Application Documents
Not yet archived · Original link
ROGER COAKES-OBJECTS(FULL)
Objection Comment
Not yet archived · Original link
SOIL MANAGEMENT PLAN
Application Documents
Not yet archived · Original link
STATEMENT OF COMMUNITY INVOLVEMENT
Application Documents
Not yet archived · Original link
STUART MATHIE - PUBLIC COMMENT
Public Comment
Not yet archived · Original link
SUSTAINABILITY & ENERGY STATEMENT
Application Documents
Not yet archived · Original link
TRANSPORT STATEMENT PART 1 OF 1
Application Documents
Not yet archived · Original link
TRANSPORT STATEMENT PART 2 OF 2
Application Documents
Not yet archived · Original link
WATER NEUTRALITY STATEMENT
Application Documents
Not yet archived · Original link
WATER USAGE CALCULATIONS
Application Documents
Not yet archived · Original link
WSCC - HIGHWAYS
Consultation Responses
Not yet archived · Original link
WSCC ACCESS MANAGEMENT
Consultation Responses
Not yet archived · Original link
WSCC FLOOD RISK MANAGEMENT
Consultation Responses
Not yet archived · Original link
WSCC RIGHTS OF WAY
Consultation Responses
Not yet archived · Original link

Have your say

Your comment matters. Councils must consider every representation that raises material planning considerations.

Write a comment