← South Downs National Park Authority
Status
Application in Progress
Change of use
Full proposal
Conversion of a barn to form a single dwelling, including detached, self-contained annexe
Documents
- SDNPA CONSERVATION TEAM
Consultation Responses
ARCHAEOLOGICAL ASSESSMENT
Application Documents
BIODIVERSITY NET GAIN ASSESSMENT
Application Documents
BNG METRIC
Application Documents
CIL - FORM 1 : CIL ADDITIONAL INFORMATION
Application Form
COASTAL PARTNERS
Consultation Responses
COMMERCIAL VIABILITY REPORT
Further Information Received
COUNTY ARCHAEOLOGIST
Consultation Responses
DESIGN AND ACCESS STATEMENT
Application Documents
DIRECTION FOR A PLANNING APPLICATION
Officer Correspondence
ECOSYSTEMS SERVICES STATEMENT
Application Documents
ENVIRONMENT AGENCY
Consultation Responses
ENVIRONMENT AGENCY
Miscellaneous
EXISTING ELEVATIONS
Plans
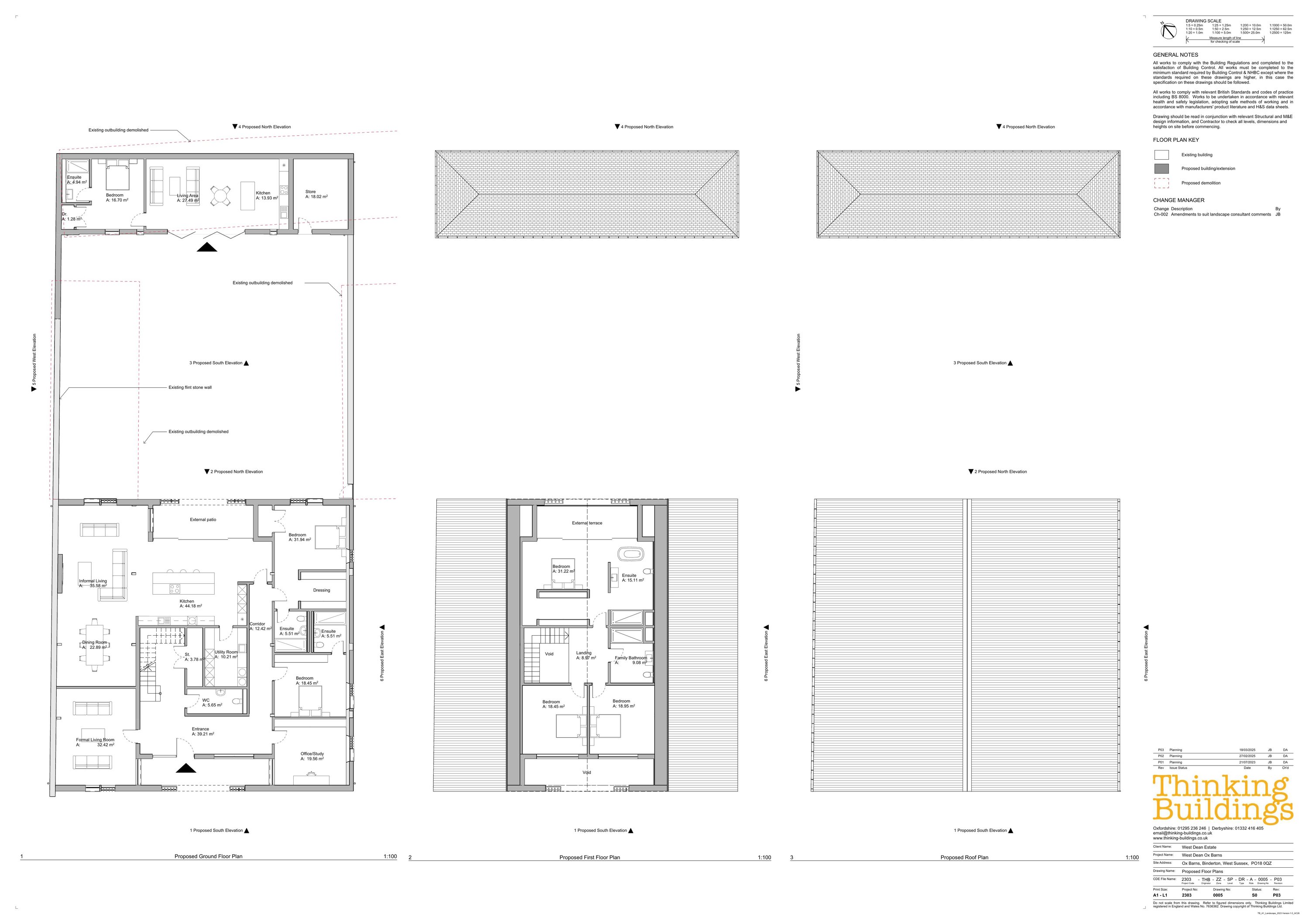
EXISTING FLOOR PLAN
Plans
Superseded Application Documents
FARMSTEAD ASSESSMENT
Application Documents
FLOOD RISK ASSESSMENT
Application Documents
HABITAT REGULATIONS ASSESSMENT
Application Documents
HABITAT REGULATIONS ASSESSMENT (BATS)
Application Documents
LANDSCAPE AND VISUAL APPRAISAL
Application Documents
LIGHTING IMPACT ASSESSMENT
Application Documents
LVA APPENDIX 1: OX BARN VIEWPOINT PHOTOGRAPHY
Application Documents
LVA APPENDIX 2 : MAPS & FIGURES
Application Documents
MRS PARISH CLERK-SUPPORTS(FULL)
Support Comment
MS HCC ECOLOGY TEAM
Consultation Responses
NATURAL ENGLAND
Consultation Responses
NATURAL ENGLAND RESPONSE
Application Documents
NATURAL ENGLAND RESPONSE - ANNEX A
Application Documents
NUTRIENT ASSESSMENT AND BUDGET
Application Documents
OIIVER WRIGHT-SUPPORTS(FULL)
Support Comment
OX BARN HERITAGE STATEMENT
Application Documents
PERSPECTIVE VIEW 01
Plans
PERSPECTIVE VIEW 02
Plans
PERSPECTIVE VIEW 03
Plans
PERSPECTIVE VIEW 04
Plans
PLANNING STATEMENT
Application Documents
PROPOSED ELEVATIONS
Plans
Superseded Application Documents
PROTECTED SPECIES WALKOVER AND BAT ASSESSMENT
Superseded Application Documents
PROTECTED SPECIES WALKOVER AND BAT ASSESSMENT
Application Documents
SDNP LANDSCAPE OFFICER
Consultation Responses
SDNPA - DESIGN OFFICER
Consultation Responses
SOUTHERN WATER
Consultation Responses
SOUTHERN WATER
Consultation Responses
SOUTHERN WATER - GIS
Consultation Responses
SOUTHERN WATER GIS
Consultation Responses
VICTORIA PHILLIPS & NICK BARNABY - PUBLIC COMMENT
Public Comment
WSCC - FLOOD RISK MANAGEMENT
Consultation Responses
WSCC - HIGHWAYS
Consultation Responses
Have your say
Your comment matters. Councils must consider every representation that raises material planning considerations.