← South Downs National Park Authority

Status

Application in Progress House extension
Received
02 Sep 2025
New homes
0

Full proposal

Roof alterations to existing ground floor flat roofs. Addition of pitched roof to existing first floor addition, external alterations including balustrade changes and new front decking with balustrade. Access alterations (widening of driveway)

Documents

ARBORICULTURAL SURVEY
Superseded Application Documents
Not yet archived · Original link
ARBORICULTURE SURVEY/METHOD STATEMENT
Application Documents
Not yet archived · Original link
BASELINE ASSESSMENT CHECKLIST
Application Documents
Not yet archived · Original link
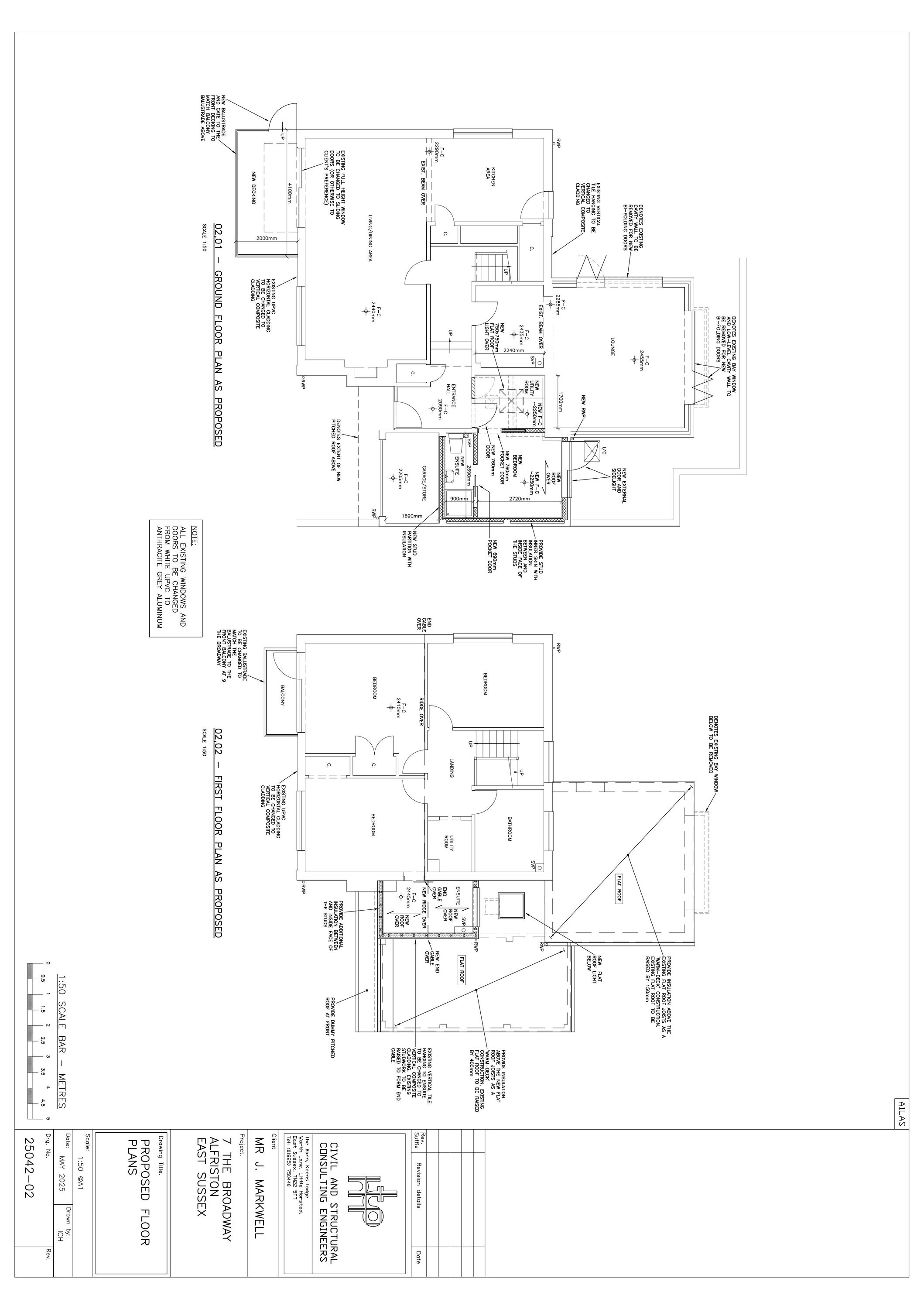
BLOCK PLAN
Site/Block Plan Proposed
Not yet archived · Original link
CIL - FORM 1 : CIL ADDITIONAL INFORMATION
Application Form
Not yet archived · Original link
DESIGN AND ACCESS STATEMENT
Superseded Application Documents
Not yet archived · Original link
DRIVEWAY
Plans
Not yet archived · Original link
ECOSYSTEM SERVICES STATEMENT
Application Documents
Not yet archived · Original link
EOT 28.11.2025
Officer Correspondence
Not yet archived · Original link
ESCC ECOLOGY
Consultation Responses
Not yet archived · Original link
EXISTING AND PROPOSED ELEVATIONS AND ROOF PLANS
Superseded Application Documents
Not yet archived · Original link
EXISTING FLOOR PLANS
Superseded Application Documents
Not yet archived · Original link
EXISTING/PROPOSED ELEVATIONS
Plans
Not yet archived · Original link
LOCATION PLAN
Plans
Not yet archived · Original link
MR DAVID WATTS
Consultee Comment
Not yet archived · Original link
MRS SUZANNA DRY-SUPPORTS(FULL)
Support Comment
Not yet archived · Original link
PRA - ECOLOGY
Further Information Received
Not yet archived · Original link
PROPOSED BLOCK PLAN
Superseded Application Documents
Not yet archived · Original link
PROPOSED BLOCK PLAN
Application Documents
Not yet archived · Original link
Superseded Application Documents
Archived · Original link

Have your say

Your comment matters. Councils must consider every representation that raises material planning considerations.

Write a comment