← South Downs National Park Authority

Status

Application in Progress House extension
Received
05 Dec 2025
New homes
0

Full proposal

Change of Workshop roof tile from clay to slate to match the main dwelling. Remove existing velux windows and install a single window along the rear elevation.

Documents

APPLICATION FORM REDACTED
Application Form
Not yet archived · Original link
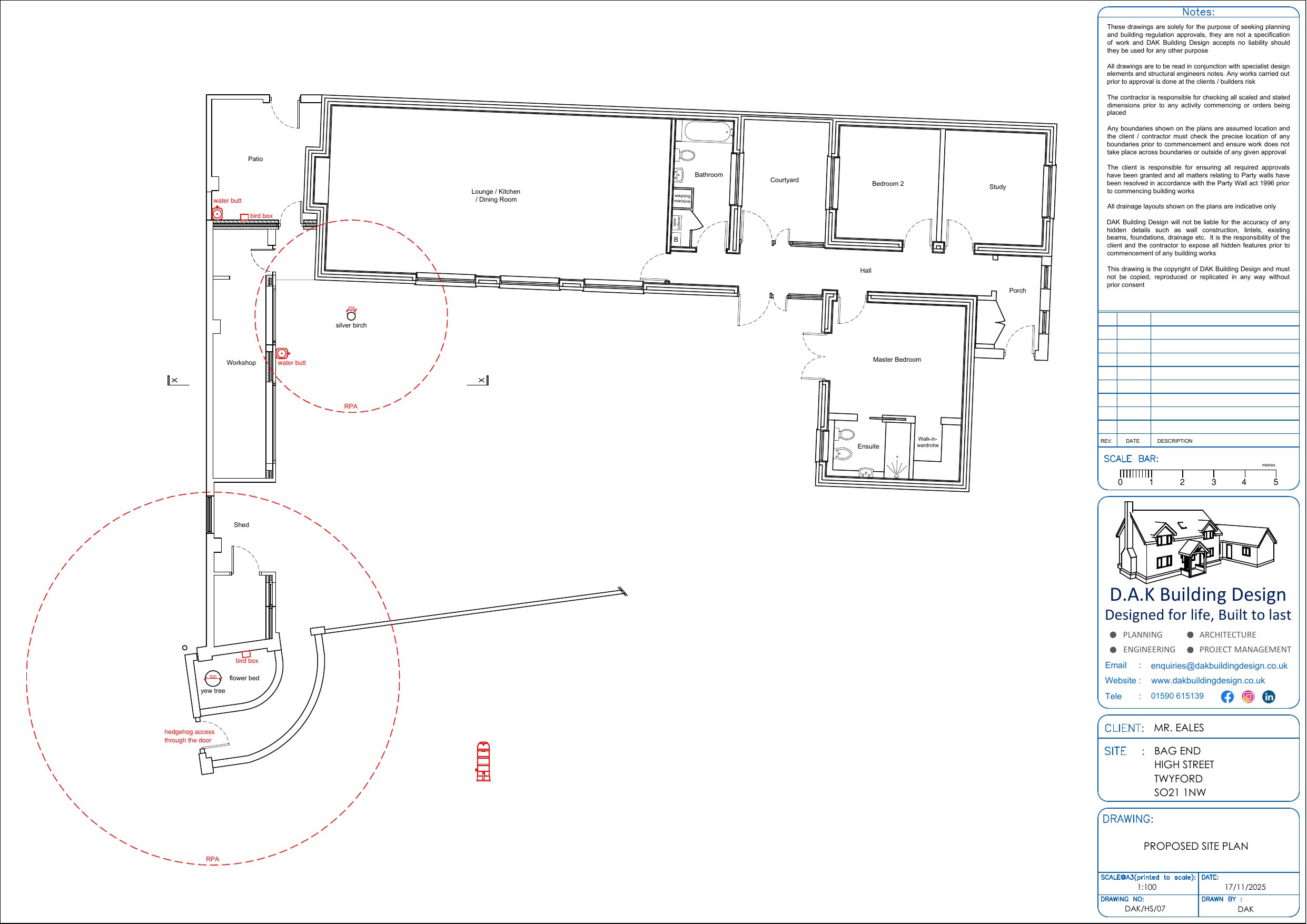
BLOCK PLAN
Plans
Not yet archived · Original link
CIL - FORM 1 : CIL ADDITIONAL INFORMATION
Application Form
Not yet archived · Original link
ECO SYSTEMS SERVICES STATEMENT
Application Documents
Not yet archived · Original link
EXISTING FLOOR PLAN
Plans
Not yet archived · Original link
EXISTING MAIN DWELLING ELEVATIONS
Plans
Not yet archived · Original link
Plans
Archived · Original link
EXISTING WORKSHOP ELEVATIONS
Plans
Not yet archived · Original link
LOCATION PLAN
Plans
Not yet archived · Original link
PROPOSED ELEVATIONS
Plans
Not yet archived · Original link
Plans
Archived · Original link

Have your say

Your comment matters. Councils must consider every representation that raises material planning considerations.

Write a comment